Your email has been sent.
83 Craig St Brantford, ON N3R 7H9 24,878 - 334,272 SF of Industrial Space Available



Park Facts
| Total Space Available | 334,272 SF | Park Type | Office Park |
| Min. Divisible | 24,878 SF |
| Total Space Available | 334,272 SF |
| Min. Divisible | 24,878 SF |
| Park Type | Office Park |
All Available Spaces(2)
Display Rental Rate as
- Space
- Size
- Term
- Rental Rate
- Space Use
- Build-Out
- Available
OPT 1- 25,101 sf 3 trailer level doors and 1 drive-in OPT 2- 44,170 SF 4 trailer level doors and 1 drive-in OPT 3- 69,271 SF 7 trailer level doors and 2 drive-ins
- Lease rate does not include utilities, property expenses or building services
- Space is in Excellent Condition
- 2 Drive Ins
- 7 Loading Docks
| Space | Size | Term | Rental Rate | Space Use | Build-Out | Available |
| 1st Floor | 25,101-138,542 SF | Negotiable | Upon Request Upon Request Upon Request Upon Request | Industrial | Shell Space | March 01, 2027 |
83 Craig St - 1st Floor
- Space
- Size
- Term
- Rental Rate
- Space Use
- Build-Out
- Available
Phase 1 OPT 1- 24,878 sf 3 trailer level doors and 1 drive-in Phase 1 OPT 2- 49,826 SF 4 trailer level doors and 1 drive-in Phase 1 OPT 3- 74704 SF 10 trailer level doors and 3 drive-ins Phase 2 Opt 1- 51,747 SF 4 trailer level doors and 1 drive-in Phase 2 Opt 2- 126,451 SF 14 trailer level doors and 4 drive-ins
- Space is in Excellent Condition
| Space | Size | Term | Rental Rate | Space Use | Build-Out | Available |
| 1st Floor | 24,878-195,730 SF | Negotiable | Upon Request Upon Request Upon Request Upon Request | Industrial | Shell Space | July 01, 2027 |
85 Craig St - 1st Floor
83 Craig St - 1st Floor
| Size | 25,101-138,542 SF |
| Term | Negotiable |
| Rental Rate | Upon Request |
| Space Use | Industrial |
| Build-Out | Shell Space |
| Available | March 01, 2027 |
OPT 1- 25,101 sf 3 trailer level doors and 1 drive-in OPT 2- 44,170 SF 4 trailer level doors and 1 drive-in OPT 3- 69,271 SF 7 trailer level doors and 2 drive-ins
- Lease rate does not include utilities, property expenses or building services
- 2 Drive Ins
- Space is in Excellent Condition
- 7 Loading Docks
85 Craig St - 1st Floor
| Size | 24,878-195,730 SF |
| Term | Negotiable |
| Rental Rate | Upon Request |
| Space Use | Industrial |
| Build-Out | Shell Space |
| Available | July 01, 2027 |
Phase 1 OPT 1- 24,878 sf 3 trailer level doors and 1 drive-in Phase 1 OPT 2- 49,826 SF 4 trailer level doors and 1 drive-in Phase 1 OPT 3- 74704 SF 10 trailer level doors and 3 drive-ins Phase 2 Opt 1- 51,747 SF 4 trailer level doors and 1 drive-in Phase 2 Opt 2- 126,451 SF 14 trailer level doors and 4 drive-ins
- Space is in Excellent Condition
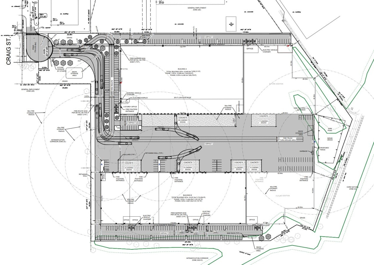
Site Plan
Park Overview
83 Craig Street is a two building, two phase new industrial spec project in Brantford, Ontario. Construction has commenced on Phase 1 with Phase 2 delivering shortly after. The Buildings will feature best in class design, curb appeal and functionality, along with offering flexible sizes from 24,878 to 195,730 SF. Offering high bay 40’ clear heights, large shipping courts with both dock level and drive in shipping, premium LED lighting and modern facades. This development is uniquely positioned in an infill location close to employment, public transit, amenities and Highway 403 access. Tenants have the ability to customize their space with turnkey offices or can consider other tenant improvements such as adding cranes or food grade features. The Property is also undergoing condo entitlement with the ability for groups to purchase or lease their facility, offering flexibility in ownership.
Presented by
83 Craig St | Brantford, ON N3R 7H9
Hmm, there seems to have been an error sending your message. Please try again.
Thanks! Your message was sent.




