Log In/Sign Up
Enter your email to login or create a free account
This feature is unavailable at the moment.
We apologize, but the feature you are trying to access is currently unavailable. We are aware of this issue and our team is working hard to resolve the matter.
Please check back in a few minutes. We apologize for the inconvenience.
- LoopNet Team
This Property is no longer advertised on LoopNet.com.
8301 Roper Rd NW
Edmonton, AB T6E 6S4
C1 · Property For Lease

Property Overview
First class construction quality with combination of dock and ramped grade loading with great access to Whitemud Freeway and future LRT.
Property Facts
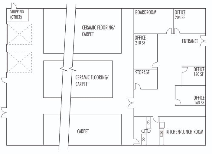
| Property Type | Flex | Rentable Building Area | 35,410 SF |
| Property Subtype | Light Distribution | Year Built | 2001 |
| Building Class | B |
| Property Type | Flex |
| Property Subtype | Light Distribution |
| Building Class | B |
| Rentable Building Area | 35,410 SF |
| Year Built | 2001 |
Features and Amenities
- Bus Line
- Signage
- Storage Space
- Air Conditioning
Utilities
- Lighting
- Gas
- Water
- Sewer
- Heating
Attachments
| Brochure |
Listing ID: 17048850
Date on Market: 8/28/2019
Last Updated:
Address: 8301 Roper Rd NW, Edmonton, AB T6E 6S4
The South Flex Property at 8301 Roper Rd NW, Edmonton, AB T6E 6S4 is no longer being advertised on LoopNet.com. Contact the broker for information on availability.
NEARBY LISTINGS
- 8708-8722 51 Av NW, Edmonton AB
- 4004 97th St NW, Edmonton AB
- 4456 Calgary Trl NW, Edmonton AB
- 10119 81st Ave NW, Edmonton AB
- 4010 76th Ave NW, Edmonton AB
- 9216-9222 34th Ave NW, Edmonton AB
- 9759 51st Ave NW, Edmonton AB
- 2841 Mill Woods Rd NW, Edmonton AB
- 3376 Parsons Rd NW, Edmonton AB
- 2959 Parsons Rd NW, Edmonton AB
- 7610 39 St, Edmonton AB
- 7115 68 Av NW, Edmonton AB
- 6005 Gateway Blvd, Edmonton AB
- 8951 82nd Ave NW, Edmonton AB
- 9803-9817 47th Ave NW, Edmonton AB
1 of 1
Videos
Matterport 3D Exterior
Matterport 3D Tour
Photos
Street View
Street
Map

Link copied
Your LoopNet account has been created!
Thank you for your feedback.
Please Share Your Feedback
We welcome any feedback on how we can improve LoopNet to better serve your needs.X
{{ getErrorText(feedbackForm.starRating, "rating") }}
255 character limit ({{ remainingChars() }} charactercharacters remainingover)
{{ getErrorText(feedbackForm.msg, "rating") }}
{{ getErrorText(feedbackForm.fname, "first name") }}
{{ getErrorText(feedbackForm.lname, "last name") }}
{{ getErrorText(feedbackForm.phone, "phone number") }}
{{ getErrorText(feedbackForm.phonex, "phone extension") }}
{{ getErrorText(feedbackForm.email, "email address") }}
You can provide feedback any time using the Help button at the top of the page.