Your email has been sent.
Highlights
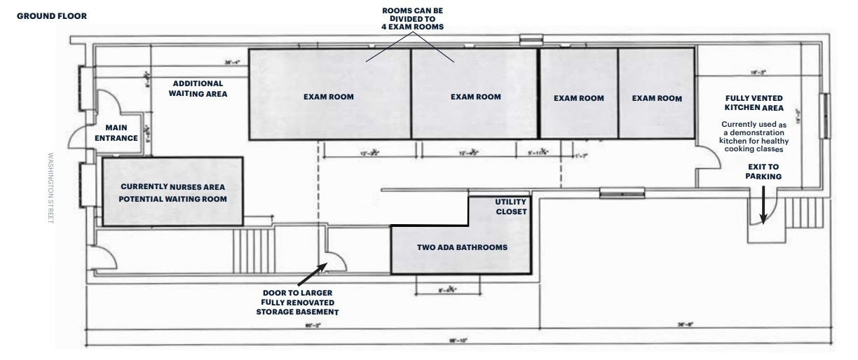
- Medical space build out, full storage basement. Can we a restaurant has a large kitchen that is full vented.
Space Availability (1)
Display Rental Rate as
- Space
- Size
- Term
- Rental Rate
- Rent Type
| Space | Size | Term | Rental Rate | Rent Type | ||
| 1st Floor | 2,500 SF | Negotiable | Upon Request Upon Request Upon Request Upon Request | Triple Net (NNN) |
1st Floor
Currently built out as a Medical office space with parking in rear. Fully built out kitchen and vented in the back – Was a restaurant in the past. This can be used as medical and restaurant use.
- Lease rate does not include utilities, property expenses or building services
- Mostly Open Floor Plan Layout
- Fits 7 - 20 People
- 7 Private Offices
- Space is in Excellent Condition
- Space is an outparcel at this property
- This space is a medical space fully built out.
- This space can also be a restaurant
- the space is fully vented
- Full basement with newly renovated storage room
- Parking spaces on site and on street
- See brochure for layout
Rent Types
The rent amount and type that the tenant (lessee) will be responsible to pay to the landlord (lessor) throughout the lease term is negotiated prior to both parties signing a lease agreement. The rent type will vary depending upon the services provided. For example, triple net rents are typically lower than full service rents due to additional expenses the tenant is required to pay in addition to the base rent. Contact the listing broker for a full understanding of any associated costs or additional expenses for each rent type.
1. Full Service: A rental rate that includes normal building standard services as provided by the landlord within a base year rental.
2. Double Net (NN): Tenant pays for only two of the building expenses; the landlord and tenant determine the specific expenses prior to signing the lease agreement.
3. Triple Net (NNN): A lease in which the tenant is responsible for all expenses associated with their proportional share of occupancy of the building.
4. Modified Gross: Modified Gross is a general type of lease rate where typically the tenant will be responsible for their proportional share of one or more of the expenses. The landlord will pay the remaining expenses. See the below list of common Modified Gross rental rate structures: 4. Plus All Utilities: A type of Modified Gross Lease where the tenant is responsible for their proportional share of utilities in addition to the rent. 4. Plus Cleaning: A type of Modified Gross Lease where the tenant is responsible for their proportional share of cleaning in addition to the rent. 4. Plus Electric: A type of Modified Gross Lease where the tenant is responsible for their proportional share of the electrical cost in addition to the rent. 4. Plus Electric & Cleaning: A type of Modified Gross Lease where the tenant is responsible for their proportional share of the electrical and cleaning cost in addition to the rent. 4. Plus Utilities and Char: A type of Modified Gross Lease where the tenant is responsible for their proportional share of the utilities and cleaning cost in addition to the rent. 4. Industrial Gross: A type of Modified Gross lease where the tenant pays one or more of the expenses in addition to the rent. The landlord and tenant determine these prior to signing the lease agreement.
5. Tenant Electric: The landlord pays for all services and the tenant is responsible for their usage of lights and electrical outlets in the space they occupy.
6. Negotiable or Upon Request: Used when the leasing contact does not provide the rent or service type.
7. TBD: To be determined; used for buildings for which no rent or service type is known, commonly utilized when the buildings are not yet built.
Select Tenants at 85 Washington St, Morristown, NJ 07960
- Tenant
- Description
- US Locations
- Reach
- Zufall Health Center
- MD/DDS
- 10
- Regional
| Tenant | Description | US Locations | Reach |
| Zufall Health Center | MD/DDS | 10 | Regional |
Property Facts
| Total Space Available | 2,500 SF | Gross Leasable Area | 3,500 SF |
| Property Type | Retail | Year Built/Renovated | 1950/2022 |
| Property Subtype | Storefront Retail/Residential | Parking Ratio | 2.29/1,000 SF |
| Total Space Available | 2,500 SF |
| Property Type | Retail |
| Property Subtype | Storefront Retail/Residential |
| Gross Leasable Area | 3,500 SF |
| Year Built/Renovated | 1950/2022 |
| Parking Ratio | 2.29/1,000 SF |
About the Property
This building is currently built out as a medical space. 2,500 SF with full basement. Can be used as a restaurant. It is fully vented. Parking in rear of the building and on the street parking. 24 hours access. Within walk distance to Downtown Morristown. Steps away from the courthouse and down the street is the Green. Two ADA bathrooms.
- 24 Hour Access
- Restaurant
- Tenant Controlled HVAC
- Storage Space
- Air Conditioning
Nearby Major Retailers
Presented by
85 Washington St
Hmm, there seems to have been an error sending your message. Please try again.
Thanks! Your message was sent.



