Your email has been sent.
The Perimeter Center - One Princess Drive 8501 E Princess Dr 3,963 - 8,653 SF of Office Space Available in Scottsdale, AZ 85255



Highlights
- Flexible design will accommodate large or small corporate requirements
- Immediate Access to 101 Freeway, North & South Ingress/Egress
- High Image Corner Lot location with frontage on both Princess Dr and Perimeter Dr.
All Available Spaces(2)
Display Rental Rate as
- Space
- Size
- Term
- Rental Rate
- Space Use
- Build-Out
- Available
Lobby Refurbishment Completed! Suite 200 is coming available sporting 4,690 SF of office space with a layout of 9 private offices, 1 executive office, 2 conference rooms, a reception, huddle room, break room, server room, copy room, and an open area.
- Rate includes utilities, building services and property expenses
- Fits 12 - 38 People
- 2 Conference Rooms
- Central Air Conditioning
- Print/Copy Room
- Open Floor Plan Layout
- 10 Private Offices
- Space is in Excellent Condition
- Reception Area
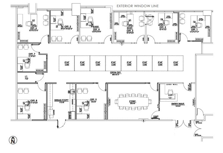
Available July 2026, 2026 Reception, 9 Private Offices, Conference Room, Break/Copy Room, IT Room, Open Area
- Rate includes utilities, building services and property expenses
- Open Floor Plan Layout
- 9 Private Offices
- Central Air Conditioning
- 1/4 mile from Loop 101 Freeway
- Fully Built-Out as Standard Office
- Fits 10 - 32 People
- 1 Conference Room
- Reception Area
| Space | Size | Term | Rental Rate | Space Use | Build-Out | Available |
| 2nd Floor, Ste 200 | 4,690 SF | Negotiable | $31.00 /SF/YR $2.58 /SF/MO $145,390 /YR $12,116 /MO | Office | Partial Build-Out | Now |
| 2nd Floor, Ste 220 | 3,963 SF | Negotiable | $31.00 /SF/YR $2.58 /SF/MO $122,853 /YR $10,238 /MO | Office | Full Build-Out | July 01, 2026 |
2nd Floor, Ste 200
| Size |
| 4,690 SF |
| Term |
| Negotiable |
| Rental Rate |
| $31.00 /SF/YR $2.58 /SF/MO $145,390 /YR $12,116 /MO |
| Space Use |
| Office |
| Build-Out |
| Partial Build-Out |
| Available |
| Now |
2nd Floor, Ste 220
| Size |
| 3,963 SF |
| Term |
| Negotiable |
| Rental Rate |
| $31.00 /SF/YR $2.58 /SF/MO $122,853 /YR $10,238 /MO |
| Space Use |
| Office |
| Build-Out |
| Full Build-Out |
| Available |
| July 01, 2026 |
2nd Floor, Ste 200
| Size | 4,690 SF |
| Term | Negotiable |
| Rental Rate | $31.00 /SF/YR |
| Space Use | Office |
| Build-Out | Partial Build-Out |
| Available | Now |
Lobby Refurbishment Completed! Suite 200 is coming available sporting 4,690 SF of office space with a layout of 9 private offices, 1 executive office, 2 conference rooms, a reception, huddle room, break room, server room, copy room, and an open area.
- Rate includes utilities, building services and property expenses
- Open Floor Plan Layout
- Fits 12 - 38 People
- 10 Private Offices
- 2 Conference Rooms
- Space is in Excellent Condition
- Central Air Conditioning
- Reception Area
- Print/Copy Room
2nd Floor, Ste 220
| Size | 3,963 SF |
| Term | Negotiable |
| Rental Rate | $31.00 /SF/YR |
| Space Use | Office |
| Build-Out | Full Build-Out |
| Available | July 01, 2026 |
Available July 2026, 2026 Reception, 9 Private Offices, Conference Room, Break/Copy Room, IT Room, Open Area
- Rate includes utilities, building services and property expenses
- Fully Built-Out as Standard Office
- Open Floor Plan Layout
- Fits 10 - 32 People
- 9 Private Offices
- 1 Conference Room
- Central Air Conditioning
- Reception Area
- 1/4 mile from Loop 101 Freeway
Property Overview
Two Story Multi-Tenant Professional Office Building located in the prestigious Perimeter Center Business Park, Scottsdale Arizona. Immediate access to Loop 101 Freeway. Nearby Luxury Resort Hotels, Premier Golf Courses and Premier Shopping & Retail Centers.
Property Facts
Presented by
The Perimeter Center - One Princess Drive | 8501 E Princess Dr
Hmm, there seems to have been an error sending your message. Please try again.
Thanks! Your message was sent.





