Log In/Sign Up
Your email has been sent.
851 Main St - Nevin Professional Condominiums 2,850 SF Office/Medical Condo Unit Offered at $725,000 in Weymouth, MA 02190



Property Facts Under Contract
| Total Building Size | 36,023 SF | Typical Floor Size | 15,850 SF |
| Property Type | Office (Condo) | Year Built | 1983 |
| Property Subtype | Medical | Lot Size | 2.81 AC |
| Building Class | B | Parking Ratio | 6.53/1,000 SF |
| Floors | 2 | ||
| Zoning | MSD, Weymouth - Medical division | ||
| Total Building Size | 36,023 SF |
| Property Type | Office (Condo) |
| Property Subtype | Medical |
| Building Class | B |
| Floors | 2 |
| Typical Floor Size | 15,850 SF |
| Year Built | 1983 |
| Lot Size | 2.81 AC |
| Parking Ratio | 6.53/1,000 SF |
| Zoning | MSD, Weymouth - Medical division |
Amenities
- Atrium
- Security System
- Wheelchair Accessible
- Storage Space
- Air Conditioning
1 Unit Available
Unit 14/15
| Unit Size | 2,850 SF | Condo Use | Office/Medical |
| Price | $725,000 | Sale Type | Owner User |
| Price Per SF | $254.39 | Sale Status | Under Contract |
| Unit Size | 2,850 SF |
| Price | $725,000 |
| Price Per SF | $254.39 |
| Condo Use | Office/Medical |
| Sale Type | Owner User |
| Sale Status | Under Contract |
Description
First class medical office condominium in Nevin building across from South Shore Hospital. 2nd floor Units 14/15 for sale or separate listing for lease. Professionally managed condo association. Condo fees are approximately 3K a month but include water, refuse, plowing master insurance and common area cleaning. Deed restricted to medical related uses and occupancy only.
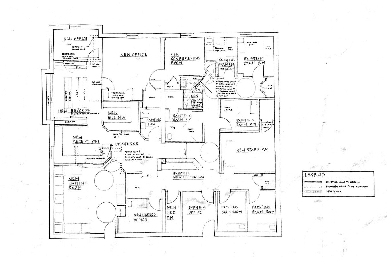
Unit 14/15 Floor Plan
reception
waiting room
office
office 3
hallway
hallway 1
exam room 2
small office
reception 4
reception 3
reception 2
1 of 12
Videos
Matterport 3D Exterior
Matterport 3D Tour
Photos
Street View
Street
Map
1 1
1 of 38
Videos
Matterport 3D Exterior
Matterport 3D Tour
Photos
Street View
Street
Map
1 of 1
Presented by
851 Main St - Nevin Professional Condominiums
Already a member? Log In
Hmm, there seems to have been an error sending your message. Please try again.
Thanks! Your message was sent.
Your message has been sent!
Activate your LoopNet account now to track properties, get real-time alerts, save time on future inquiries, and more.

