Log In/Sign Up
Your email has been sent.
861 Harold Pl - Building 2 - 201-202 | 203 2,915 - 5,997 SF Flex Condo Units Offered at $1,093,125 - $2,249,625 Per Unit in Chula Vista, CA 91914



Investment Highlights
- Ample Power
- Close proximity to numerous retail amenities
- 1 Mile to SR-125
- High quality concrete tilt up construction
4 Units Available
- Unit
- Unit Size
- Condo Use
- Price
- NOI
| Sale Type | Owner User |
| Sale Type | Owner User |
Sale Notes
100% HVAC
ESTABLISHED CHURCH
ESTABLISHED CHURCH
| Sale Type | Owner User | APN/Parcel ID | 595-710-08-15 |
| No. Parking Spaces | 2 |
| Sale Type | Owner User |
| No. Parking Spaces | 2 |
| APN/Parcel ID | 595-710-08-15 |
Description
Flex Space with Grade Level Roll Up Door
Sale Notes
Commercial Asset Advisors, as the exclusive marketing advisor, is pleased to present to qualified owner/users the opportunity to acquire condo units in a multi-tenant flex/industrial, located in Eastlake, Chula Vista.
The property is located in the thriving Master Planned community of Eastlake, one of San Diego’s most affluent, growing communities. The property’s location offers a significant labor pool within a 15-minute commute, an established and efficient freeway network, numerous amenities (restaurants, shopping centers, malls, and more), and many desirable housing opportunities. Furthermore, as part of the Eastlake business Park, it includes exclusive access to a 7 acre private park, which boasts basketball, tennis, and volleyball courts as well as soccer fields, softball fields, picnic areas, and open recreation space.
The property is located in the thriving Master Planned community of Eastlake, one of San Diego’s most affluent, growing communities. The property’s location offers a significant labor pool within a 15-minute commute, an established and efficient freeway network, numerous amenities (restaurants, shopping centers, malls, and more), and many desirable housing opportunities. Furthermore, as part of the Eastlake business Park, it includes exclusive access to a 7 acre private park, which boasts basketball, tennis, and volleyball courts as well as soccer fields, softball fields, picnic areas, and open recreation space.
| Sale Type | Owner User | APN/Parcel ID | 595-710-08-15 |
| No. Parking Spaces | 2 |
| Sale Type | Owner User |
| No. Parking Spaces | 2 |
| APN/Parcel ID | 595-710-08-15 |
Description
Description:
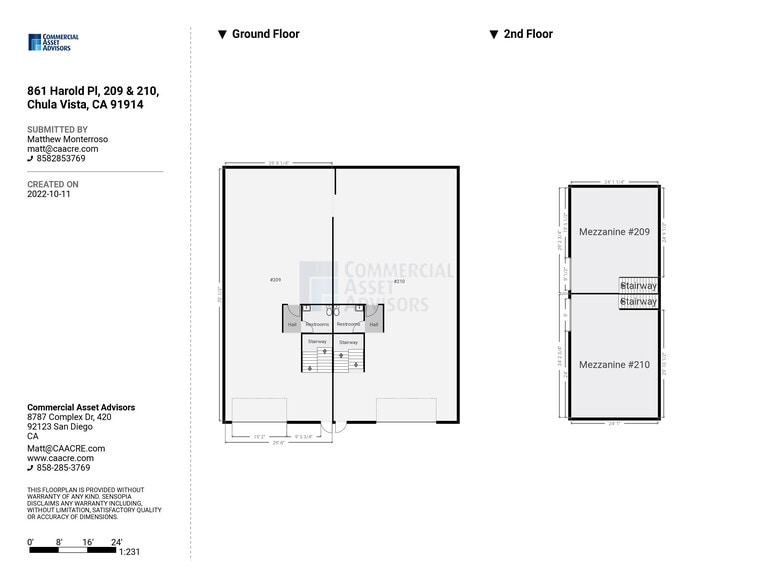
The property consists of two connected condo units with a flexible layout. The ground floor is built out as a gym or fitness studio with a reception and waiting area and two restrooms. Units 209 and 210 are connected at the rear of the space, and Unit 210 has two front entrances, providing a total of three entry doors across both units for higher capacity and easy circulation.
Both units have grade level glass roll up doors that bring in natural light, and the warehouse portion also includes a skylight for additional daylight. The second floor mezzanine is open with windows facing the front of the project and can be connected between the two units by adding a threshold if needed. Flexible zoning supports a wide range of potential uses.
The property consists of two connected condo units with a flexible layout. The ground floor is built out as a gym or fitness studio with a reception and waiting area and two restrooms. Units 209 and 210 are connected at the rear of the space, and Unit 210 has two front entrances, providing a total of three entry doors across both units for higher capacity and easy circulation.
Both units have grade level glass roll up doors that bring in natural light, and the warehouse portion also includes a skylight for additional daylight. The second floor mezzanine is open with windows facing the front of the project and can be connected between the two units by adding a threshold if needed. Flexible zoning supports a wide range of potential uses.
Sale Notes
Commercial Asset Advisors, as the exclusive marketing advisor, is pleased to present to qualified owner/users the opportunity to acquire condo units in a multi-tenant flex/industrial, located in Eastlake, Chula Vista.
The property is located in the thriving Master Planned community of Eastlake, one of San Diego’s most affluent, growing communities. The property’s location offers a significant labor pool within a 15-minute commute, an established and efficient freeway network, numerous amenities (restaurants, shopping centers, malls, and more), and many desirable housing opportunities. Furthermore, as part of the Eastlake business Park, it includes exclusive access to a 7 acre private park, which boasts basketball, tennis, and volleyball courts as well as soccer fields, softball fields, picnic areas, and open recreation space.
The property is located in the thriving Master Planned community of Eastlake, one of San Diego’s most affluent, growing communities. The property’s location offers a significant labor pool within a 15-minute commute, an established and efficient freeway network, numerous amenities (restaurants, shopping centers, malls, and more), and many desirable housing opportunities. Furthermore, as part of the Eastlake business Park, it includes exclusive access to a 7 acre private park, which boasts basketball, tennis, and volleyball courts as well as soccer fields, softball fields, picnic areas, and open recreation space.
| Sale Type | Owner User | APN/Parcel ID | 595-710-08-15 |
| No. Parking Spaces | 2 |
| Sale Type | Owner User |
| No. Parking Spaces | 2 |
| APN/Parcel ID | 595-710-08-15 |
Description
The property consists of two connected condo units with a flexible layout. The ground floor is built out as a gym or fitness studio with a reception and waiting area and two restrooms. Units 209 and 210 are connected at the rear of the space, and Unit 210 has two front entrances, providing a total of three entry doors across both units for higher capacity and easy circulation.
Both units have grade level glass roll up doors that bring in natural light, and the warehouse portion also includes a skylight for additional daylight. The second floor mezzanine is open with windows facing the front of the project and can be connected between the two units by adding a threshold if needed. Flexible zoning supports a wide range of potential uses.
Both units have grade level glass roll up doors that bring in natural light, and the warehouse portion also includes a skylight for additional daylight. The second floor mezzanine is open with windows facing the front of the project and can be connected between the two units by adding a threshold if needed. Flexible zoning supports a wide range of potential uses.
Sale Notes
Commercial Asset Advisors, as the exclusive marketing advisor, is pleased to present to qualified owner/users the opportunity to acquire condo units in a multi-tenant flex/industrial, located in Eastlake, Chula Vista.
The property is located in the thriving Master Planned community of Eastlake, one of San Diego’s most affluent, growing communities. The property’s location offers a significant labor pool within a 15-minute commute, an established and efficient freeway network, numerous amenities (restaurants, shopping centers, malls, and more), and many desirable housing opportunities. Furthermore, as part of the Eastlake business Park, it includes exclusive access to a 7 acre private park, which boasts basketball, tennis, and volleyball courts as well as soccer fields, softball fields, picnic areas, and open recreation space.
The property is located in the thriving Master Planned community of Eastlake, one of San Diego’s most affluent, growing communities. The property’s location offers a significant labor pool within a 15-minute commute, an established and efficient freeway network, numerous amenities (restaurants, shopping centers, malls, and more), and many desirable housing opportunities. Furthermore, as part of the Eastlake business Park, it includes exclusive access to a 7 acre private park, which boasts basketball, tennis, and volleyball courts as well as soccer fields, softball fields, picnic areas, and open recreation space.
| Unit | Unit Size | Condo Use | Price | NOI |
| Unit 201/202 | 5,997 SF | Flex | $2,249,625 ($375.13/SF) | - |
| Unit 203 | 2,915 SF | Flex | $1,093,125 ($375.00/SF) | - |
| Unit 209 | 2,915 SF | Flex | $1,093,125 ($375.00/SF) | - |
| Unit 210 | 3,360 SF | Flex | $1,260,000 ($375.00/SF) | - |
Unit 201/202
| Unit Size |
| 5,997 SF |
| Condo Use |
| Flex |
| Price |
| $2,249,625 ($375.13/SF) |
| NOI |
| - |
Unit 203
| Unit Size |
| 2,915 SF |
| Condo Use |
| Flex |
| Price |
| $1,093,125 ($375.00/SF) |
| NOI |
| - |
Unit 209
| Unit Size |
| 2,915 SF |
| Condo Use |
| Flex |
| Price |
| $1,093,125 ($375.00/SF) |
| NOI |
| - |
Unit 210
| Unit Size |
| 3,360 SF |
| Condo Use |
| Flex |
| Price |
| $1,260,000 ($375.00/SF) |
| NOI |
| - |
1 of 0
Videos
Matterport 3D Exterior
Matterport 3D Tour
Photos
Street View
Street
Map
Unit 201/202
| Unit Size | 5,997 SF |
| Condo Use | Flex |
| Price | $2,249,625 ($375.13/SF) |
| NOI | - |
| Sale Type | Owner User |
| Sale Notes | |
| 100% HVAC<br> ESTABLISHED CHURCH</li></ul> |
1 of 41
Videos
Matterport 3D Exterior
Matterport 3D Tour
Photos
Street View
Street
Map
Unit 203
| Unit Size | 2,915 SF |
| Condo Use | Flex |
| Price | $1,093,125 ($375.00/SF) |
| NOI | - |
| Sale Type | Owner User |
| No. Parking Spaces | 2 |
| APN/Parcel ID | 595-710-08-15 |
| Description | |
| Flex Space with Grade Level Roll Up Door</li></ul> | |
| Sale Notes | |
| Commercial Asset Advisors, as the exclusive marketing advisor, is pleased to present to qualified owner/users the opportunity to acquire condo units in a multi-tenant flex/industrial, located in Eastlake, Chula Vista.<br> <br> The property is located in the thriving Master Planned community of Eastlake, one of San Diego’s most affluent, growing communities. The property’s location offers a significant labor pool within a 15-minute commute, an established and efficient freeway network, numerous amenities (restaurants, shopping centers, malls, and more), and many desirable housing opportunities. Furthermore, as part of the Eastlake business Park, it includes exclusive access to a 7 acre private park, which boasts basketball, tennis, and volleyball courts as well as soccer fields, softball fields, picnic areas, and open recreation space.</li></ul> |
1 of 11
Videos
Matterport 3D Exterior
Matterport 3D Tour
Photos
Street View
Street
Map
Unit 209
| Unit Size | 2,915 SF |
| Condo Use | Flex |
| Price | $1,093,125 ($375.00/SF) |
| NOI | - |
| Sale Type | Owner User |
| No. Parking Spaces | 2 |
| APN/Parcel ID | 595-710-08-15 |
| Description | |
| Description: <br> The property consists of two connected condo units with a flexible layout. The ground floor is built out as a gym or fitness studio with a reception and waiting area and two restrooms. Units 209 and 210 are connected at the rear of the space, and Unit 210 has two front entrances, providing a total of three entry doors across both units for higher capacity and easy circulation.<br> Both units have grade level glass roll up doors that bring in natural light, and the warehouse portion also includes a skylight for additional daylight. The second floor mezzanine is open with windows facing the front of the project and can be connected between the two units by adding a threshold if needed. Flexible zoning supports a wide range of potential uses.</li></ul> | |
| Sale Notes | |
| Commercial Asset Advisors, as the exclusive marketing advisor, is pleased to present to qualified owner/users the opportunity to acquire condo units in a multi-tenant flex/industrial, located in Eastlake, Chula Vista.<br> <br> The property is located in the thriving Master Planned community of Eastlake, one of San Diego’s most affluent, growing communities. The property’s location offers a significant labor pool within a 15-minute commute, an established and efficient freeway network, numerous amenities (restaurants, shopping centers, malls, and more), and many desirable housing opportunities. Furthermore, as part of the Eastlake business Park, it includes exclusive access to a 7 acre private park, which boasts basketball, tennis, and volleyball courts as well as soccer fields, softball fields, picnic areas, and open recreation space.</li></ul> |
1 of 10
Videos
Matterport 3D Exterior
Matterport 3D Tour
Photos
Street View
Street
Map
Unit 210
| Unit Size | 3,360 SF |
| Condo Use | Flex |
| Price | $1,260,000 ($375.00/SF) |
| NOI | - |
| Sale Type | Owner User |
| No. Parking Spaces | 2 |
| APN/Parcel ID | 595-710-08-15 |
| Description | |
| The property consists of two connected condo units with a flexible layout. The ground floor is built out as a gym or fitness studio with a reception and waiting area and two restrooms. Units 209 and 210 are connected at the rear of the space, and Unit 210 has two front entrances, providing a total of three entry doors across both units for higher capacity and easy circulation.<br> Both units have grade level glass roll up doors that bring in natural light, and the warehouse portion also includes a skylight for additional daylight. The second floor mezzanine is open with windows facing the front of the project and can be connected between the two units by adding a threshold if needed. Flexible zoning supports a wide range of potential uses.</li></ul> | |
| Sale Notes | |
| Commercial Asset Advisors, as the exclusive marketing advisor, is pleased to present to qualified owner/users the opportunity to acquire condo units in a multi-tenant flex/industrial, located in Eastlake, Chula Vista.<br> <br> The property is located in the thriving Master Planned community of Eastlake, one of San Diego’s most affluent, growing communities. The property’s location offers a significant labor pool within a 15-minute commute, an established and efficient freeway network, numerous amenities (restaurants, shopping centers, malls, and more), and many desirable housing opportunities. Furthermore, as part of the Eastlake business Park, it includes exclusive access to a 7 acre private park, which boasts basketball, tennis, and volleyball courts as well as soccer fields, softball fields, picnic areas, and open recreation space.</li></ul> |
Property Facts
The following property facts and amenities apply to the entire building. Details for individual condo units may vary and are listed in the unit information above.
| Total Building Size | 28,644 SF | Typical Floor Size | 14,322 SF |
| Property Type | Flex | Year Built | 2009 |
| Property Subtype | Lot Size | 1.56 AC | |
| Building Class | B | Parking Ratio | 7.72/1,000 SF |
| Floors | 2 | ||
| Zoning | PCI | ||
| Total Building Size | 28,644 SF |
| Property Type | Flex |
| Property Subtype | |
| Building Class | B |
| Floors | 2 |
| Typical Floor Size | 14,322 SF |
| Year Built | 2009 |
| Lot Size | 1.56 AC |
| Parking Ratio | 7.72/1,000 SF |
| Zoning | PCI |
Amenities
- 24 Hour Access
- Mezzanine
- Air Conditioning
Fairly walkable
40/100
Exceptionally drivable
90/100
Fairly bikeable
50/100
1 of 6
Videos
Matterport 3D Exterior
Matterport 3D Tour
Photos
Street View
Street
Map
Presented by
861 Harold Pl - Building 2 - 201-202 | 203
Already a member? Log In
Hmm, there seems to have been an error sending your message. Please try again.
Thanks! Your message was sent.







