Your email has been sent.
Highlights
- One minute from Route 45 and I-80 Interchange
- Newer, high-image building
- Professionally owned and managed
Features
All Available Spaces(2)
Display Rental Rate as
- Space
- Size
- Term
- Rental Rate
- Space Use
- Build-Out
- Available
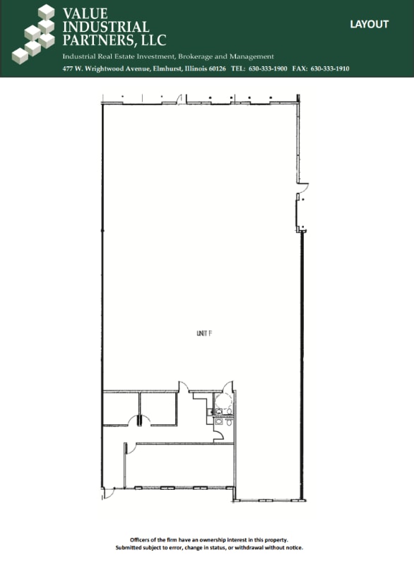
Positioned in the heart of Mokena’s industrial corridor, 8910 W. 192nd Street, Unit F offers a strategic leasing opportunity within a professionally managed facility. This 7,360-square-foot unit is part of a larger 68,929-square-foot building and features a functional layout ideal for light industrial, logistics, or service-oriented operations. With 15% office buildout, the space balances administrative and operational needs efficiently. The property boasts four exclusive exterior low docks—perfectly suited for delivery vans—and two shared exterior docks, enhancing flexibility for inbound and outbound logistics. A 15-foot clear ceiling height and 40’ x 40’ bay spacing support efficient racking and maneuverability. The unit is equipped with 200 amps of power at 120/208 volts, gas heat, and a sprinkler system for safety and compliance. Located just minutes from I-80 via LaGrange Road or Harlem Avenue, and with quick access to I-355 and I-57, the site offers exceptional regional connectivity. This accessibility makes it a prime location for businesses serving the greater Chicagoland area and beyond. Real estate taxes and CAM are included in the current stop, simplifying budgeting for tenants. Units F and G may be leased together to create a larger contiguous space, offering flexible expansion potential for growing operations.
- Includes 1,104 SF of dedicated office space
- Central Heating System
- Four exclusive low docks
- Professionally owned and managed
- 6 Loading Docks
- Direct access to I-80, I-355, and I-57
- 15% office buildout supports hybrid industrial use
Located in the established industrial hub of Mokena, Illinois, Unit G at 8910 W. 192nd Street presents a highly functional and accessible space tailored for light manufacturing, logistics, or service-oriented operations. This 5,370-square-foot unit is part of a professionally managed multi-tenant facility and features a 20% office buildout, offering a balanced layout for administrative and operational needs. The unit is equipped with one exclusive drive-in door and access to two shared exterior docks, supporting flexible loading configurations. With a 15-foot clear ceiling height and 40’ x 40’ bay spacing, the warehouse area is optimized for racking, maneuverability, and efficient workflow. The space is fully sprinklered, gas-heated, and powered with 200 amps at 120/208 volts, ensuring compliance and operational reliability. Strategically positioned minutes from I-80 via LaGrange Road or Harlem Avenue, and with direct access to I-355 and I-57, the property offers exceptional regional connectivity for distribution and service coverage across Chicagoland and beyond. Real estate taxes and CAM are included in the current stop, simplifying tenant budgeting and lease planning. This unit is ideal for businesses seeking a well-located, professionally managed industrial space with flexible loading and a strong office-to-warehouse ratio. Units F and G may be leased together to create a larger contiguous space, offering flexible expansion potential for growing operations.
- Includes 1,074 SF of dedicated office space
- Direct access to I-80, I-355, and I-57
- 20% office buildout
- Professionally managed
- 1 Drive Bay
- One drive-in door plus shared dock access
- Sprinklered and gas-heated for safety and comfort
| Space | Size | Term | Rental Rate | Space Use | Build-Out | Available |
| 1st Floor - F | 7,360 SF | Negotiable | Upon Request Upon Request Upon Request Upon Request | Industrial | - | Now |
| 1st Floor - G | 5,370 SF | Negotiable | Upon Request Upon Request Upon Request Upon Request | Industrial | - | Now |
1st Floor - F
| Size |
| 7,360 SF |
| Term |
| Negotiable |
| Rental Rate |
| Upon Request Upon Request Upon Request Upon Request |
| Space Use |
| Industrial |
| Build-Out |
| - |
| Available |
| Now |
1st Floor - G
| Size |
| 5,370 SF |
| Term |
| Negotiable |
| Rental Rate |
| Upon Request Upon Request Upon Request Upon Request |
| Space Use |
| Industrial |
| Build-Out |
| - |
| Available |
| Now |
1st Floor - F
| Size | 7,360 SF |
| Term | Negotiable |
| Rental Rate | Upon Request |
| Space Use | Industrial |
| Build-Out | - |
| Available | Now |
Positioned in the heart of Mokena’s industrial corridor, 8910 W. 192nd Street, Unit F offers a strategic leasing opportunity within a professionally managed facility. This 7,360-square-foot unit is part of a larger 68,929-square-foot building and features a functional layout ideal for light industrial, logistics, or service-oriented operations. With 15% office buildout, the space balances administrative and operational needs efficiently. The property boasts four exclusive exterior low docks—perfectly suited for delivery vans—and two shared exterior docks, enhancing flexibility for inbound and outbound logistics. A 15-foot clear ceiling height and 40’ x 40’ bay spacing support efficient racking and maneuverability. The unit is equipped with 200 amps of power at 120/208 volts, gas heat, and a sprinkler system for safety and compliance. Located just minutes from I-80 via LaGrange Road or Harlem Avenue, and with quick access to I-355 and I-57, the site offers exceptional regional connectivity. This accessibility makes it a prime location for businesses serving the greater Chicagoland area and beyond. Real estate taxes and CAM are included in the current stop, simplifying budgeting for tenants. Units F and G may be leased together to create a larger contiguous space, offering flexible expansion potential for growing operations.
- Includes 1,104 SF of dedicated office space
- 6 Loading Docks
- Central Heating System
- Direct access to I-80, I-355, and I-57
- Four exclusive low docks
- 15% office buildout supports hybrid industrial use
- Professionally owned and managed
1st Floor - G
| Size | 5,370 SF |
| Term | Negotiable |
| Rental Rate | Upon Request |
| Space Use | Industrial |
| Build-Out | - |
| Available | Now |
Located in the established industrial hub of Mokena, Illinois, Unit G at 8910 W. 192nd Street presents a highly functional and accessible space tailored for light manufacturing, logistics, or service-oriented operations. This 5,370-square-foot unit is part of a professionally managed multi-tenant facility and features a 20% office buildout, offering a balanced layout for administrative and operational needs. The unit is equipped with one exclusive drive-in door and access to two shared exterior docks, supporting flexible loading configurations. With a 15-foot clear ceiling height and 40’ x 40’ bay spacing, the warehouse area is optimized for racking, maneuverability, and efficient workflow. The space is fully sprinklered, gas-heated, and powered with 200 amps at 120/208 volts, ensuring compliance and operational reliability. Strategically positioned minutes from I-80 via LaGrange Road or Harlem Avenue, and with direct access to I-355 and I-57, the property offers exceptional regional connectivity for distribution and service coverage across Chicagoland and beyond. Real estate taxes and CAM are included in the current stop, simplifying tenant budgeting and lease planning. This unit is ideal for businesses seeking a well-located, professionally managed industrial space with flexible loading and a strong office-to-warehouse ratio. Units F and G may be leased together to create a larger contiguous space, offering flexible expansion potential for growing operations.
- Includes 1,074 SF of dedicated office space
- 1 Drive Bay
- Direct access to I-80, I-355, and I-57
- One drive-in door plus shared dock access
- 20% office buildout
- Sprinklered and gas-heated for safety and comfort
- Professionally managed
Manufacturing Facility Facts
Select Tenants
- Floor
- Tenant Name
- Industry
- 1st
- Anatomy Physical Fitness LLC
- Arts, Entertainment, and Recreation
- 1st
- Cher Mar Company
- Wholesaler
- 1st
- Coast to Coast Claim Services
- Professional, Scientific, and Technical Services
- 1st
- Fresenius Medical Care
- Health Care and Social Assistance
- 1st
- Midwest Biomedical Resources
- Wholesaler
- 1st
- Motion
- Manufacturing
- 1st
- North American Safety Products Inc
- Manufacturing
- 1st
- Reachout Tech
- Professional, Scientific, and Technical Services
- 1st
- Terminix
- Services
- 1st
- UniFirst
- Services
Presented by
8910 W 192nd St
Hmm, there seems to have been an error sending your message. Please try again.
Thanks! Your message was sent.







