Your email has been sent.
Investment Highlights
- Located in Tribeca East Historic District with rich architectural character.
- Renovations include updated electric, plumbing, and modern lighting.
- Excellent accessibility and strong neighborhood foot traffic.
- Surrounded by top dining, design, and cultural venues in Manhattan.
- Features exposed brick, cast-iron columns, and restored ceilings.
- Flexible floor plans suitable for varied high-end uses.
Executive Summary
9 White Street stands in the heart of Tribeca, one of Manhattan’s most sought-after neighborhoods, blending historic character with contemporary updates. Originally constructed in the 19th century, this co-op building is part of the Tribeca East Historic District and offers classic architectural features, including cast-iron details, exposed brick, and restored tin ceilings. The building has recently undergone extensive renovations directed by ARO Architects, incorporating modern systems while preserving original design elements that evoke its authentic industrial charm. With upgraded electric and plumbing and a newly installed lighting system, the property is ready to accommodate a range of uses, from luxury retail to gallery or office concepts. Positioned near world-class dining and cultural destinations, 9 White Street benefits from excellent accessibility and strong foot traffic. This landmark setting combines flexibility with historic integrity, creating a uniquely distinguished environment for businesses in the heart of Downtown Manhattan.
1 Unit Available
- Unit
- Unit Size
- Condo Use
- Price
- NOI
| Sale Type | Investment or Owner User |
| Sale Type | Investment or Owner User |
All major systems have been updated. Upgraded electric & plumbing. New staircase to the lower level. Newly installed white-oak hardwood floors on the ground floor, and polished concrete in the lower level. Restored tin ceilings. Exposed and restored cast-iron columns. Restored skylight and rear windows. New HVAC.
Neighbors include an exciting mix of art galleries, fashion, and design. Galleries include James Cohan, Luhring Augustine, Ortuzar Projects, Bortolami, David Zwirner’s 52 Walker, Mendes Wood DM. Retail/design include Todd Snyder, Rag & Bone, Ted Muehling, RBW Lighting, R 20th Century, and Double Knot Rugs.
| Unit | Unit Size | Condo Use | Price | NOI |
| Unit 1 | 6,200 SF | Office/Retail | Upon Request | - |
Unit 1
| Unit Size |
| 6,200 SF |
| Condo Use |
| Office/Retail |
| Price |
| Upon Request |
| NOI |
| - |
Unit 1
| Unit Size | 6,200 SF |
| Condo Use | Office/Retail |
| Price | Upon Request |
| NOI | - |
| Sale Type | Investment or Owner User |
| Description | |
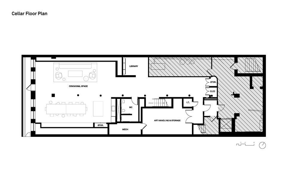
| The available space spans the ground floor and lower level, totaling approximately 6,200 square feet of fully renovated interiors. Features include restored 16-foot ceilings, white-oak hardwood flooring on the ground level, and concrete floors below. The layout is enhanced by exposed brick walls, original cast-iron columns, and new mechanical systems, including HVAC. A new internal staircase connects both levels, offering seamless vertical flow. The space is ideal for luxury retail, showroom, gallery, or customized build-outs.</li></ul> | |
| Sale Notes | |
| Prime Tribeca co-op for sale. This ground floor gallery and lower-level office has undergone extensive renovations designed by architect ARO. <br> <br> All major systems have been updated. Upgraded electric & plumbing. New staircase to the lower level. Newly installed white-oak hardwood floors on the ground floor, and polished concrete in the lower level. Restored tin ceilings. Exposed and restored cast-iron columns. Restored skylight and rear windows. New HVAC. <br> <br> Neighbors include an exciting mix of art galleries, fashion, and design. Galleries include James Cohan, Luhring Augustine, Ortuzar Projects, Bortolami, David Zwirner’s 52 Walker, Mendes Wood DM. Retail/design include Todd Snyder, Rag & Bone, Ted Muehling, RBW Lighting, R 20th Century, and Double Knot Rugs.</li></ul> |
Property Facts
| Total Building Size | 17,100 SF | Floors | 5 |
| Property Type | Multifamily (Condo) | Typical Floor Size | 2,510 SF |
| Property Subtype | Apartment | Year Built | 1912 |
| Building Class | C | Lot Size | 0.09 AC |
| Zoning | C6-2A - In C6-2A you can build a variety of commercial building uses, community facilities, and residential buildings. | ||
| Total Building Size | 17,100 SF |
| Property Type | Multifamily (Condo) |
| Property Subtype | Apartment |
| Building Class | C |
| Floors | 5 |
| Typical Floor Size | 2,510 SF |
| Year Built | 1912 |
| Lot Size | 0.09 AC |
| Zoning | C6-2A - In C6-2A you can build a variety of commercial building uses, community facilities, and residential buildings. |
Unit Mix Information
| Description | No. Units | Avg. Rent/Mo | SF |
|---|---|---|---|
| Studios | 2 | - | - |
Presented by
9-11 White St
Hmm, there seems to have been an error sending your message. Please try again.
Thanks! Your message was sent.




