Your email has been sent.
HIGHLIGHTS
- Positioned at the epicenter of the Grand Central District, steps from Bryant Park and major transit hubs.
- Recent capital improvements include new elevator systems, façade, HVAC, windows, and ADA bathrooms.
- Surrounded by top-tier retail, dining, and cultural institutions in Midtown Manhattan.
- Full-floor availabilities with flexible layouts, including medical and office configurations.
- Attended lobby, high-end finishes, and 24/7 access with tenant-controlled climate control.
Display Rental Rate as
- SPACE
- SIZE
- TERM
- RENTAL RATE
- SPACE USE
- CONDITION
- AVAILABLE
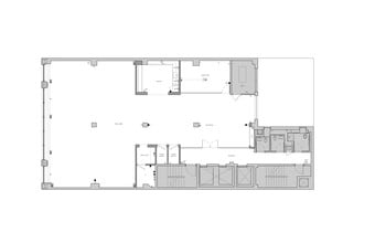
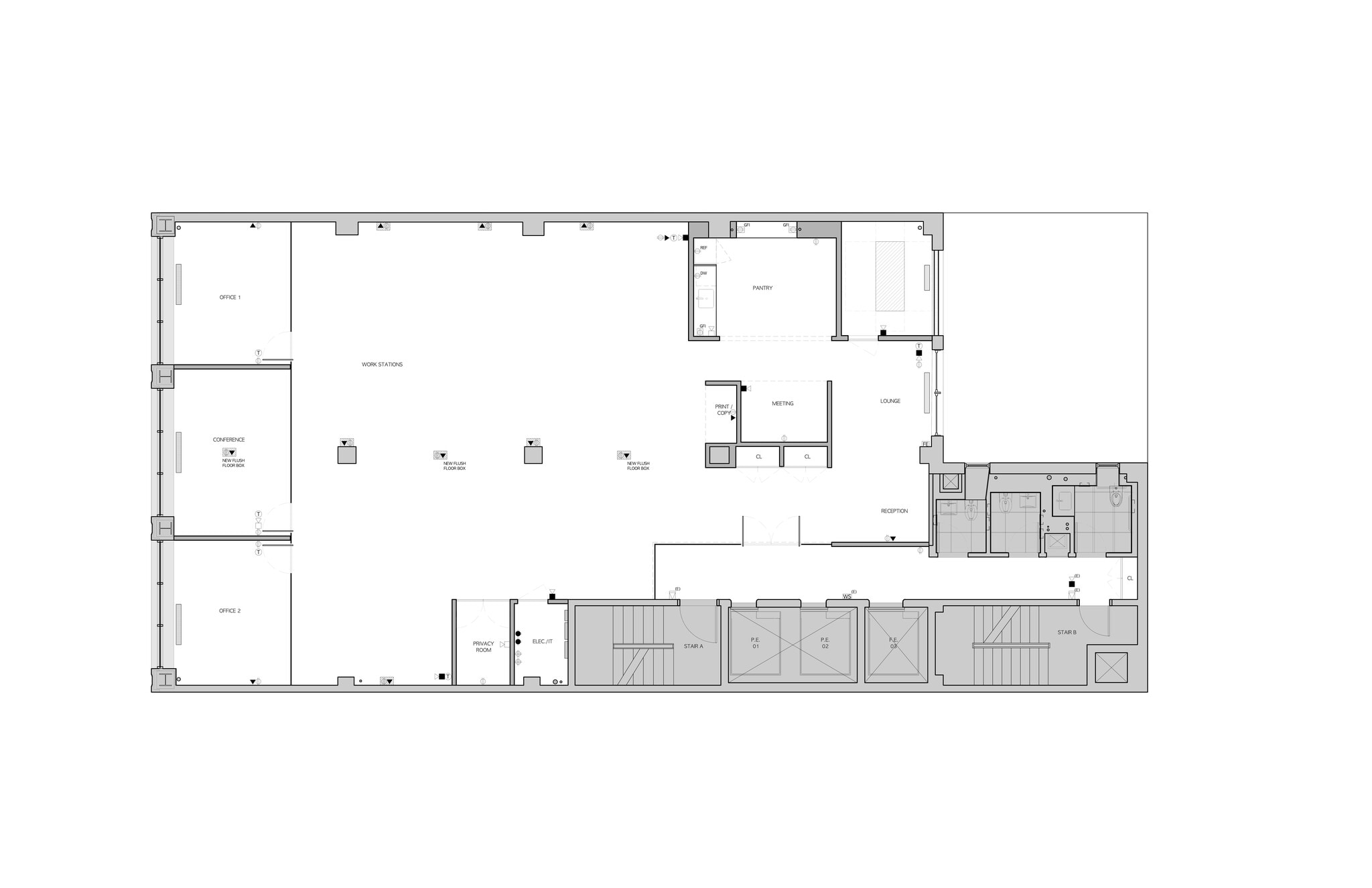
• New prebuilt space • 8–10 person conference room • 2 phone rooms • Print/copy room • IT room • Large eat-in pantry • Open area for ~24 people.
- Fully Built-Out as Standard Office
- Fits 14 - 43 People
- Space is in Excellent Condition
- Print/Copy Room
- Mostly Open Floor Plan Layout
- 1 Conference Room
- Can be combined with additional space(s) for up to 10,525 SF of adjacent space
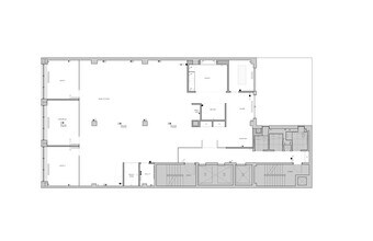
• New prebuilt space • 3 windowed offices • Small conference room or private office • Privacy Room/ Storage space • Eat in pantry • Open area for ~14 people
- Fully Built-Out as Standard Office
- Fits 14 - 43 People
- 1 Conference Room
- Can be combined with additional space(s) for up to 10,525 SF of adjacent space
- Natural Light
- Mostly Open Floor Plan Layout
- 3 Private Offices
- Space is in Excellent Condition
- Secure Storage
- Open-Plan
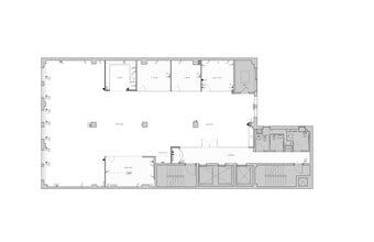
• 4 windowed office s • 1 internal office • 2 conference rooms • 23 workstations • Pantry
- Fully Built-Out as Standard Office
- Fits 14 - 43 People
- 2 Conference Rooms
- Space is in Excellent Condition
- Secure Storage
- Mostly Open Floor Plan Layout
- 5 Private Offices
- 23 Workstations
- Can be combined with additional space(s) for up to 15,772 SF of adjacent space
- Natural Light
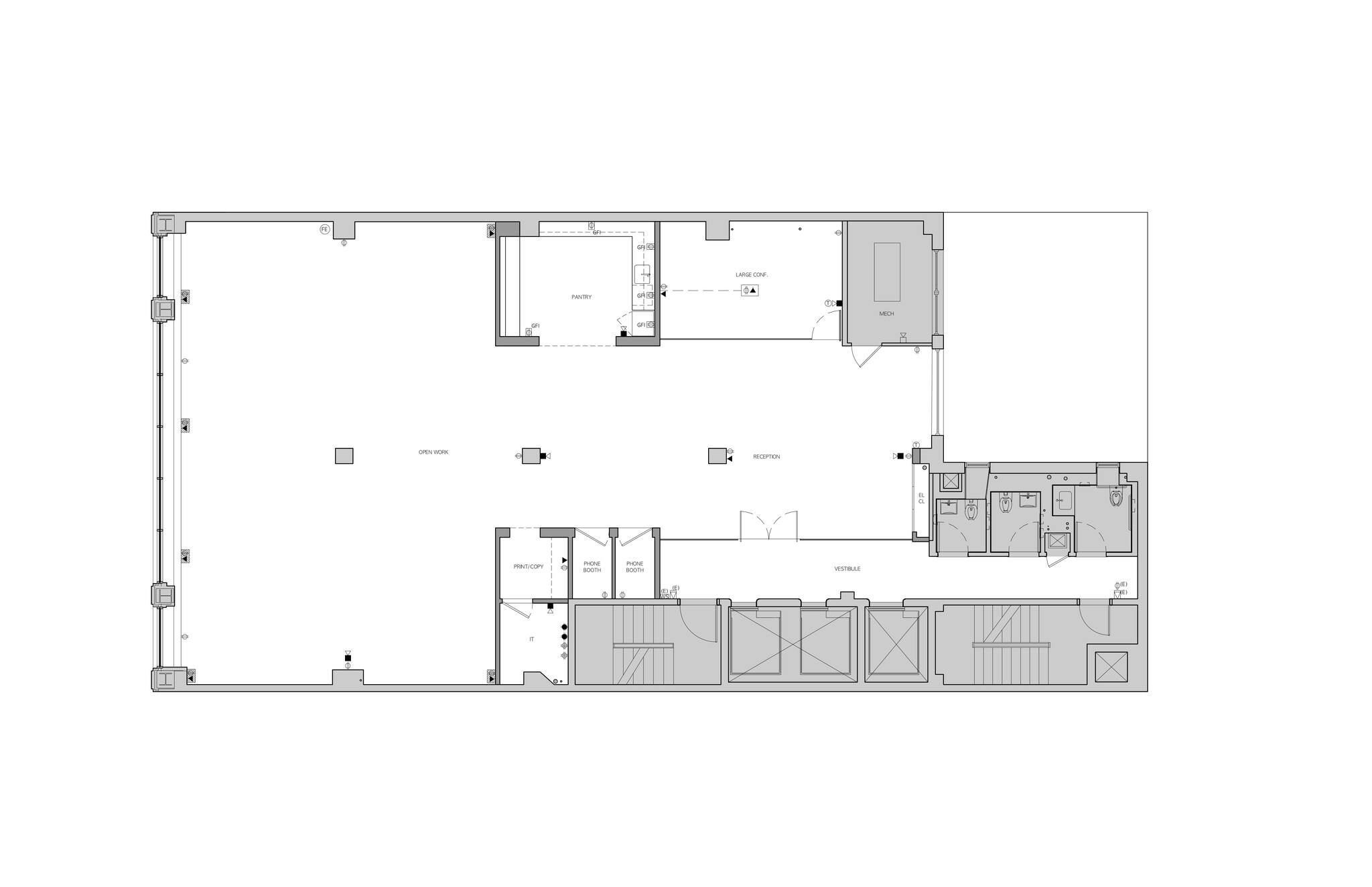
• 3 internal offices • 1 conference room • Large open space • Large eat in pantry • Open area for ~ 14 people
- Fully Built-Out as Standard Office
- Fits 14 - 43 People
- 1 Conference Room
- Can be combined with additional space(s) for up to 15,772 SF of adjacent space
- Open-Plan
- Open Floor Plan Layout
- 3 Private Offices
- Space is in Excellent Condition
- Secure Storage
| Space | Size | Term | Rental Rate | Space Use | Condition | Available |
| 2nd Floor | 5,266 SF | Negotiable | Upon Request Upon Request Upon Request Upon Request | Office | Full Build-Out | Now |
| 3rd Floor | 5,259 SF | Negotiable | Upon Request Upon Request Upon Request Upon Request | Office | Full Build-Out | Now |
| 8th Floor | 5,255 SF | Negotiable | Upon Request Upon Request Upon Request Upon Request | Office | Full Build-Out | Now |
| 10th Floor | 5,258 SF | Negotiable | Upon Request Upon Request Upon Request Upon Request | Office | Full Build-Out | Now |
2nd Floor
| Size |
| 5,266 SF |
| Term |
| Negotiable |
| Rental Rate |
| Upon Request Upon Request Upon Request Upon Request |
| Space Use |
| Office |
| Condition |
| Full Build-Out |
| Available |
| Now |
3rd Floor
| Size |
| 5,259 SF |
| Term |
| Negotiable |
| Rental Rate |
| Upon Request Upon Request Upon Request Upon Request |
| Space Use |
| Office |
| Condition |
| Full Build-Out |
| Available |
| Now |
8th Floor
| Size |
| 5,255 SF |
| Term |
| Negotiable |
| Rental Rate |
| Upon Request Upon Request Upon Request Upon Request |
| Space Use |
| Office |
| Condition |
| Full Build-Out |
| Available |
| Now |
10th Floor
| Size |
| 5,258 SF |
| Term |
| Negotiable |
| Rental Rate |
| Upon Request Upon Request Upon Request Upon Request |
| Space Use |
| Office |
| Condition |
| Full Build-Out |
| Available |
| Now |
- SPACE
- SIZE
- TERM
- RENTAL RATE
- SPACE USE
- CONDITION
- AVAILABLE
• New prebuilt space • 8–10 person conference room • 2 phone rooms • Print/copy room • IT room • Large eat-in pantry • Open area for ~24 people.
- Fully Built-Out as Standard Office
- Fits 14 - 43 People
- Space is in Excellent Condition
- Print/Copy Room
- Mostly Open Floor Plan Layout
- 1 Conference Room
- Can be combined with additional space(s) for up to 10,525 SF of adjacent space
• New prebuilt space • 3 windowed offices • Small conference room or private office • Privacy Room/ Storage space • Eat in pantry • Open area for ~14 people
- Fully Built-Out as Standard Office
- Fits 14 - 43 People
- 1 Conference Room
- Can be combined with additional space(s) for up to 10,525 SF of adjacent space
- Natural Light
- Mostly Open Floor Plan Layout
- 3 Private Offices
- Space is in Excellent Condition
- Secure Storage
- Open-Plan
• 4 windowed office s • 1 internal office • 2 conference rooms • 23 workstations • Pantry
- Fully Built-Out as Standard Office
- Fits 14 - 43 People
- 2 Conference Rooms
- Space is in Excellent Condition
- Secure Storage
- Mostly Open Floor Plan Layout
- 5 Private Offices
- 23 Workstations
- Can be combined with additional space(s) for up to 15,772 SF of adjacent space
- Natural Light
• Medical installation • Reception with waiting area • 12 Patient rooms • 2 private offices • 2 storage rooms • Administrative room with 3 workstations • 2 storage rooms with filing cabinets
- Fully Built-Out as Standard Medical Space
- Space is in Excellent Condition
- Reception Area
- Secure Storage
- Doctors Office
- Private Practice
- Health Center
- Office intensive layout
- Can be combined with additional space(s) for up to 15,772 SF of adjacent space
- Partitioned Offices
- Medical Space
- Physical Therapy
- Clinic
• 3 internal offices • 1 conference room • Large open space • Large eat in pantry • Open area for ~ 14 people
- Fully Built-Out as Standard Office
- Fits 14 - 43 People
- 1 Conference Room
- Can be combined with additional space(s) for up to 15,772 SF of adjacent space
- Open-Plan
- Open Floor Plan Layout
- 3 Private Offices
- Space is in Excellent Condition
- Secure Storage
| Space | Size | Term | Rental Rate | Space Use | Condition | Available |
| 2nd Floor | 5,266 SF | Negotiable | Upon Request Upon Request Upon Request Upon Request | Office | Full Build-Out | Now |
| 3rd Floor | 5,259 SF | Negotiable | Upon Request Upon Request Upon Request Upon Request | Office | Full Build-Out | Now |
| 8th Floor | 5,255 SF | Negotiable | Upon Request Upon Request Upon Request Upon Request | Office | Full Build-Out | Now |
| 9th Floor | 5,259 SF | Negotiable | Upon Request Upon Request Upon Request Upon Request | Medical | Full Build-Out | Now |
| 10th Floor | 5,258 SF | Negotiable | Upon Request Upon Request Upon Request Upon Request | Office | Full Build-Out | Now |
2nd Floor
| Size |
| 5,266 SF |
| Term |
| Negotiable |
| Rental Rate |
| Upon Request Upon Request Upon Request Upon Request |
| Space Use |
| Office |
| Condition |
| Full Build-Out |
| Available |
| Now |
3rd Floor
| Size |
| 5,259 SF |
| Term |
| Negotiable |
| Rental Rate |
| Upon Request Upon Request Upon Request Upon Request |
| Space Use |
| Office |
| Condition |
| Full Build-Out |
| Available |
| Now |
8th Floor
| Size |
| 5,255 SF |
| Term |
| Negotiable |
| Rental Rate |
| Upon Request Upon Request Upon Request Upon Request |
| Space Use |
| Office |
| Condition |
| Full Build-Out |
| Available |
| Now |
9th Floor
| Size |
| 5,259 SF |
| Term |
| Negotiable |
| Rental Rate |
| Upon Request Upon Request Upon Request Upon Request |
| Space Use |
| Medical |
| Condition |
| Full Build-Out |
| Available |
| Now |
10th Floor
| Size |
| 5,258 SF |
| Term |
| Negotiable |
| Rental Rate |
| Upon Request Upon Request Upon Request Upon Request |
| Space Use |
| Office |
| Condition |
| Full Build-Out |
| Available |
| Now |
2nd Floor
| Size | 5,266 SF |
| Term | Negotiable |
| Rental Rate | Upon Request |
| Space Use | Office |
| Condition | Full Build-Out |
| Available | Now |
• New prebuilt space • 8–10 person conference room • 2 phone rooms • Print/copy room • IT room • Large eat-in pantry • Open area for ~24 people.
- Fully Built-Out as Standard Office
- Mostly Open Floor Plan Layout
- Fits 14 - 43 People
- 1 Conference Room
- Space is in Excellent Condition
- Can be combined with additional space(s) for up to 10,525 SF of adjacent space
- Print/Copy Room
3rd Floor
| Size | 5,259 SF |
| Term | Negotiable |
| Rental Rate | Upon Request |
| Space Use | Office |
| Condition | Full Build-Out |
| Available | Now |
• New prebuilt space • 3 windowed offices • Small conference room or private office • Privacy Room/ Storage space • Eat in pantry • Open area for ~14 people
- Fully Built-Out as Standard Office
- Mostly Open Floor Plan Layout
- Fits 14 - 43 People
- 3 Private Offices
- 1 Conference Room
- Space is in Excellent Condition
- Can be combined with additional space(s) for up to 10,525 SF of adjacent space
- Secure Storage
- Natural Light
- Open-Plan
8th Floor
| Size | 5,255 SF |
| Term | Negotiable |
| Rental Rate | Upon Request |
| Space Use | Office |
| Condition | Full Build-Out |
| Available | Now |
• 4 windowed office s • 1 internal office • 2 conference rooms • 23 workstations • Pantry
- Fully Built-Out as Standard Office
- Mostly Open Floor Plan Layout
- Fits 14 - 43 People
- 5 Private Offices
- 2 Conference Rooms
- 23 Workstations
- Space is in Excellent Condition
- Can be combined with additional space(s) for up to 15,772 SF of adjacent space
- Secure Storage
- Natural Light
9th Floor
| Size | 5,259 SF |
| Term | Negotiable |
| Rental Rate | Upon Request |
| Space Use | Medical |
| Condition | Full Build-Out |
| Available | Now |
• Medical installation • Reception with waiting area • 12 Patient rooms • 2 private offices • 2 storage rooms • Administrative room with 3 workstations • 2 storage rooms with filing cabinets
- Fully Built-Out as Standard Medical Space
- Office intensive layout
- Space is in Excellent Condition
- Can be combined with additional space(s) for up to 15,772 SF of adjacent space
- Reception Area
- Partitioned Offices
- Secure Storage
- Medical Space
- Doctors Office
- Physical Therapy
- Private Practice
- Clinic
- Health Center
10th Floor
| Size | 5,258 SF |
| Term | Negotiable |
| Rental Rate | Upon Request |
| Space Use | Office |
| Condition | Full Build-Out |
| Available | Now |
• 3 internal offices • 1 conference room • Large open space • Large eat in pantry • Open area for ~ 14 people
- Fully Built-Out as Standard Office
- Open Floor Plan Layout
- Fits 14 - 43 People
- 3 Private Offices
- 1 Conference Room
- Space is in Excellent Condition
- Can be combined with additional space(s) for up to 15,772 SF of adjacent space
- Secure Storage
- Open-Plan
PROPERTY OVERVIEW
Located in the heart of Midtown Manhattan’s Grand Central District, 9 East 38th Street offers full-floor office availabilities in a boutique building that has undergone extensive capital improvements. Tenants benefit from a fully renovated attended lobby, high-end finishes, and 24/7 access with tenant-controlled A/C. The building’s infrastructure has been modernized with upgrades to elevator systems, façade, HVAC, fire/life safety, and ADA-compliant bathrooms on every floor. Each floor is thoughtfully designed to accommodate a range of tenant needs—from collaborative open layouts to private offices and specialized medical installations. The 9th floor features a turnkey medical suite with 12 patient rooms, reception, and administrative areas. Other floors include prebuilt configurations with conference rooms, phone booths, pantries, and open workspaces for up to 24 people. Situated just two blocks from Grand Central Terminal and Times Square, and directly across from Bryant Park and the New York Public Library, the location offers unmatched access to major subway lines (4, 5, 6, B, D, F, M, 7, S, N, Q, R, W), Metro-North, and LIRR. The surrounding neighborhood is rich with retail, dining, and cultural amenities, making it an ideal setting for businesses seeking convenience and prestige.
PROPERTY FACTS
SELECT TENANTS
- FLOOR
- TENANT NAME
- INDUSTRY
- 10th
- Insidesource
- Wholesaler
- 1st
- Japas38
- Accommodation and Food Services
- Multiple
- Maxwell Kates, Inc.
- Real Estate
- 9th
- Scott G. Duke, DC
- Health Care and Social Assistance
Presented by
9e38 | 9 E 38th St
Hmm, there seems to have been an error sending your message. Please try again.
Thanks! Your message was sent.


















