Log In/Sign Up
Your email has been sent.
Highlights
- Full floor opportunity.
- Ample guest parking and secured employee parking.
All Available Space(1)
Display Rental Rate as
- Space
- Size
- Term
- Rental Rate
- Space Use
- Condition
- Available
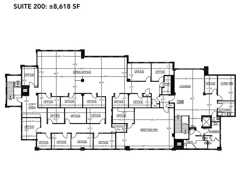
Full floor office opportunity featuring a mix of open office space, private offices, and conference/meeting rooms.
- Lease rate does not include utilities, property expenses or building services
- Fits 8 - 69 People
- 1 Conference Room
- Print/Copy Room
- Kitchen.
- Fully Built-Out as Standard Office
- 18 Private Offices
- Space is in Excellent Condition
- Fully Carpeted
- Employee Lounge/Break Room.
| Space | Size | Term | Rental Rate | Space Use | Condition | Available |
| 2nd Floor, Ste 200 | 3,200-8,618 SF | Negotiable | $30.00 /SF/YR $2.50 /SF/MO $258,540 /YR $21,545 /MO | Office | Full Build-Out | Now |
2nd Floor, Ste 200
| Size |
| 3,200-8,618 SF |
| Term |
| Negotiable |
| Rental Rate |
| $30.00 /SF/YR $2.50 /SF/MO $258,540 /YR $21,545 /MO |
| Space Use |
| Office |
| Condition |
| Full Build-Out |
| Available |
| Now |
1 of 1
Videos
Matterport 3D Exterior
Matterport 3D Tour
Photos
Street View
Street
Map
2nd Floor, Ste 200
| Size | 3,200-8,618 SF |
| Term | Negotiable |
| Rental Rate | $30.00 /SF/YR |
| Space Use | Office |
| Condition | Full Build-Out |
| Available | Now |
Full floor office opportunity featuring a mix of open office space, private offices, and conference/meeting rooms.
- Lease rate does not include utilities, property expenses or building services
- Fully Built-Out as Standard Office
- Fits 8 - 69 People
- 18 Private Offices
- 1 Conference Room
- Space is in Excellent Condition
- Print/Copy Room
- Fully Carpeted
- Kitchen.
- Employee Lounge/Break Room.
Property Overview
Highly visible office building with attractive curb appeal. Located in downtown Pleasanton and within walking distance to an abundance of restaurants and retail amenities
- 24 Hour Access
Property Facts
Building Type
Office
Year Built
1999
Building Height
2 Stories
Building Size
16,425 SF
Building Class
C
Typical Floor Size
10,675 SF
Parking
30 Surface Parking Spaces
Select Tenants
- Floor
- Tenant Name
- Industry
- Unknown
- 680 Doug Buenz Group/Compass
- -
- Unknown
- All Pro Window Cleaning Service
- Construction
- 1st
- Blaise Lofland
- Real Estate
- 1st
- Compass
- Real Estate
- Unknown
- Dan Gamache
- -
- 1st
- Huggins Real Estate Group
- Real Estate
- 1st
- Moxley Real Estate
- Real Estate
- 1st
- Private Mortgage Advisors Llc
- Finance and Insurance
- 1st
- Timothy McGuire
- Real Estate
- 1st
- Wells Fargo Bank
- Finance and Insurance
Walk Score®
Walker's Paradise (92)
1 of 23
Videos
Matterport 3D Exterior
Matterport 3D Tour
Photos
Street View
Street
Map
Presented by
900 Main St
Already a member? Log In
Hmm, there seems to have been an error sending your message. Please try again.
Thanks! Your message was sent.
Your message has been sent!
Activate your LoopNet account now to track properties, get real-time alerts, save time on future inquiries, and more.






