Your email has been sent.
901-903 Lexington Ave 1,000 - 1,765 SF Office/Medical Condo Units Offered at $499,000 - $970,000 Per Unit in New York, NY 10065



Investment Highlights
- STREET ENTRANCE SEPARATE FROM LOBBY ON EAST 69TH STREET
- ADAPTABLE TO ANY MEDICAL SPECIALTY
- CENTRAL AIR CONDITIONING
2 Units Available
Unit B
| Unit Size | 1,000 SF | Condo Use | Office/Medical |
| Price | $499,000 | Sale Type | Owner User |
| Price Per SF | $499.00 |
| Unit Size | 1,000 SF |
| Price | $499,000 |
| Price Per SF | $499.00 |
| Condo Use | Office/Medical |
| Sale Type | Owner User |
Description
Available for sale, 901 Lexington Avenue, Suite B is a ground floor medical suite located inside a full-service co-op building. This renovated space features vinyl plank flooring, central air conditioning, and a separate street entrance with no stairs.
Currently configured as a physical therapy center, the wide-open layout of approximately 1,000 square feet features pre-war details, two restrooms, a recovery area, and kitchenette. This space is adaptable to any medical specialty.
901 Lexington Avenue is easily accessible by public transportation via Upper East Side subway lines and bus routes and is within close proximity to several top medical facilities in New York including Lenox Hill Hospital, Memorial Sloan Kettering Cancer Center, The Manhattan Eye, Ear, Nose and Throat Hospital, The Hospital for Special Surgery, Mount Sinai Medical Center, NY Presbyterian and Weill Cornell Hospitals.
901 Lexington Avenue B Floor Plan 2024
901 Lexington Ave 1B-1
901 Lexington Ave 1B-2
901 Lexington Ave 1B-4
901 Lexington Ave 1B-3
901 Lexington Ave 1B-6
901 Lexington Ave 1B-7
901 Lexington Ave 1B-11
901 Lexington Ave 1B-10
901 Lexington Ave 1B-9
901 Lexington Ave 1B-5
901 Lexington Ave 1B-8
Unit Ground
| Unit Size | 1,765 SF | Condo Use | Office/Medical |
| Price | $970,000 | Sale Type | Investment |
| Price Per SF | $549.58 |
| Unit Size | 1,765 SF |
| Price | $970,000 |
| Price Per SF | $549.58 |
| Condo Use | Office/Medical |
| Sale Type | Investment |
Description
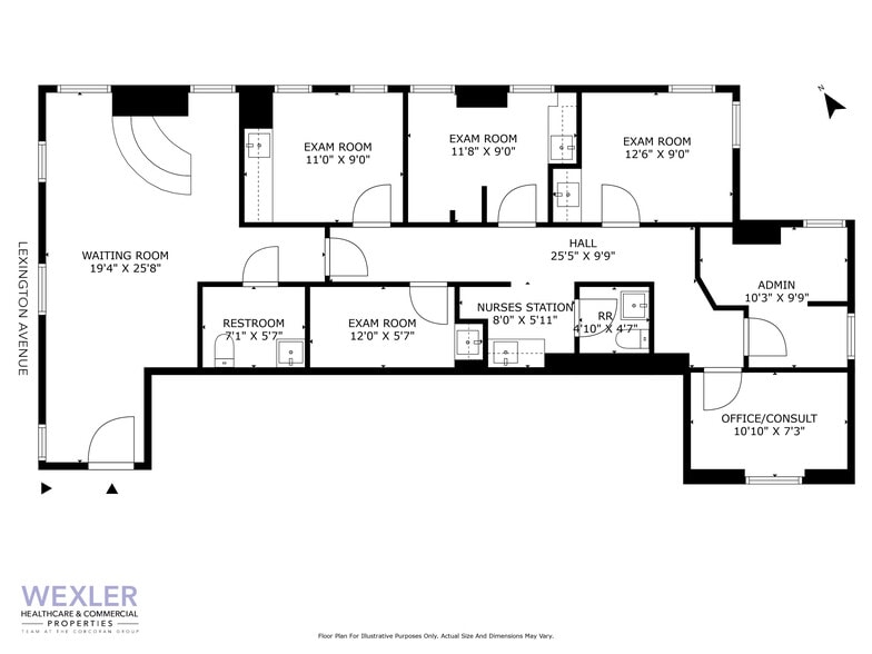
Available for sale, 901-903 Lexington Avenue is a ground-floor medical suite located inside a full-service co-op building between East 67 and East 68th Streets. This renovated space features tile flooring, central air conditioning, and a street entrance separate from the residential portion.
Currently configured for standard medical, the layout of approximately 1,765 square feet features a large waiting area and reception, four exam rooms, an office/consult, a nurses station, admin office, and two restrooms. This space is adaptable to any medical specialty.
901 Lexington Avenue is easily accessible by public transportation via 4, 5 and 6 subway lines, UES bus routes and is within close proximity to several top medical facilities in New York including Lenox Hill Hospital, Memorial Sloan Kettering Cancer Center, The Manhattan Eye, Ear, Nose and Throat Hospital, The Hospital for Special Surgery, Mount Sinai Medical Center, NY Presbyterian and Weill Cornell Hospitals.
FP 901-903 Lex GF
901-903 Lex GF-01
901-903 Lex GF-3
901-903 Lex GF-2
901-903 Lex GF-6
901-903 Lex GF-4
901-903 Lex GF-5
901-903 Lex GF-8
901-903 Lex GF-7
Property Facts
| Total Building Size | 59,928 SF | Floors | 11 |
| Property Type | Multifamily | Typical Floor Size | 5,448 SF |
| Property Subtype | Apartment | Year Built | 1907 |
| Building Class | B | Lot Size | 0.14 AC |
| Zoning | R9X | ||
| Total Building Size | 59,928 SF |
| Property Type | Multifamily |
| Property Subtype | Apartment |
| Building Class | B |
| Floors | 11 |
| Typical Floor Size | 5,448 SF |
| Year Built | 1907 |
| Lot Size | 0.14 AC |
| Zoning | R9X |
Amenities
Site Amenities
- Vintage Building
Unit Mix Information
| Description | No. Units | Avg. Rent/Mo | SF |
|---|---|---|---|
| Studios | 17 | - | - |
Presented by
901-903 Lexington Ave
Hmm, there seems to have been an error sending your message. Please try again.
Thanks! Your message was sent.


