Log In/Sign Up
Your email has been sent.
911 Park Ave 1,550 - 3,573 SF Condo Units Offered at $1,350,000 - $3,450,000 Per Unit in New York, NY 10021

Investment Highlights
- Private street entrance on Park Avenue
- Pristine Installation
- Adaptable to any medical specialty
- Surgical Suite
- Poured Flooring
2 Units Available
- Unit
- Unit Size
- Condo Use
- Price
- NOI
| Sale Type | Owner User |
| Sale Type | Owner User |
Description
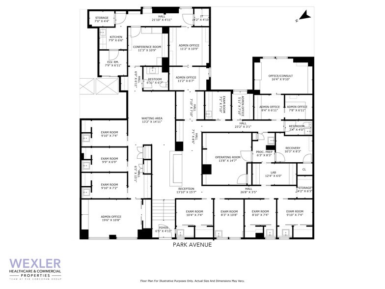
Available for sale, 911 Park Avenue, Suite 1A, located on the Upper East Side, is a modern, fully-equipped space ideal for a variety of medical practices. Currently configured as an upscale dermatology center, this 3,573-square-foot suite is adaptable to any medical specialty.
The office features an elegant waiting and reception area, an operating room, a procedure prep area, a recovery room, eight exam rooms, a lab, an office/consult, six admin offices, a staff kitchen, a conference room, two storage rooms, two restrooms, and an IT closet.
This fully featured medical suite features a private street entrance on Park Avenue, Midmark Ritter 355 procedure lights in each exam room and the operating room, healthcare-class poured flooring, speaker system throughout, and is wired for video security.
911 Park Ave is easily accessible by public transportation via the 4 and 6 trains at 77th St, the 4, 5, 6, N, Q and R trains at 86th St as well as Upper East Side bus routes. The building is proximate to Lenox Hill Hospital and Mount Sinai.
Maintenance: $9,089.31/month
Financing: 50% maximum
The office features an elegant waiting and reception area, an operating room, a procedure prep area, a recovery room, eight exam rooms, a lab, an office/consult, six admin offices, a staff kitchen, a conference room, two storage rooms, two restrooms, and an IT closet.
This fully featured medical suite features a private street entrance on Park Avenue, Midmark Ritter 355 procedure lights in each exam room and the operating room, healthcare-class poured flooring, speaker system throughout, and is wired for video security.
911 Park Ave is easily accessible by public transportation via the 4 and 6 trains at 77th St, the 4, 5, 6, N, Q and R trains at 86th St as well as Upper East Side bus routes. The building is proximate to Lenox Hill Hospital and Mount Sinai.
Maintenance: $9,089.31/month
Financing: 50% maximum
| Sale Type | Owner User |
| Sale Type | Owner User |
Description
Available for sale, 911 Park Avenue, Suite 1B, is a medical office located at the corner of Park Avenue and East 80th Street on the Upper East Side. Currently configured as an internal medicine practice, this 1,550-square-foot suite is adaptable to any medical specialty.
The office features waiting and reception areas, seven exam rooms, two offices/consults, an admin office, two restrooms, and a staff kitchenette.
This medical suite features a private street entrance on East 80th Street, with overhead/recessed lighting and hardwood flooring throughout.
911 Park Ave is easily accessible by public transportation via the 4 and 6 trains at 77th St, the 4, 5, 6, N, Q and R trains at 86th St as well as Upper East Side bus routes. The building is proximate to Lenox Hill Hospital and Mount Sinai.
Maintenance: $7,520.21/month
Financing: 50% maximum
The office features waiting and reception areas, seven exam rooms, two offices/consults, an admin office, two restrooms, and a staff kitchenette.
This medical suite features a private street entrance on East 80th Street, with overhead/recessed lighting and hardwood flooring throughout.
911 Park Ave is easily accessible by public transportation via the 4 and 6 trains at 77th St, the 4, 5, 6, N, Q and R trains at 86th St as well as Upper East Side bus routes. The building is proximate to Lenox Hill Hospital and Mount Sinai.
Maintenance: $7,520.21/month
Financing: 50% maximum
| Unit | Unit Size | Condo Use | Price | NOI |
| Unit 1A | 3,573 SF | Office/Medical | $3,450,000 ($965.58/SF) | - |
| Unit 1B | 1,550 SF | Medical | $1,350,000 ($870.97/SF) | - |
Unit 1A
| Unit Size |
| 3,573 SF |
| Condo Use |
| Office/Medical |
| Price |
| $3,450,000 ($965.58/SF) |
| NOI |
| - |
Unit 1B
| Unit Size |
| 1,550 SF |
| Condo Use |
| Medical |
| Price |
| $1,350,000 ($870.97/SF) |
| NOI |
| - |
1 of 7
Videos
Matterport 3D Exterior
Matterport 3D Tour
Photos
Street View
Street
Map
Unit 1A
| Unit Size | 3,573 SF |
| Condo Use | Office/Medical |
| Price | $3,450,000 ($965.58/SF) |
| NOI | - |
| Sale Type | Owner User |
| Description | |
| Available for sale, 911 Park Avenue, Suite 1A, located on the Upper East Side, is a modern, fully-equipped space ideal for a variety of medical practices. Currently configured as an upscale dermatology center, this 3,573-square-foot suite is adaptable to any medical specialty.<br> <br> The office features an elegant waiting and reception area, an operating room, a procedure prep area, a recovery room, eight exam rooms, a lab, an office/consult, six admin offices, a staff kitchen, a conference room, two storage rooms, two restrooms, and an IT closet. <br> <br> This fully featured medical suite features a private street entrance on Park Avenue, Midmark Ritter 355 procedure lights in each exam room and the operating room, healthcare-class poured flooring, speaker system throughout, and is wired for video security.<br> <br> 911 Park Ave is easily accessible by public transportation via the 4 and 6 trains at 77th St, the 4, 5, 6, N, Q and R trains at 86th St as well as Upper East Side bus routes. The building is proximate to Lenox Hill Hospital and Mount Sinai.<br> <br> Maintenance: $9,089.31/month<br> Financing: 50% maximum</li></ul> |
1 of 25
Videos
Matterport 3D Exterior
Matterport 3D Tour
Photos
Street View
Street
Map
Unit 1B
| Unit Size | 1,550 SF |
| Condo Use | Medical |
| Price | $1,350,000 ($870.97/SF) |
| NOI | - |
| Sale Type | Owner User |
| Description | |
| Available for sale, 911 Park Avenue, Suite 1B, is a medical office located at the corner of Park Avenue and East 80th Street on the Upper East Side. Currently configured as an internal medicine practice, this 1,550-square-foot suite is adaptable to any medical specialty.<br> <br> The office features waiting and reception areas, seven exam rooms, two offices/consults, an admin office, two restrooms, and a staff kitchenette.<br> This medical suite features a private street entrance on East 80th Street, with overhead/recessed lighting and hardwood flooring throughout. <br> <br> 911 Park Ave is easily accessible by public transportation via the 4 and 6 trains at 77th St, the 4, 5, 6, N, Q and R trains at 86th St as well as Upper East Side bus routes. The building is proximate to Lenox Hill Hospital and Mount Sinai.<br> Maintenance: $7,520.21/month<br> Financing: 50% maximum</li></ul> |
Property Facts
The following property facts apply to the entire building. Details for individual condo units may vary and are listed in the unit information above.
| Total Building Size | 173,873 SF | Floors | 14 |
| Property Type | Multifamily | Typical Floor Size | 13,167 SF |
| Property Subtype | Apartment | Year Built | 1926 |
| Building Class | B | Lot Size | 0.35 AC |
| Zoning | R10 - High density residential district. | ||
| Total Building Size | 173,873 SF |
| Property Type | Multifamily |
| Property Subtype | Apartment |
| Building Class | B |
| Floors | 14 |
| Typical Floor Size | 13,167 SF |
| Year Built | 1926 |
| Lot Size | 0.35 AC |
| Zoning | R10 - High density residential district. |
1 1
Exceptionally walkable
100/100
Somewhat drivable
30/100
Exceptional public transit
100/100
Exceptionally bikeable
90/100
1 of 2
Videos
Matterport 3D Exterior
Matterport 3D Tour
Photos
Street View
Street
Map
1 of 1
Presented by
911 Park Ave
Already a member? Log In
Hmm, there seems to have been an error sending your message. Please try again.
Thanks! Your message was sent.




