Your email has been sent.
9228 Kingsville 9228 Kingsville St 4,128 - 8,308 SF of Flex Space Available in Houston, TX 77063



HIGHLIGHTS
- New Construction Flex Spaces
- Easy Highway and Major Street Access
- Fully Fenced Property
- Fully Built out Climate-Controlled Offices
- Fully Insulated Warehouse
- Proximity to Energy Corridor & Galleria
FEATURES
ALL AVAILABLE SPACES(2)
Display Rental Rate as
- SPACE
- SIZE
- TERM
- RENTAL RATE
- SPACE USE
- CONDITION
- AVAILABLE
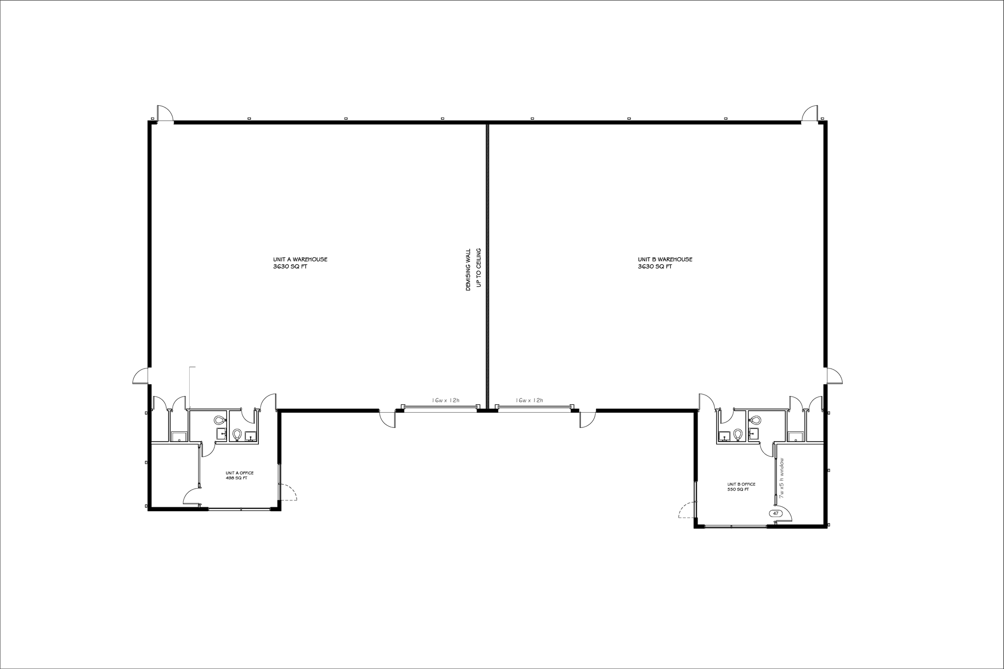
This two-unit flex space offers a combined ±8,308 SF of warehouse and office space in a well-established Houston submarket with easy access to major roads and highways. Each unit includes ±3,630 SF of fully insulated warehouse space with a 22’ clear height and a 12’ grade-level roll-up door, along with climate-controlled office space—±498 SF in Unit A and ±550 SF in Unit B. The property is fully fenced with a total of 6-9 dedicated parking spaces. Units can be leased individually or combined to create a single contiguous warehouse space with offices positioned at opposite ends of the building. The high ceiling and open floor plan make it ideal for general warehousing and storage, distribution, construction service and material providers, parts suppliers, and auto services. Under construction, expected completion in 2H 2025.
- Lease rate does not include utilities, property expenses or building services
- Space is in Excellent Condition
- 1 Drive Bay
- Emergency Lighting
- DDA Compliant
- Smoke Detector
- Fully Built out Climate-Controlled Offices
- Proximity to Energy Corridor & Galleria
- Fully Fenced Property
- Includes 498 SF of dedicated office space
- Can be combined with additional space(s) for up to 8,308 SF of adjacent space
- Central Air and Heating
- Plug & Play
- High Ceilings
- New Construction Flex Spaces
- Easy Highway and Major Street Access
- Fully Insulated Warehouse
This two-unit flex space offers a combined ±8,308 SF of warehouse and office space in a well-established Houston submarket with easy access to major roads and highways. Each unit includes ±3,630 SF of fully insulated warehouse space with a 22’ clear height and a 12’ grade-level roll-up door, along with climate-controlled office space—±498 SF in Unit A and ±550 SF in Unit B. The property is fully fenced with a total of 6-9 dedicated parking spaces. Units can be leased individually or combined to create a single contiguous warehouse space with offices positioned at opposite ends of the building. The high ceiling and open floor plan make it ideal for general warehousing and storage, distribution, construction service and material providers, parts suppliers, and auto services. Under construction, expected completion in 2H 2025.
- Lease rate does not include utilities, property expenses or building services
- Space is in Excellent Condition
- 1 Drive Bay
- Emergency Lighting
- DDA Compliant
- Smoke Detector
- Fully Built out Climate-Controlled Offices
- Proximity to Energy Corridor & Galleria
- Fully Fenced Property
- Includes 550 SF of dedicated office space
- Can be combined with additional space(s) for up to 8,308 SF of adjacent space
- Central Air and Heating
- Plug & Play
- High Ceilings
- New Construction Flex Spaces
- Easy Highway and Major Street Access
- Fully Insulated Warehouse
| Space | Size | Term | Rental Rate | Space Use | Condition | Available |
| 1st Floor - A | 4,128 SF | Negotiable | $14.40 /SF/YR $1.20 /SF/MO $59,443 /YR $4,954 /MO | Flex | Full Build-Out | Now |
| 1st Floor - B | 4,180 SF | Negotiable | Upon Request Upon Request Upon Request Upon Request | Flex | Full Build-Out | Now |
1st Floor - A
| Size |
| 4,128 SF |
| Term |
| Negotiable |
| Rental Rate |
| $14.40 /SF/YR $1.20 /SF/MO $59,443 /YR $4,954 /MO |
| Space Use |
| Flex |
| Condition |
| Full Build-Out |
| Available |
| Now |
1st Floor - B
| Size |
| 4,180 SF |
| Term |
| Negotiable |
| Rental Rate |
| Upon Request Upon Request Upon Request Upon Request |
| Space Use |
| Flex |
| Condition |
| Full Build-Out |
| Available |
| Now |
1st Floor - A
| Size | 4,128 SF |
| Term | Negotiable |
| Rental Rate | $14.40 /SF/YR |
| Space Use | Flex |
| Condition | Full Build-Out |
| Available | Now |
This two-unit flex space offers a combined ±8,308 SF of warehouse and office space in a well-established Houston submarket with easy access to major roads and highways. Each unit includes ±3,630 SF of fully insulated warehouse space with a 22’ clear height and a 12’ grade-level roll-up door, along with climate-controlled office space—±498 SF in Unit A and ±550 SF in Unit B. The property is fully fenced with a total of 6-9 dedicated parking spaces. Units can be leased individually or combined to create a single contiguous warehouse space with offices positioned at opposite ends of the building. The high ceiling and open floor plan make it ideal for general warehousing and storage, distribution, construction service and material providers, parts suppliers, and auto services. Under construction, expected completion in 2H 2025.
- Lease rate does not include utilities, property expenses or building services
- Includes 498 SF of dedicated office space
- Space is in Excellent Condition
- Can be combined with additional space(s) for up to 8,308 SF of adjacent space
- 1 Drive Bay
- Central Air and Heating
- Emergency Lighting
- Plug & Play
- DDA Compliant
- High Ceilings
- Smoke Detector
- New Construction Flex Spaces
- Fully Built out Climate-Controlled Offices
- Easy Highway and Major Street Access
- Proximity to Energy Corridor & Galleria
- Fully Insulated Warehouse
- Fully Fenced Property
1st Floor - B
| Size | 4,180 SF |
| Term | Negotiable |
| Rental Rate | Upon Request |
| Space Use | Flex |
| Condition | Full Build-Out |
| Available | Now |
This two-unit flex space offers a combined ±8,308 SF of warehouse and office space in a well-established Houston submarket with easy access to major roads and highways. Each unit includes ±3,630 SF of fully insulated warehouse space with a 22’ clear height and a 12’ grade-level roll-up door, along with climate-controlled office space—±498 SF in Unit A and ±550 SF in Unit B. The property is fully fenced with a total of 6-9 dedicated parking spaces. Units can be leased individually or combined to create a single contiguous warehouse space with offices positioned at opposite ends of the building. The high ceiling and open floor plan make it ideal for general warehousing and storage, distribution, construction service and material providers, parts suppliers, and auto services. Under construction, expected completion in 2H 2025.
- Lease rate does not include utilities, property expenses or building services
- Includes 550 SF of dedicated office space
- Space is in Excellent Condition
- Can be combined with additional space(s) for up to 8,308 SF of adjacent space
- 1 Drive Bay
- Central Air and Heating
- Emergency Lighting
- Plug & Play
- DDA Compliant
- High Ceilings
- Smoke Detector
- New Construction Flex Spaces
- Fully Built out Climate-Controlled Offices
- Easy Highway and Major Street Access
- Proximity to Energy Corridor & Galleria
- Fully Insulated Warehouse
- Fully Fenced Property
PROPERTY OVERVIEW
This two-unit new construction flex space offers a combined ±8,308 SF of warehouse and office space in a well-established Houston submarket with easy access to major roads and highways. Each unit includes ±3,630 SF of fully insulated warehouse space with a 22’ clear height and a 12’ grade-level roll-up door, along with climate-controlled office space—±498 SF in Unit A and ±550 SF in Unit B. The property is fully fenced with a total of 6-9 dedicated parking spaces. Units can be leased individually or combined to create a single contiguous warehouse space with offices positioned at opposite ends of the building. The high ceiling and open floor plan make it ideal for general warehousing and storage, distribution, construction service and material providers, parts suppliers, and auto services. Under construction, expected completion in 2H 2025.
WAREHOUSE FACILITY FACTS
Contact the Leasing Agent
9228 Kingsville | 9228 Kingsville St


