Log In/Sign Up
Your email has been sent.
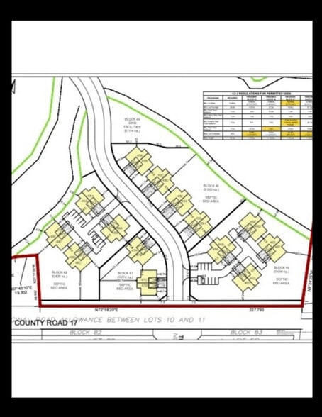
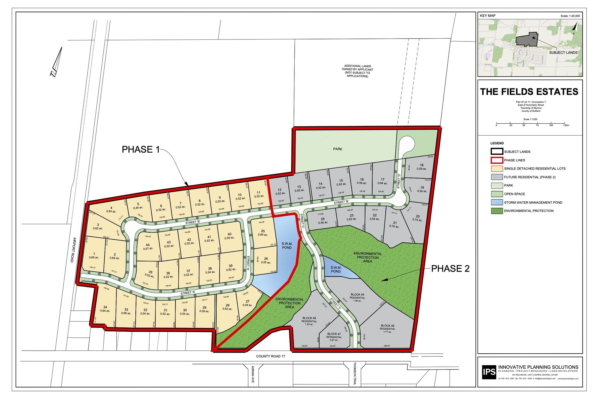
937045 Airport rd - Draft Plan Approved 72 Lots 53 Acres of Residential Land Offered at $12,862,824 USD in Mulmur, ON L9V 0L6



Executive Summary
Great opportunity for rare estate lot homes. Property to be developed with municipal water (allocated) and private sanitary services. Development can be phased. All reports including Geotechnical, Hydro geological, EIS & EAS, Servicing estimates, Bungalow semi built form concept plans and Draft Plan conditions available. Property is conveniently located in Village of Mansfield. 45 minutes from GTA, close to Alliston commercial amenities and recreational features of Blue Mountain/Collingwood area. Close to Mansfield Ski Club and Mansfield Outdoor Centre. VTB Available. Broker is shareholder in Vendor Corporation.
Property Facts
| Price | $12,862,824 USD | Property Subtype | Residential |
| Sale Type | Investment | Proposed Use | |
| No. Lots | 1 | Total Lot Size | 53.00 AC |
| Property Type | Land | ||
| Zoning | HR-9 HR-10 - Hamlet Residential | ||
| Price | $12,862,824 USD |
| Sale Type | Investment |
| No. Lots | 1 |
| Property Type | Land |
| Property Subtype | Residential |
| Proposed Use | |
| Total Lot Size | 53.00 AC |
| Zoning | HR-9 HR-10 - Hamlet Residential |
1 Lot Available
Lot
| Price | $12,862,824 USD | Lot Size | 53.00 AC |
| Price Per AC | $242,694.78 USD |
| Price | $12,862,824 USD |
| Price Per AC | $242,694.78 USD |
| Lot Size | 53.00 AC |
Rare Zoned and Draft Plan Approved Estate Lot Subdivision in Mansfield Ontario. 42 Estate Lot ( approx. 1/2 acre) and 28 bungalow semi lots geared to adult lifestyle for a total of 72 lots. Located in the beautiful rolling hills of Dufferin County.
1 1
1 of 5
Videos
Matterport 3D Exterior
Matterport 3D Tour
Photos
Street View
Street
Map
1 of 1
Presented by
Arlington Commercial Properties Inc
937045 Airport rd - Draft Plan Approved 72 Lots
Already a member? Log In
Hmm, there seems to have been an error sending your message. Please try again.
Thanks! Your message was sent.
