Log In/Sign Up
Your email has been sent.
9459 Alawhe Dr 14,079 SF Industrial Building Claremore, OK 74019 $1,890,000 ($134.24/SF)



EXECUTIVE SUMMARY
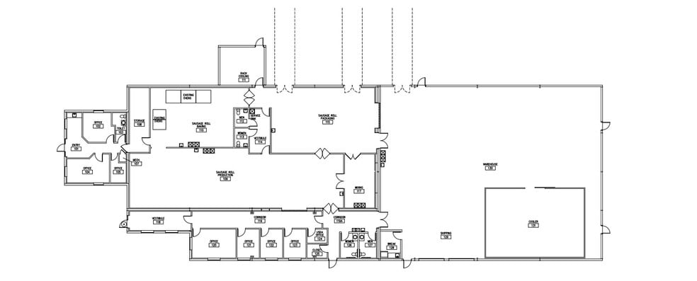
Existing food manufacturing facility. Originally built in 2005 and expanded in 2023. 14,079 square feet consisting of 5,304 square feet of fully conditioned production space with drop ceiling and frp covered walls, 6,300 square feet of open warehouse and 2,475 square feet of office. 6 offices and 1 conference room. 400 AMPS 220 and 400 AMPS 480 Electrical.
PROPERTY FACTS
1 1
PROPERTY TAXES
| Parcel Number | 660031428 | Improvements Assessment | $29,297 |
| Land Assessment | $7,305 | Total Assessment | $36,602 |
PROPERTY TAXES
Parcel Number
660031428
Land Assessment
$7,305
Improvements Assessment
$29,297
Total Assessment
$36,602
1 of 10
VIDEOS
MATTERPORT 3D EXTERIOR
MATTERPORT 3D TOUR
PHOTOS
STREET VIEW
STREET
MAP
1 of 1
Presented by
9459 Alawhe Dr
Already a member? Log In
Hmm, there seems to have been an error sending your message. Please try again.
Thanks! Your message was sent.
