Your email has been sent.
9475 Rue Meilleur 958 - 76,339 SF of Space Available in Montréal, QC H2N 2C5



Highlights
- Well maitiained property that is well situated.
- Signage opportunities.
- Parking spots available.
Features
All Available Spaces(9)
Display Rental Rate as
- Space
- Size
- Term
- Rental Rate
- Space Use
- Build-Out
- Available
- Lease rate does not include utilities, property expenses or building services
- 2 Loading Docks
- Space is in Excellent Condition
- 2nd Floor - 209
- 958 SF
- Negotiable
- Upon Request Upon Request Upon Request Upon Request
- Flex
- -
- Now
- 3rd Floor - 302
- 8,899 SF
- Negotiable
- Upon Request Upon Request Upon Request Upon Request
- Flex
- -
- Now
Great space for your business needs.
- Lease rate does not include utilities, property expenses or building services
- Central Air Conditioning
- Space is in Excellent Condition
- 3rd Floor - 306
- 6,353 SF
- Negotiable
- Upon Request Upon Request Upon Request Upon Request
- Flex
- -
- Now
- 4th Floor - 417
- 3,373 SF
- Negotiable
- Upon Request Upon Request Upon Request Upon Request
- Flex
- -
- Now
- 5th Floor - 514
- 7,417 SF
- Negotiable
- Upon Request Upon Request Upon Request Upon Request
- Industrial
- -
- Now
- 6th Floor - 600
- 5,117 SF
- Negotiable
- Upon Request Upon Request Upon Request Upon Request
- Industrial
- -
- Now
- 6th Floor - 603
- 4,708 SF
- Negotiable
- Upon Request Upon Request Upon Request Upon Request
- Industrial
- -
- Now
| Space | Size | Term | Rental Rate | Space Use | Build-Out | Available |
| 1st Floor - 101 | 26,803 SF | Negotiable | Upon Request Upon Request Upon Request Upon Request | Flex | Full Build-Out | Now |
| 2nd Floor - 209 | 958 SF | Negotiable | Upon Request Upon Request Upon Request Upon Request | Flex | - | Now |
| 3rd Floor - 302 | 8,899 SF | Negotiable | Upon Request Upon Request Upon Request Upon Request | Flex | - | Now |
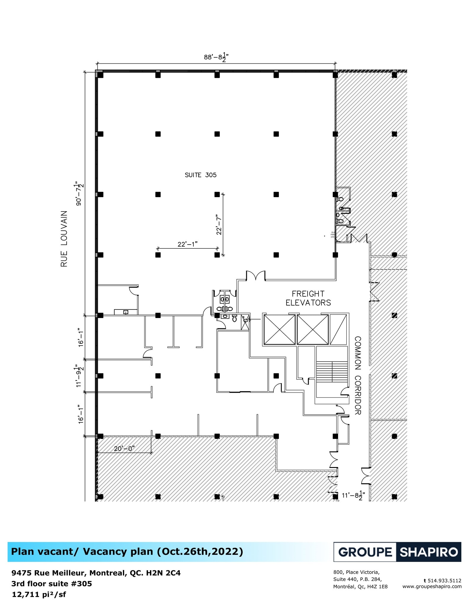
| 3rd Floor - 305 | 12,711 SF | 1-10 Years | Upon Request Upon Request Upon Request Upon Request | Industrial | Partial Build-Out | Now |
| 3rd Floor - 306 | 6,353 SF | Negotiable | Upon Request Upon Request Upon Request Upon Request | Flex | - | Now |
| 4th Floor - 417 | 3,373 SF | Negotiable | Upon Request Upon Request Upon Request Upon Request | Flex | - | Now |
| 5th Floor - 514 | 7,417 SF | Negotiable | Upon Request Upon Request Upon Request Upon Request | Industrial | - | Now |
| 6th Floor - 600 | 5,117 SF | Negotiable | Upon Request Upon Request Upon Request Upon Request | Industrial | - | Now |
| 6th Floor - 603 | 4,708 SF | Negotiable | Upon Request Upon Request Upon Request Upon Request | Industrial | - | Now |
1st Floor - 101
| Size |
| 26,803 SF |
| Term |
| Negotiable |
| Rental Rate |
| Upon Request Upon Request Upon Request Upon Request |
| Space Use |
| Flex |
| Build-Out |
| Full Build-Out |
| Available |
| Now |
2nd Floor - 209
| Size |
| 958 SF |
| Term |
| Negotiable |
| Rental Rate |
| Upon Request Upon Request Upon Request Upon Request |
| Space Use |
| Flex |
| Build-Out |
| - |
| Available |
| Now |
3rd Floor - 302
| Size |
| 8,899 SF |
| Term |
| Negotiable |
| Rental Rate |
| Upon Request Upon Request Upon Request Upon Request |
| Space Use |
| Flex |
| Build-Out |
| - |
| Available |
| Now |
3rd Floor - 305
| Size |
| 12,711 SF |
| Term |
| 1-10 Years |
| Rental Rate |
| Upon Request Upon Request Upon Request Upon Request |
| Space Use |
| Industrial |
| Build-Out |
| Partial Build-Out |
| Available |
| Now |
3rd Floor - 306
| Size |
| 6,353 SF |
| Term |
| Negotiable |
| Rental Rate |
| Upon Request Upon Request Upon Request Upon Request |
| Space Use |
| Flex |
| Build-Out |
| - |
| Available |
| Now |
4th Floor - 417
| Size |
| 3,373 SF |
| Term |
| Negotiable |
| Rental Rate |
| Upon Request Upon Request Upon Request Upon Request |
| Space Use |
| Flex |
| Build-Out |
| - |
| Available |
| Now |
5th Floor - 514
| Size |
| 7,417 SF |
| Term |
| Negotiable |
| Rental Rate |
| Upon Request Upon Request Upon Request Upon Request |
| Space Use |
| Industrial |
| Build-Out |
| - |
| Available |
| Now |
6th Floor - 600
| Size |
| 5,117 SF |
| Term |
| Negotiable |
| Rental Rate |
| Upon Request Upon Request Upon Request Upon Request |
| Space Use |
| Industrial |
| Build-Out |
| - |
| Available |
| Now |
6th Floor - 603
| Size |
| 4,708 SF |
| Term |
| Negotiable |
| Rental Rate |
| Upon Request Upon Request Upon Request Upon Request |
| Space Use |
| Industrial |
| Build-Out |
| - |
| Available |
| Now |
1st Floor - 101
| Size | 26,803 SF |
| Term | Negotiable |
| Rental Rate | Upon Request |
| Space Use | Flex |
| Build-Out | Full Build-Out |
| Available | Now |
- Lease rate does not include utilities, property expenses or building services
- Space is in Excellent Condition
- 2 Loading Docks
3rd Floor - 305
| Size | 12,711 SF |
| Term | 1-10 Years |
| Rental Rate | Upon Request |
| Space Use | Industrial |
| Build-Out | Partial Build-Out |
| Available | Now |
Great space for your business needs.
- Lease rate does not include utilities, property expenses or building services
- Space is in Excellent Condition
- Central Air Conditioning
Property Overview
- Multipurpose building, which can match your search for office space, industrial space and even retail space - Located in the heart of Montreal's garment district, near Highways 40 and 15 - Within walking distance from Chabanel Train Station, Sauvé Metro Station and Buses 135 & 146 - Several recent renovations have been completed - Large controlled indoor and outdoor parking - Stunning modern loft-style spaces - Adjacent to Marché Central, Costco, SAQ and Guzzo Cinema - 5 loading docks and two freight elevators
Property Facts
Presented by
9475 Rue Meilleur
Hmm, there seems to have been an error sending your message. Please try again.
Thanks! Your message was sent.





