Log In/Sign Up
Your email has been sent.
Features
Clear Height
30’
Drive In Bays
10
Exterior Dock Doors
4
All Available Space(1)
Display Rental Rate as
- Space
- Size
- Term
- Rental Rate
- Space Use
- Build-Out
- Available
- Lease rate does not include utilities, property expenses or building services
- 4 Loading Docks
- 10 Drive Ins
| Space | Size | Term | Rental Rate | Space Use | Build-Out | Available |
| Ground | 32,678 SF | Negotiable | $5.50 /SF/YR $0.46 /SF/MO $179,729 /YR $14,977 /MO | Flex | - | Now |
Ground
| Size |
| 32,678 SF |
| Term |
| Negotiable |
| Rental Rate |
| $5.50 /SF/YR $0.46 /SF/MO $179,729 /YR $14,977 /MO |
| Space Use |
| Flex |
| Build-Out |
| - |
| Available |
| Now |
1 of 1
Videos
Matterport 3D Exterior
Matterport 3D Tour
Photos
Street View
Street
Map
Ground
| Size | 32,678 SF |
| Term | Negotiable |
| Rental Rate | $5.50 /SF/YR |
| Space Use | Flex |
| Build-Out | - |
| Available | Now |
- Lease rate does not include utilities, property expenses or building services
- 10 Drive Ins
- 4 Loading Docks
Property Overview
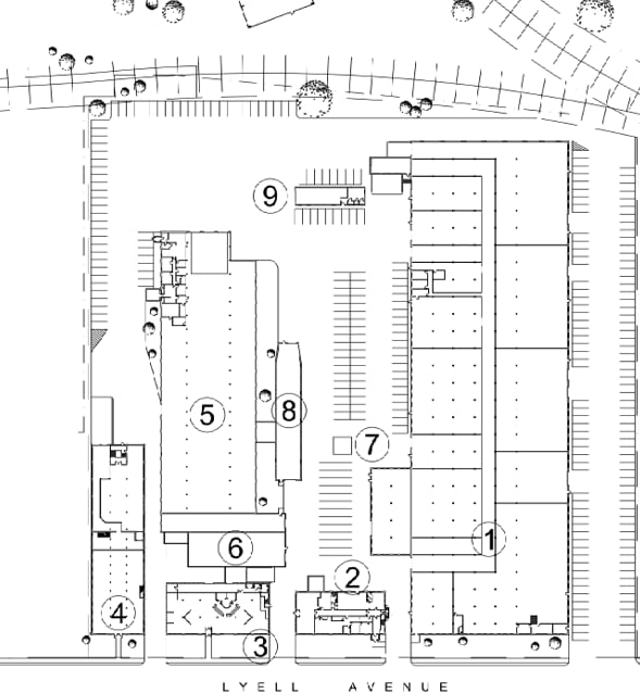
961 Lyell Ave in Rochester offers 32,678 SF of flex space on 9.93 acres, ideal for light industrial or distribution use. The property features 14'-30’ clear height, 10 drive-ins, and 4 exterior docks. Located in the Lyell Business Center, it provides excellent access to I-390, I-490, and Route 31, just minutes from Downtown Rochester and the airport—perfect for businesses seeking visibility and convenience.
Property Facts
Building Size
270,193 SF
Lot Size
9.93 AC
Year Built
1900
Zoning
M1
Fairly walkable
50/100
Exceptionally drivable
100/100
Some public transit
50/100
Fairly bikeable
50/100
1 of 23
Videos
Matterport 3D Exterior
Matterport 3D Tour
Photos
Street View
Street
Map
Presented by
Lyell Business Center | 961-1029 Lyell Ave
Already a member? Log In
Hmm, there seems to have been an error sending your message. Please try again.
Thanks! Your message was sent.






