Your email has been sent.
The Park - Huntersville 9725 Julian Clark Ave 1.81 Acres of Commercial Land for Lease in Huntersville, NC 28078



Highlights
- Zoning: Suitable for Medical Outpatient development
- Ownership Position: Owner seeks to partner with a developer or tenant(s) for a build-to-suit project
- Accessibility: Immediate access to I-77 via Gilead Rd interchange
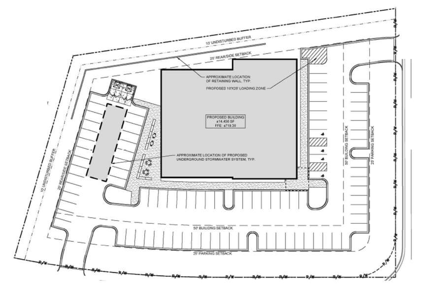
- Development Concept: ~14,000 SF Medical Outpatient Building (MOB)
- Proximity to Healthcare: Less than 1 mile from Novant Health Huntersville Medical Center
- Amenities: Surrounded by retail, dining, and multiple hotels for out-of-town clients, patients, and visiting staff
LOT Available
Display Rental Rate as
| Rental Rate |
|
Lot Size | 1.81 AC |
| Lease Term | 5 - 10 Years |
| Rental Rate | |
| Lease Term | 5 - 10 Years |
| Lot Size | 1.81 AC |
The owner seeks to partner with a developer or tenant(s) through a build-to-suit arrangement. The site provides an opportunity to deliver a modern medical outpatient facility in a well-established medical corridor.
Property Overview
This 1.81-acre (±78,844 SF) corner lot in The Park – Huntersville offers a premier opportunity for a ~14,000 SF medical outpatient building (MOB). The landowner is seeking to partner with a developer or tenant(s) on a build-to-suit project, making it an attractive option for both owner-users and investors. Its location is less than one mile from Novant Health Huntersville Medical Center with direct access to I-77 via Gilead Rd, ensuring strong connectivity for patients and providers across Charlotte, Lake Norman, and the greater region. Set within one of North Mecklenburg’s top business parks, the property benefits from a professional environment surrounded by corporate offices, healthcare providers, restaurants, retail, and multiple hotels that serve patients and visitors. With its high-visibility corner positioning, excellent accessibility, and growing healthcare demand in the Huntersville/Lake Norman corridor, this site represents a desirable MOB investment opportunity.
Property Facts
Presented by
The Park - Huntersville | 9725 Julian Clark Ave
Hmm, there seems to have been an error sending your message. Please try again.
Thanks! Your message was sent.
