Log In/Sign Up
Your email has been sent.
Investment Highlights
- Adjacent to Swamp Rabbit Trail and existing parking and access infractructure. Property Qualifies for South Carolina Textile Mill Tax Credits
Executive Summary
Site qualifies for South Carolina Textile Mill Tax Credits
Property Facts
| Price | $850,000 | Property Subtype | Commercial |
| Sale Type | Investment or Owner User | Proposed Use | Industrial |
| No. Lots | 1 | Total Lot Size | 0.50 AC |
| Property Type | Land | ||
| Zoning | I-1 & C-2 - I-1. Property is part of a Mixed Used Development known as Millstead, including Methodical Roastery, Nicholas James Cabinetry, and Grace Church. | ||
| Price | $850,000 |
| Sale Type | Investment or Owner User |
| No. Lots | 1 |
| Property Type | Land |
| Property Subtype | Commercial |
| Proposed Use | Industrial |
| Total Lot Size | 0.50 AC |
| Zoning | I-1 & C-2 - I-1. Property is part of a Mixed Used Development known as Millstead, including Methodical Roastery, Nicholas James Cabinetry, and Grace Church. |
1 Lot Available
Lot 1
| Price | $850,000 | Lot Size | 0.50 AC |
| Price Per AC | $1,700,000.00 |
| Price | $850,000 |
| Price Per AC | $1,700,000.00 |
| Lot Size | 0.50 AC |
.85 acres; padded and prepped lot with utilities available to the site; lot includes access to adjoining parking and access
Description
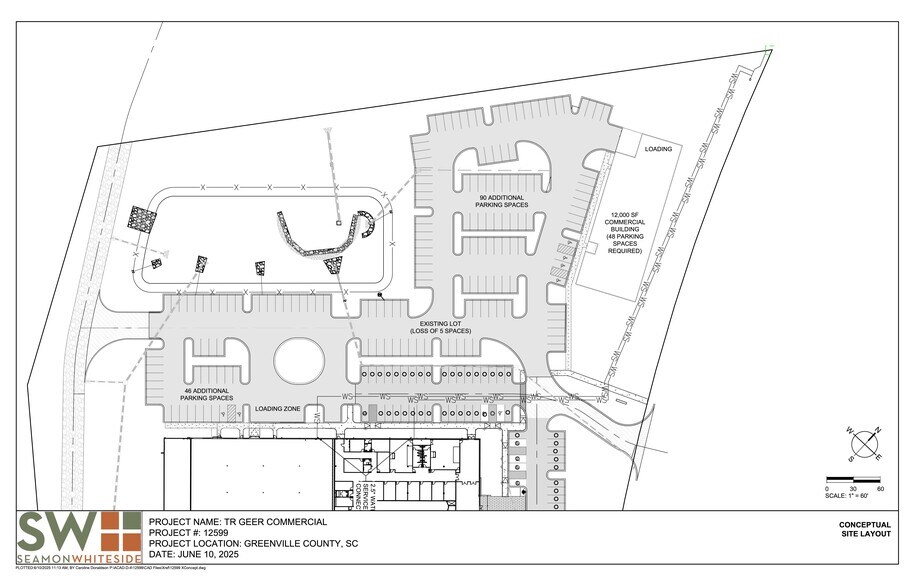
Parcel of land for sale. A site plan is attached in the listing. The conceptual plan attached shows how the property can be developed into 12,000 SF of commercial space. Easy access to parking: currently an existing lot of spaces plus more to be developed which will not require any action on buyer's part. Property is equipped with access to utilities: water, sewer, gas, electric. Site Qualifies for South Carolina Textile Mill Tax Credits.
1 1
Somewhat walkable
20/100
Exceptionally drivable
90/100
Somewhat bikeable
30/100
Property Taxes
| Parcel Number | 0506.01-01-090.03 | Improvements Assessment | $12,570 |
| Land Assessment | $27,280 | Total Assessment | $39,850 |
Property Taxes
Parcel Number
0506.01-01-090.03
Land Assessment
$27,280
Improvements Assessment
$12,570
Total Assessment
$39,850
1 of 2
Videos
Matterport 3D Exterior
Matterport 3D Tour
Photos
Street View
Street
Map
1 of 1
Presented by
999 Geer Hwy
Already a member? Log In
Hmm, there seems to have been an error sending your message. Please try again.
Thanks! Your message was sent.

