Log In/Sign Up
Your email has been sent.
Investment Highlights
- High exposure to 156 Street
- 26,460 SF total building area
- Fully paved site
- Fully fenced site
Executive Summary
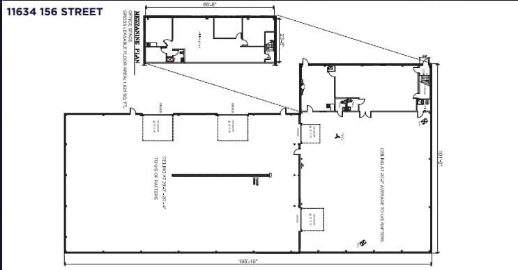
The AWG Industrial Facility, located at 11634 and 11638 156 Street in Edmonton, Alberta, is now offered for sale at $5,200,000. This high-exposure, fully paved and fenced 1.5-acre site features two industrial buildings totaling 26,460 SF. The west building at 11634, constructed between 1990 and 2004, offers 18,160 SF of gross area with a clear ceiling height of approximately 20 feet, two grade-level doors, and a large, improved office space with mezzanine. The east building at 11638, built in 1989, features 8,300 SF of ground area, a clear span shop, drive-thru loading with eight grade-level doors, and ceiling heights of approximately 15 feet. Both buildings have 400-amp power and are heated with radiant tube and overhead gas-fired units. Zoned IM (Medium Industrial), the property offers excellent operational efficiency, office and shop lunchrooms, and second-floor office space. This offering presents an outstanding opportunity for owner-users or investors seeking a well-located industrial asset in Edmonton's thriving west-end industrial node. 2024 property taxes are $97,053.41.
Property Facts
| Price | $3,638,342 USD | Number of Properties | 2 |
| Price / SF | $137.50 USD / SF | Individually For Sale | 0 |
| Sale Condition | Bulk/Portfolio Sale | Total Building Size | 26,460 SF |
| Sale Type | Investment or Owner User | Total Land Area | 3.05 AC |
| Status | Active |
| Price | $3,638,342 USD |
| Price / SF | $137.50 USD / SF |
| Sale Condition | Bulk/Portfolio Sale |
| Sale Type | Investment or Owner User |
| Status | Active |
| Number of Properties | 2 |
| Individually For Sale | 0 |
| Total Building Size | 26,460 SF |
| Total Land Area | 3.05 AC |
Properties
| Property Name / Address | Property Type | Size | Year Built | Individual Price |
|---|---|---|---|---|
| 11634 156 St NW, Edmonton, AB T5M 3T5 | Industrial | 18,160 SF | 1990 | - |
| 11638 156th St NW, Edmonton, AB T5V 3T5 | Industrial | 8,300 SF | 1989 | - |
1 of 7
Videos
Matterport 3D Exterior
Matterport 3D Tour
Photos
Street View
Street
Map
Presented by
AWG Industrial Facility
Already a member? Log In
Hmm, there seems to have been an error sending your message. Please try again.
Thanks! Your message was sent.




