Your email has been sent.
Avenue 168
Woodville, CA 93257
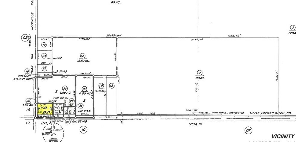
1.06 acres N/E Corner Avenue 168 & Road 168 · Land For Sale
·
1.06 AC


Investment Highlights
- 1.06-acre corner parcel at the highly visible northeast corner of Avenue 168 & Road 168
- Excellent frontage and exposure on two major roads with strong visibility
- Flexible development or hold opportunity for developers, investors, or owner-users
- Zoned C-2-MU (General Commercial with Mixed-Use Overlay) allowing for retail, service, mixed-use, or investment uses
- Proximity to surrounding residential neighborhoods, supporting local-serving commercial demand
- Strategically located in a growing Central Valley market with long-term upside
Executive Summary
Buyer to verify zoning, permitted uses, and utility access with Tulare County. Property is zoned C-2-MU, allowing for a variety of commercial and mixed-use development opportunities. Corner lot with great visibility and access. No structures currently on site. Drive by and show—no appointment needed. Please contact the listing agent with any questions.
Property Facts
| Sale Type | Investment or Owner User | Total Lot Size | 1.06 AC |
| No. Lots | 1 | Cross Streets | Road 168 |
| Property Type | Land | Opportunity Zone |
Yes
|
| Property Subtype | Residential | ||
| Zoning | C-U-MU - General Commercial with Mixed Overlay. Buyer and/or Buyer's agent to verify zoning, permitted uses and utility access with Tulare County. | ||
| Sale Type | Investment or Owner User |
| No. Lots | 1 |
| Property Type | Land |
| Property Subtype | Residential |
| Total Lot Size | 1.06 AC |
| Cross Streets | Road 168 |
| Opportunity Zone |
Yes |
| Zoning | C-U-MU - General Commercial with Mixed Overlay. Buyer and/or Buyer's agent to verify zoning, permitted uses and utility access with Tulare County. |
1 Lot Available
Lot
| Price | $215,000 | Lot Size | 1.06 AC |
| Price Per AC | $202,830.19 |
| Price | $215,000 |
| Price Per AC | $202,830.19 |
| Lot Size | 1.06 AC |
1.06-acre corner parcel located at the highly visible northeast corner of Avenue 168 & Road 168. Zoned C-2-MU (General Commercial with Mixed-Use overlay).
Description
Don't miss this 1.06-acre corner parcel located at the highly visible northeast corner of Avenue 168 & Road 168. Zoned C-2-MU (General Commercial with Mixed-Use overlay), this property offers incredible potential for retail, service businesses, mixed-use development, or investment hold. With excellent road frontage on both avenues and proximity to residential neighborhoods, this lot is ideally positioned for future growth. Whether you're a developer, investor, or business owner looking to build in a growing Central Valley community, this is a strategic location to bring your vision to life.
