Log In/Sign Up
Your email has been sent.
La Salut - Lloreda 0.02 Acres of Residential Land Offered at $253,408 in Badalona, Barcelona 08914



Some information has been automatically translated.
Investment Highlights
- Urban residential land between party walls.
- Central location.
- Possibility of building 4 homes and a commercial space or 5 homes.
- Good communications.
Executive Summary
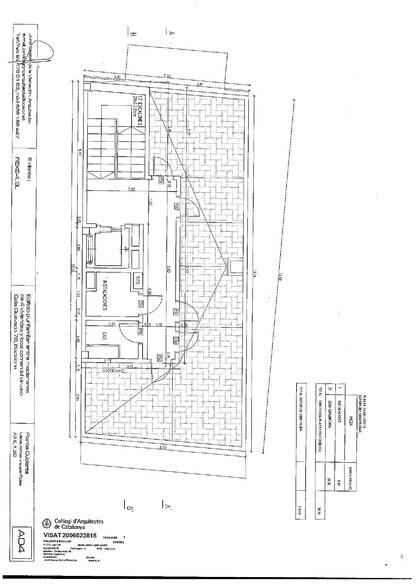
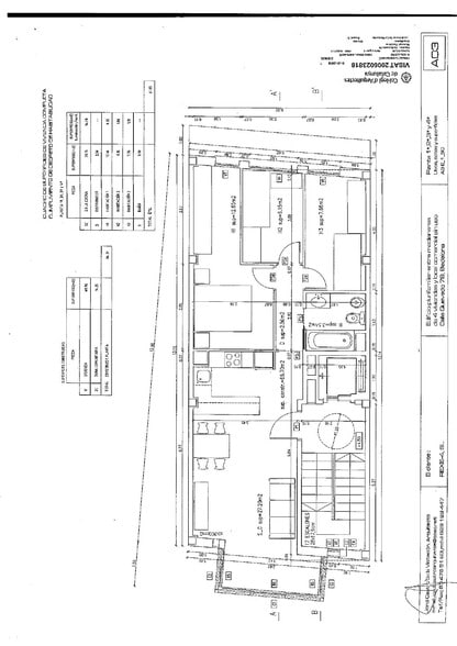
Land located in front of the Salut market in Badalona, between party walls, ready to start construction.
Four residential units plus a commercial space can be built. A fifth unit could be constructed on the ground floor by adapting it to current regulations.
The apartments are approximately 70 m2 each.
Basic project, executive project, geotechnical study, and solar energy project completed in 2007 are provided, so they will need to be reviewed according to current regulations.
Four residential units plus a commercial space can be built. A fifth unit could be constructed on the ground floor by adapting it to current regulations.
The apartments are approximately 70 m2 each.
Basic project, executive project, geotechnical study, and solar energy project completed in 2007 are provided, so they will need to be reviewed according to current regulations.
Property Facts
| Price | $253,408 | Property Type | Land |
| Sale Type | Investment | Property Subtype | Residential |
| No. Lots | 1 | Total Lot Size | 0.02 AC |
| Price | $253,408 |
| Sale Type | Investment |
| No. Lots | 1 |
| Property Type | Land |
| Property Subtype | Residential |
| Total Lot Size | 0.02 AC |
1 Lot Available
Lot
| Price | $253,408 | Lot Size | 0.02 AC |
| Price Per AC | $12,063,586.13 |
| Price | $253,408 |
| Price Per AC | $12,063,586.13 |
| Lot Size | 0.02 AC |
Rectangular urban land located between party walls.
Description
Urban land with residential use, located in a central and established area with all types of services.
1 1
1 of 5
Videos
Matterport 3D Exterior
Matterport 3D Tour
Photos
Street View
Street
Map
1 of 1
Presented by
La Salut - Lloreda
Already a member? Log In
Hmm, there seems to have been an error sending your message. Please try again.
Thanks! Your message was sent.
