Your email has been sent.
Ballyearl Business Park Ballynure Rd 37,000 SF of Industrial Space Available in Newtownabbey BT36 5SW

Highlights
- Strong transport links to motorways M2 and M1
- Close by the town centre
- New build facility
All Available Space(1)
Display Rental Rate as
- Space
- Size
- Term
- Rental Rate
- Space Use
- Build-Out
- Available
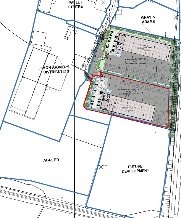
Unit 2 is a proposed new build warehouse that will comprise of 37,000 sq ft. The proposed specification includes mezzanine office space, roller shutter doors & pedestrian doors, electrical package, to include heating, windows, solid roof with 120mm PIR sandwich panels and a steel Frame.
- Use Class: B2
- Mezzanine office space
- Roller shutter doors
- Pedestrian doors
| Space | Size | Term | Rental Rate | Space Use | Build-Out | Available |
| Ground | 37,000 SF | Negotiable | Upon Request Upon Request Upon Request Upon Request | Industrial | - | Now |
Ground
| Size |
| 37,000 SF |
| Term |
| Negotiable |
| Rental Rate |
| Upon Request Upon Request Upon Request Upon Request |
| Space Use |
| Industrial |
| Build-Out |
| - |
| Available |
| Now |
Ground
| Size | 37,000 SF |
| Term | Negotiable |
| Rental Rate | Upon Request |
| Space Use | Industrial |
| Build-Out | - |
| Available | Now |
Unit 2 is a proposed new build warehouse that will comprise of 37,000 sq ft. The proposed specification includes mezzanine office space, roller shutter doors & pedestrian doors, electrical package, to include heating, windows, solid roof with 120mm PIR sandwich panels and a steel Frame.
- Use Class: B2
- Roller shutter doors
- Mezzanine office space
- Pedestrian doors
Property Overview
Proposed erection of Unit 2 distribution warehouse buildings with ancillary facilities, including parking and landscaping. Access from established entrance onto Doagh Road at Houstons Corner. This project also includes associated infrastructure works and access roads.
Manufacturing Facility Facts
Presented by
Ballyearl Business Park | Ballynure Rd
Hmm, there seems to have been an error sending your message. Please try again.
Thanks! Your message was sent.



