Share This Listing

Message

954 characters remaining

Hmm, there seems to have been an error sending your message. Please try again.

Your email has been sent.

Still interested?

Contact the broker for more information about this property

Some information has been automatically translated.

Description

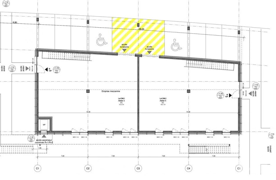
Bordeaux Commercial Real Estate - "La Goutte d'Eau" Program in Bruges The "La Goutte d'Eau" program, located in Bruges at the foot of exit no. 6, is part of the urban redevelopment project for the Terrefort neighborhood. Close to the city center, shops, and services, this program offers activity spaces and offices available for rent or purchase. This modern and functional complex provides a high-quality professional environment in a rapidly developing area. Building with three floors classified under labor code Offices delivered finished, open-plan Breeam Very Good certification, E+ C- approach Solar panels on the roof Shared garden and green spaces over an area of 4,000 m2 Green roofs and terraces Floors of approximately 620 m2 from the ground floor to the second floor (Building BS) Acoustic ceiling tiles Reversible air conditioning (VRV type) in false ceiling - Dual-flow ventilation Building management system (BMS) 1 elevator 500 x 500 carpet tiles for offices Ceiling height of 2.7 meters on standard floors Facade grid of 1.2 meters - Load-bearing concrete facade and aluminum joinery 23 parking spaces, with the possibility of more - Ratio: 1 space / 50 m2 Charging stations for electric vehicles and bikes 3 parking spaces for lot CN02: 36,000 euros excluding tax Ground floor area: 327.5 m² Land area: 0 468 m² divisible from 231 m² Location/Transport: Ring road exit 6 Bus Bruges Station (29-72) SNCF Bruges Tramway Bruges Station (Line C)

Property Facts

Unit Size 758 - 1,796 SF
No. Units 4
Property Type Flex

4 Units Available

Unit Size 758 SF
Condo Use Flex
Sale Type Owner User

Unit Size 759 SF
Condo Use Flex
Sale Type Owner User

Unit Size 1,728 SF
Condo Use Flex
Sale Type Owner User

Unit Size 1,796 SF
Condo Use Flex
Sale Type Owner User
  • Listing ID: 36996545

  • Date on Market: 9/19/2025

  • Last Updated:

  • Address: 33520 Bruges

Link copied
Your LoopNet account has been created!

Please Share Your Feedback

We welcome any feedback on how we can improve LoopNet to better serve your needs.
X
{{ getErrorText(feedbackForm.starRating, "rating") }}
255 character limit ({{ remainingChars() }} charactercharacters remainingover)
{{ getErrorText(feedbackForm.msg, "rating") }}
{{ getErrorText(feedbackForm.fname, "first name") }}
{{ getErrorText(feedbackForm.lname, "last name") }}
{{ getErrorText(feedbackForm.phone, "phone number") }}
{{ getErrorText(feedbackForm.phonex, "phone extension") }}
{{ getErrorText(feedbackForm.email, "email address") }}