This feature is unavailable at the moment.
We apologize, but the feature you are trying to access is currently unavailable. We are aware of this issue and our team is working hard to resolve the matter.
Please check back in a few minutes. We apologize for the inconvenience.
- LoopNet Team
Central Ave
Grays RM20 3WZ
Proxima III · Property For Lease

HIGHLIGHTS
- Served by excellant transport links
- Prime industrial location
- Close to amenities
PROPERTY OVERVIEW
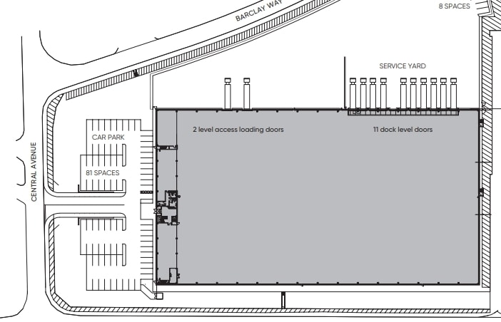
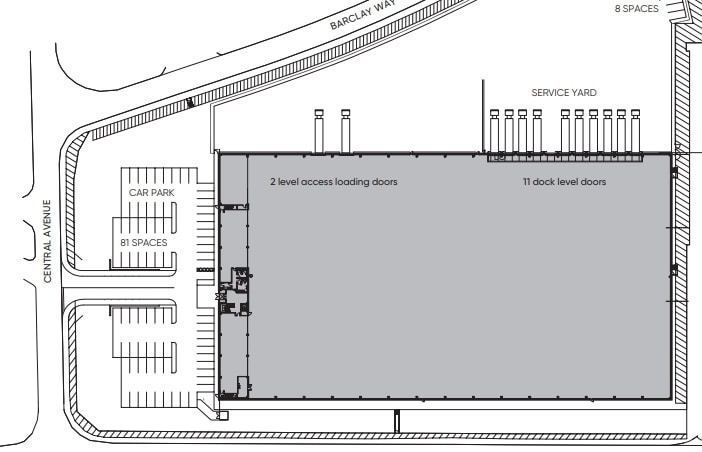
The property is located at the junction of Weston Avenue and Central Avenue in the established warehouse/industrial area of West Thurrock. The site benefits from excellent access to the M25 at junctions 30 and 31 with Junction 30 providing direct access to the Docklands and the City via the A13. The building is situated nearby to the amenities of Lakeside retail park and shopping centre.
PROPERTY FACTS
| Property Type | Industrial | Rentable Building Area | 97,344 SF |
| Property Subtype | Warehouse | Year Built | 2006 |
| Property Type | Industrial |
| Property Subtype | Warehouse |
| Rentable Building Area | 97,344 SF |
| Year Built | 2006 |
FEATURES AND AMENITIES
- Fenced Lot
- Mezzanine
- Raised Floor
- Security System
- Skylights
- Yard
- Energy Performance Rating - B
- Recessed Lighting
- Fluorescent Lighting
UTILITIES
- Lighting
- Heating
ATTACHMENTS
| Proxima111 West Thurrock |
Listing ID: 22147673
Date on Market: 2/3/2021
Last Updated:
Address: Central Ave, Grays RM20 3WZ
The Industrial Property at Central Ave, Grays, RM20 3WZ is no longer being advertised on LoopNet.com. Contact the broker for information on availability.
INDUSTRIAL PROPERTIES IN NEARBY NEIGHBORHOODS
- Greenwich Commercial Real Estate
- Thurrock Commercial Real Estate
- Brentwood Commercial Real Estate
- Barking & Dagenham Commercial Real Estate
- Creekmouth Commercial Real Estate
- North Woolwich Commercial Real Estate
- Gravesham Commercial Real Estate
- North End Bexley Commercial Real Estate
- Thamesmead Commercial Real Estate
- Blackheath Park Commercial Real Estate
- Beckton Commercial Real Estate
- Gidea Park Commercial Real Estate
NEARBY LISTINGS
- 4A Shield Rd, Dartford
- Clipper Blvd, Dartford
- Arterial Rd, Purfleet-On-Thames
- 4 Roman Way, Crayford
- veka unit 3, Swanscombe
- Green Street Green Rd, Dartford
- Kings Walk, Grays
- 17 The Brent, Dartford
- Manor Way, Swanscombe
- 140-146 Dock Rd, Tilbury
- Green Street Green, Dartford
- Manor Way, Swanscombe
- Weston Ave, Grays
- Church Manorway, Erith
