Your email has been sent.
77240 Cesson 1,270 SF Flex Condo Unit Offered at $250,593



Some information has been automatically translated.
Description
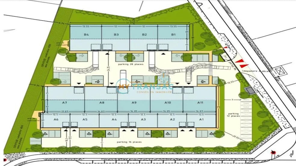
My Transac is offering NEW industrial/warehouse units FOR SALE, consisting of 15 units in 2 buildings, with areas starting from 117 m², 333 m², and 442 m². Possibility of combining multiple units. Warehouse/Activity specifications: - Clear height: 7.50 m - Sectional door: 2.7 m x 3.5 m - Electricity: standard or higher-capacity tariff depending on the unit - Concrete slab with quartz finish (load capacity 3T/m²) - Heavy-duty roadway for maneuvering and circulation areas - Secured, fully enclosed site - Access via a motorized sliding gate with timer control - Intercom system and gate control operable by phone from each unit - BiodiverCity label - BREEAM certification Mezzanine specifications: - Access via concrete staircase with metal handrail and tiled steps - Concrete floor designed for 250 kg/m² live load and 100 kg/m² permanent load - Electric heating via radiant electric convectors - Floor covering: 50x50 cm carpet tiles - Suspended ceiling with 600x600 mm mineral tiles on metal grid - Lighting by 600x600 mm LED fixtures integrated into the suspended ceiling, average 300 lux Access: A5 highway, exit 12 Cesson – Vert Saint Denis (6 min) Francilienne N104 via A5b (10 min) RER D “Cesson Station” (15 min) Bus lines 31 and 36, Montdauphin and Fontaine Ronde stops (5 min) Financial terms: Sale price: 1,800 euros before tax per m² depending on the unit Leasing/marketing fee: 5% before tax of the net seller price
Property Facts
| Price | $250,593 | Property Type | Flex (Condo) |
| Unit Size | 1,270 SF | Sale Type | Owner User |
| No. Units | 1 |
| Price | $250,593 |
| Unit Size | 1,270 SF |
| No. Units | 1 |
| Property Type | Flex (Condo) |
| Sale Type | Owner User |
1 Unit Available
| Unit Size | 1,270 SF | Condo Use | Flex |
| Price | $250,593 | Sale Type | Owner User |
| Price Per SF | $197.32 |
| Unit Size | 1,270 SF |
| Price | $250,593 |
| Price Per SF | $197.32 |
| Condo Use | Flex |
| Sale Type | Owner User |
Presented by
"77240 Cesson"
Hmm, there seems to have been an error sending your message. Please try again.
Thanks! Your message was sent.
