Log In/Sign Up
Your email has been sent.
31280 Drémil-Lafage 0.31 Acres of Commercial Land Offered at $174,429


Some information has been automatically translated.
EXECUTIVE SUMMARY
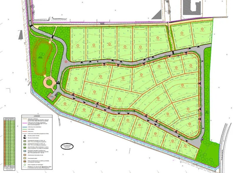
FOR SALE! Plots ranging from approximately 1269m² to 2570m² in DREMIL LAFAGE
Access to A68 in about 18 minutes and A61 in about 20 minutes!
**Description:**
Located in Dremil-Lafage, within a business zone, we are offering several industrial plots for sale ranging from approximately 1269m² to 2570m², with the possibility of construction under VEFA (Sale in Future State of Completion). Contact us for details on conditions.
- Permit filed and cleared of all third-party appeals as of 08/15/2023
- Zoning: Activity spaces, Offices (no factories or logistics warehouses)
- Maximum building height: 12 meters
- Minimum boundary construction: 4 meters
- Green space requirement: 25% of the land unit
- Maximum floor area: 60% of the land unit
Other plots are available on this site! Contact us for more information.
**Net sale price starting at €150,000 excluding VAT**
Agency fees are covered by the seller, with no agency fees charged to the buyer for the purchase of plots.
**Available Immediately!**
A must-see!
**REF T-19197**
To schedule a visit, contact Cédric GONZALEZ at 06 84 97 70 62 or 05 61 61 77 77
**VUDENHAUT IMMO** - Agencies TOULOUSE SOUTH & SOUTHEAST
[www.vdh-immo.com](http://www.vdh-immo.com)
Access to A68 in about 18 minutes and A61 in about 20 minutes!
**Description:**
Located in Dremil-Lafage, within a business zone, we are offering several industrial plots for sale ranging from approximately 1269m² to 2570m², with the possibility of construction under VEFA (Sale in Future State of Completion). Contact us for details on conditions.
- Permit filed and cleared of all third-party appeals as of 08/15/2023
- Zoning: Activity spaces, Offices (no factories or logistics warehouses)
- Maximum building height: 12 meters
- Minimum boundary construction: 4 meters
- Green space requirement: 25% of the land unit
- Maximum floor area: 60% of the land unit
Other plots are available on this site! Contact us for more information.
**Net sale price starting at €150,000 excluding VAT**
Agency fees are covered by the seller, with no agency fees charged to the buyer for the purchase of plots.
**Available Immediately!**
A must-see!
**REF T-19197**
To schedule a visit, contact Cédric GONZALEZ at 06 84 97 70 62 or 05 61 61 77 77
**VUDENHAUT IMMO** - Agencies TOULOUSE SOUTH & SOUTHEAST
[www.vdh-immo.com](http://www.vdh-immo.com)
PROPERTY FACTS
| Price | $174,429 | Property Type | Land |
| Sale Type | Owner User | Property Subtype | Commercial |
| No. Lots | 1 | Total Lot Size | 0.31 AC |
| Price | $174,429 |
| Sale Type | Owner User |
| No. Lots | 1 |
| Property Type | Land |
| Property Subtype | Commercial |
| Total Lot Size | 0.31 AC |
1 LOT AVAILABLE
Lot
| Price | $174,429 | Lot Size | 0.31 AC |
| Price Per AC | $556,272.65 |
| Price | $174,429 |
| Price Per AC | $556,272.65 |
| Lot Size | 0.31 AC |
1 1
1 of 3
VIDEOS
MATTERPORT 3D EXTERIOR
MATTERPORT 3D TOUR
PHOTOS
STREET VIEW
STREET
MAP
1 of 1
Presented by
"31280 Drémil-Lafage"
Already a member? Log In
Hmm, there seems to have been an error sending your message. Please try again.
Thanks! Your message was sent.
