Your email has been sent.
14123 Fleury-sur-Orne 957 - 3,250 SF Office Condo Units Offered at $264,199 - $833,695 Per Unit



Some information has been automatically translated.
DESCRIPTION
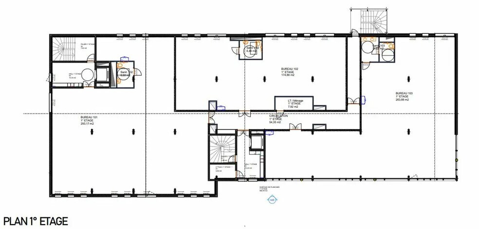
Beautiful project for a building under construction (VEFA), offering a total surface area of approximately 4,521 sq. m, including retail spaces on the ground floor and office floors above. Several office spaces are still available, as follows: - 1st floor: approximately 302 sq. m. - 2nd floor: the entire level of approximately 860 sq. m, with the possibility of dividing into four units of approximately 89 sq. m, 193 sq. m, 222 sq. m, and 302 sq. m. - 3rd floor: the entire level of approximately 860 sq. m, with the possibility of dividing into four units of approximately 89 sq. m, 193 sq. m, 222 sq. m, and 302 sq. m. - 4th floor: 89 sq. m, 93 sq. m, and 222 sq. m. - 5th floor: 177 sq. m. The 2nd and 3rd floors can be combined. Construction work is set to begin in week 17. * The spaces will be delivered as a concrete shell with utilities ready for connection. * Ground floor classified as ERP 5, type W. * ADA-compliant access. * Elevator included. Prices are listed excluding VAT and agency fees. Find all our listings on our website LEM CBRE.
PROPERTY FACTS
| Price | $264,199 - $833,695 | No. Units | 5 |
| Unit Size | 957 - 3,250 SF | Property Type | Office |
| Price | $264,199 - $833,695 |
| Unit Size | 957 - 3,250 SF |
| No. Units | 5 |
| Property Type | Office |
5 UNITS AVAILABLE
| Unit Size | 957 SF | Condo Use | Office |
| Price | $264,199 | Sale Type | Owner User |
| Price Per SF | $276.07 |
| Unit Size | 957 SF |
| Price | $264,199 |
| Price Per SF | $276.07 |
| Condo Use | Office |
| Sale Type | Owner User |
| Unit Size | 1,001 SF | Condo Use | Office |
| Price | $270,070 | Sale Type | Owner User |
| Price Per SF | $269.80 |
| Unit Size | 1,001 SF |
| Price | $270,070 |
| Price Per SF | $269.80 |
| Condo Use | Office |
| Sale Type | Owner User |
| Unit Size | 1,905 SF | Condo Use | Office |
| Price | $528,398 | Sale Type | Owner User |
| Price Per SF | $277.37 |
| Unit Size | 1,905 SF |
| Price | $528,398 |
| Price Per SF | $277.37 |
| Condo Use | Office |
| Sale Type | Owner User |
| Unit Size | 2,389 SF | Condo Use | Office |
| Price | $622,336 | Sale Type | Owner User |
| Price Per SF | $260.50 |
| Unit Size | 2,389 SF |
| Price | $622,336 |
| Price Per SF | $260.50 |
| Condo Use | Office |
| Sale Type | Owner User |
| Unit Size | 3,250 SF | Condo Use | Office |
| Price | $833,695 | Sale Type | Owner User |
| Price Per SF | $256.52 |
| Unit Size | 3,250 SF |
| Price | $833,695 |
| Price Per SF | $256.52 |
| Condo Use | Office |
| Sale Type | Owner User |
Presented by
"14123 Fleury-sur-Orne"
Hmm, there seems to have been an error sending your message. Please try again.
Thanks! Your message was sent.
