Your email has been sent.
92230 Gennevilliers 5,802 - 11,690 SF of Flex Space Available



Some information has been automatically translated.
Highlights
- Quick access to major roads
- Secured park
- Nearby public transportation
Features
All Available Spaces(2)
Display Rental Rate as
- Space
- Size
- Term
-
Rental Rate
- Space Use
- Build-Out
- Available
This activity space offers ground-level access, facilitating handling operations and logistical flows. The significant interior height allows for the installation of technical equipment or suitable storage solutions. The secure environment, including an enclosed park and surveillance systems, ensures smooth operations for a business seeking an operational location near Paris. Access is also optimized for heavy vehicles, making it easier for activities requiring frequent deliveries or goods transportation.
- Agency Fee: 15.00% of annual rent
- Security Deposit: 3 months of rent
-
Property Tax: $0.00 /SF/YR $0.00 /SF/MO $2.04 /YR $0.17 /MO
- 1 Drive Bay
- Closed Circuit Television Monitoring (CCTV)
- Finished Ceilings: 23’
- High Ceilings
- Wheelchair Accessible
- Significant clear height
-
Rental Charges: $0.00 /SF/YR $0.00 /SF/MO $1.48 /YR $0.12 /MO
-
Office Tax: $0.53 /SF/YR $0.04 /SF/MO $3,046 /YR $253.84 /MO
- Space is in Excellent Condition
- Security System
- Secure Storage
- Common Parts WC Facilities
- Smoke Detector
- Ground-level access
- Secure enclosed park
-
Rental Charges: $1.47 /SF/YR $0.12 /SF/MO $8,676 /YR $723.00 /MO
-
Office Tax: $2.11 /SF/YR $0.18 /SF/MO $12,403 /YR $1,034 /MO
- Space is in Excellent Condition
- Security Deposit: 3 months of rent
-
Property Tax: $1.45 /SF/YR $0.12 /SF/MO $8,554 /YR $712.79 /MO
- Finished Ceilings: 23’
| Space | Size | Term | Rental Rate | Space Use | Build-Out | Available |
| Ste A2 | 5,802 SF | Negotiable | $16.37 /SF/YR HT $1.36 /SF/MO HT $94,990 /YR HT $7,916 /MO HT | Flex | Full Build-Out | Now |
| Ste A3 | 5,888 SF | Negotiable | $16.37 /SF/YR HT $1.36 /SF/MO HT $96,400 /YR HT $8,033 /MO HT | Flex | - | Now |
Ste A2
| Size |
| 5,802 SF |
| Term |
| Negotiable |
|
Rental Rate
|
| $16.37 /SF/YR HT $1.36 /SF/MO HT $94,990 /YR HT $7,916 /MO HT |
| Space Use |
| Flex |
| Build-Out |
| Full Build-Out |
| Available |
| Now |
Ste A3
| Size |
| 5,888 SF |
| Term |
| Negotiable |
|
Rental Rate
|
| $16.37 /SF/YR HT $1.36 /SF/MO HT $96,400 /YR HT $8,033 /MO HT |
| Space Use |
| Flex |
| Build-Out |
| - |
| Available |
| Now |
Ste A2
| Size | 5,802 SF |
| Term | Negotiable |
|
Rental Rate
|
$16.37 /SF/YR HT |
| Space Use | Flex |
| Build-Out | Full Build-Out |
| Available | Now |
This activity space offers ground-level access, facilitating handling operations and logistical flows. The significant interior height allows for the installation of technical equipment or suitable storage solutions. The secure environment, including an enclosed park and surveillance systems, ensures smooth operations for a business seeking an operational location near Paris. Access is also optimized for heavy vehicles, making it easier for activities requiring frequent deliveries or goods transportation.
- Agency Fee: 15.00% of annual rent
-
Rental Charges: $0.00 /SF/YR $0.00 /SF/MO $1.48 /YR $0.12 /MO
- Security Deposit: 3 months of rent
-
Office Tax: $0.53 /SF/YR $0.04 /SF/MO $3,046 /YR $253.84 /MO
-
Property Tax: $0.00 /SF/YR $0.00 /SF/MO $2.04 /YR $0.17 /MO
- Space is in Excellent Condition
- 1 Drive Bay
- Security System
- Closed Circuit Television Monitoring (CCTV)
- Secure Storage
- Finished Ceilings: 23’
- Common Parts WC Facilities
- High Ceilings
- Smoke Detector
- Wheelchair Accessible
- Ground-level access
- Significant clear height
- Secure enclosed park
Ste A3
| Size | 5,888 SF |
| Term | Negotiable |
|
Rental Rate
|
$16.37 /SF/YR HT |
| Space Use | Flex |
| Build-Out | - |
| Available | Now |
-
Rental Charges: $1.47 /SF/YR $0.12 /SF/MO $8,676 /YR $723.00 /MO
- Security Deposit: 3 months of rent
-
Office Tax: $2.11 /SF/YR $0.18 /SF/MO $12,403 /YR $1,034 /MO
-
Property Tax: $1.45 /SF/YR $0.12 /SF/MO $8,554 /YR $712.79 /MO
- Space is in Excellent Condition
- Finished Ceilings: 23’
Property Overview
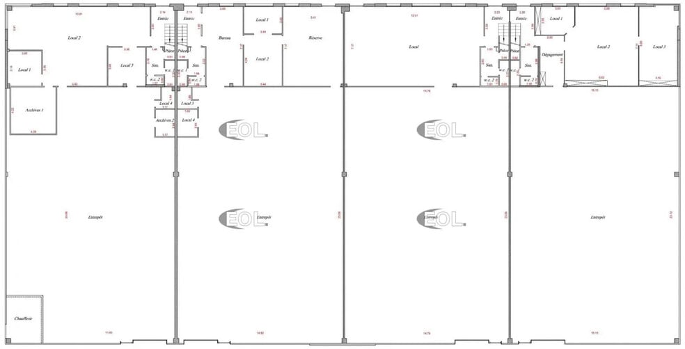
EOL offers for lease a 614m² space for activity/storage use, ideally located near Paris and the RER C in GENNEVILLIERS (92). **Technical Features:** - 1 ground-level access point - 7m clear height - Activity/office ratio: 70/30 - Secured and enclosed park - Heavy vehicle accessibility - Collective gas air heaters - Heavy-duty roadways - Parking spaces for light vehicles **Availability:** July 2025 **Access:** - Quais de Seine - A86 - A15 - A1 - RER: Line C "Gennevilliers-Les Grésillons" 1 km away - Bus: Various bus lines - Metro: Line 13 "Gabriel Péri" 1.3 km away Feel free to contact us for any additional information.
Property Facts
Presented by
"92230 Gennevilliers"
Hmm, there seems to have been an error sending your message. Please try again.
Thanks! Your message was sent.
