Your email has been sent.
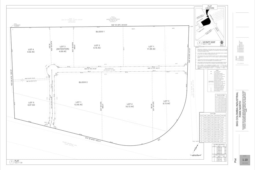
SKG Colombia Industrial Park Hwy 255 & FM 1472 85.07 - 189 Acres of Industrial Land for Lease in Laredo, TX 78045



Highlights
- Build-To-Suit, with Lease or Purchase options available.
- All utilities will be to site once developed.
- Hard-corner lots, with immediate access to both HWY 255 and FM 1472.
LOT Available
Display Rental Rate as
| Rental Rate |
|
Lot Size | 85.07 - 189.00 AC |
| Lease Term | Negotiable |
| Rental Rate | |
| Lease Term | Negotiable |
| Lot Size | 85.07 - 189.00 AC |
SKG at Colombia North and South is a unique opportunity for businesses to be on the forefront of long-term growth at an undeveloped transportation hub. This Build-to-Suit (BTS) warehouse or truck stop development is strategically located less than one mile from the Colombia Solidarity Bridge, offering unmatched access to one of the busiest international trade gateways between the U.S. and Mexico. Users of this property will be at the forefront of economic growth, benefiting from increasing cross-border commerce, major infrastructure investments backed by US and Mexican government, and a surge off-shoring logistics and transportation demand.
Property Overview
SKG Colombia Industrial Park is a unique opportunity for businesses to be on the forefront of long-term growth at an undeveloped transportation hub. This development is strategically located less than one mile from the Colombia Solidarity Bridge, offering unmatched access to one of the busiest international trade gateways between the U.S. and Mexico. Users of this property will be at the forefront of economic growth, benefiting from increasing cross-border commerce, major infrastructure investments backed by US and Mexican government, and a surge of off-shoring logistics and transportation demand. Proposed uses: Truck Stop, Warehouse, Industrial, Cold-Storage.
Property Facts
Presented by
SKG Colombia Industrial Park | Hwy 255 & FM 1472
Hmm, there seems to have been an error sending your message. Please try again.
Thanks! Your message was sent.
