Log In/Sign Up
Your email has been sent.
I 35W
Northlake, TX 76262
Land For Sale
·
2.81 AC


Investment Highlights
- Excellent Access and Visibility from I-35W
- Circular Access
Executive Summary
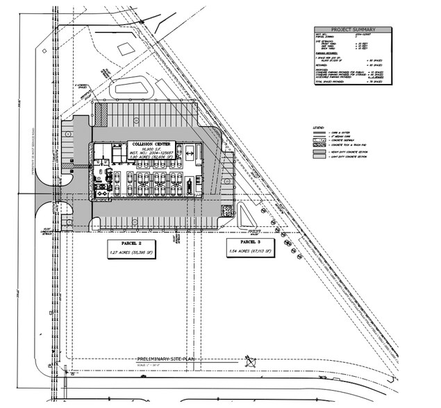
±2.81-acre commercial site with prime visibility and access along the I-35W northbound frontage road. The site has a dedicated exit, circular access via two intersections, and a TxDOT curb cut currently in process. Zoned Commercial and divisible to accommodate multiple users. Ideal for retail, service, or restaurant development. The site is adjacent to a proposed collision center and surrounded by national dining options including Texas Roadhouse, Rosa’s Café, Cracker Barrel, Olive Garden, and Twin Peaks. City incentives may be available for sit-down restaurant users.
Property Facts
| Sale Type | Investment or Owner User | Proposed Use | Retail |
| No. Lots | 1 | Total Lot Size | 2.81 AC |
| Property Type | Land | Cross Streets | Ashmore Lane |
| Property Subtype | Commercial | ||
| Zoning | Commercial - Zoning is Commercial. Accommodates most commercial uses. See Town of Northlake zoning ordinance for more detailed information. | ||
| Sale Type | Investment or Owner User |
| No. Lots | 1 |
| Property Type | Land |
| Property Subtype | Commercial |
| Proposed Use | Retail |
| Total Lot Size | 2.81 AC |
| Cross Streets | Ashmore Lane |
| Zoning | Commercial - Zoning is Commercial. Accommodates most commercial uses. See Town of Northlake zoning ordinance for more detailed information. |
1 Lot Available
Lot
| Lot Size | 2.81 AC |
| Lot Size | 2.81 AC |
±2.81-acre commercial site with prime visibility and access along the I-35W northbound frontage road. Zoned Commercial, will subdivide.
Property Taxes
| Parcel Number | R528797 | Improvements Assessment | $0 |
| Land Assessment | $331,337 | Total Assessment | $331,337 |
Property Taxes
Parcel Number
R528797
Land Assessment
$331,337
Improvements Assessment
$0
Total Assessment
$331,337
1 of 6
Videos
Matterport 3D Exterior
Matterport 3D Tour
Photos
Street View
Street
Map
