Your email has been sent.
Highlights
- Located near Champions Gate and spaces are READY to be delivered!
- Carrabba's, Einstein Bagel, Foxtail Coffee and Potbelly are now open for business in this project
- Outback is open on Legacy's Tract A, east of Tract B, further enhancing this properties growth and foot traffic potential.
- High Visibility from a signalized intersection and positioned at the Osceola and Polk County line
- Legacy Square offers near-direct access to I-4, ensuring exposure to 115,000 vehicles daily, marking it as an outstanding destination for travelers.
Space Availability (1)
Display Rental Rate as
- Space
- Size
- Term
- Rental Rate
- Rent Type
| Space | Size | Term | Rental Rate | Rent Type | ||
| 1st Floor | 1,500-4,623 SF | Negotiable | Upon Request Upon Request Upon Request Upon Request | Triple Net (NNN) |
400 Legacy Dr - 1st Floor
- Lease rate does not include utilities, property expenses or building services
Rent Types
The rent amount and type that the tenant (lessee) will be responsible to pay to the landlord (lessor) throughout the lease term is negotiated prior to both parties signing a lease agreement. The rent type will vary depending upon the services provided. For example, triple net rents are typically lower than full service rents due to additional expenses the tenant is required to pay in addition to the base rent. Contact the listing broker for a full understanding of any associated costs or additional expenses for each rent type.
1. Full Service: A rental rate that includes normal building standard services as provided by the landlord within a base year rental.
2. Double Net (NN): Tenant pays for only two of the building expenses; the landlord and tenant determine the specific expenses prior to signing the lease agreement.
3. Triple Net (NNN): A lease in which the tenant is responsible for all expenses associated with their proportional share of occupancy of the building.
4. Modified Gross: Modified Gross is a general type of lease rate where typically the tenant will be responsible for their proportional share of one or more of the expenses. The landlord will pay the remaining expenses. See the below list of common Modified Gross rental rate structures: 4. Plus All Utilities: A type of Modified Gross Lease where the tenant is responsible for their proportional share of utilities in addition to the rent. 4. Plus Cleaning: A type of Modified Gross Lease where the tenant is responsible for their proportional share of cleaning in addition to the rent. 4. Plus Electric: A type of Modified Gross Lease where the tenant is responsible for their proportional share of the electrical cost in addition to the rent. 4. Plus Electric & Cleaning: A type of Modified Gross Lease where the tenant is responsible for their proportional share of the electrical and cleaning cost in addition to the rent. 4. Plus Utilities and Char: A type of Modified Gross Lease where the tenant is responsible for their proportional share of the utilities and cleaning cost in addition to the rent. 4. Industrial Gross: A type of Modified Gross lease where the tenant pays one or more of the expenses in addition to the rent. The landlord and tenant determine these prior to signing the lease agreement.
5. Tenant Electric: The landlord pays for all services and the tenant is responsible for their usage of lights and electrical outlets in the space they occupy.
6. Negotiable or Upon Request: Used when the leasing contact does not provide the rent or service type.
7. TBD: To be determined; used for buildings for which no rent or service type is known, commonly utilized when the buildings are not yet built.
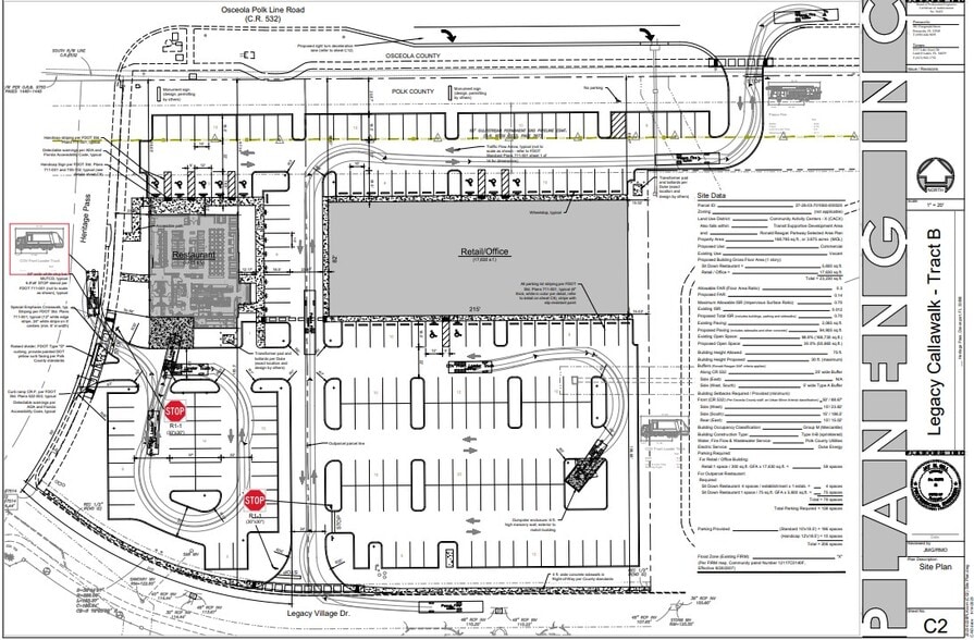
Site Plan
Select Tenants at Legacy Square
- Tenant
- Description
- US Locations
- Reach
- National Restaurant
- Accommodation and Food Services
- -
- -
| Tenant | Description | US Locations | Reach |
| National Restaurant | Accommodation and Food Services | - | - |
Property Facts
| Total Space Available | 4,623 SF | Frontage | Osceola Polk Line Road |
| Min. Divisible | 1,500 SF | Gross Leasable Area | 17,630 SF |
| Center Type | Strip Center | Total Land Area | 4.59 AC |
| Center Properties | 1 | Year Built | 2025 |
| Total Space Available | 4,623 SF |
| Min. Divisible | 1,500 SF |
| Center Type | Strip Center |
| Center Properties | 1 |
| Frontage | Osceola Polk Line Road |
| Gross Leasable Area | 17,630 SF |
| Total Land Area | 4.59 AC |
| Year Built | 2025 |
About the Property
Discover Legacy Square, a new commercial development along Osceola Polkline Road / County Road 532 in Davenport. Nestled at the boundary of Osceola and Polk Counties, Legacy Square is poised to cater to the needs of residents of the Legacy Union Square Apartments and the surrounding residential communities. At 17,630 square feet, the prime development offers versatile spaces, divisible down to 1,500-square-foot layouts, ensuring adaptability for businesses of all sizes. This dynamic commercial hub will feature an enticing mix of retail, office, and medical establishments, creating a vibrant and diverse tenant environment. A national Italian restaurant is slated to occupy an adjacent standalone at Legacy Square, enhancing the property's allure and increasing foot traffic potential. The prime development's location holds significant appeal five minutes from Champions Gate, Orlando's premier tourist and commercial destination just southwest of The Walt Disney World Resort. Legacy Square benefits from its proximity to major retailers, including Starbucks, Keke's Breakfast Café, McDonald's, and Publix, fostering a robust ecosystem for future businesses to thrive. Direct connectivity to Interstate 4 further enhances accessibility, with a daily traffic count of 115,000 vehicles at the junction of these main thoroughfares, solidifying Legacy Square as a pivotal stop for travelers between Tampa and Orlando. Showcasing the area's economic vibrancy, the 1-mile radius around Legacy Square boasts a total consumer spending of $81 million, with an anticipated population growth of 13.2% from 2023 to 2028. With its strategic location, diverse tenant mix, and flexible spaces, Legacy Square will make a lasting impact on the commercial landscape. Anticipated for completion in Q4 2024, this development is set to be a dynamic and sought-after destination for businesses and patrons alike.
- Corner Lot
- Monument Signage
- Air Conditioning
Nearby Major Retailers
Presented by
Legacy Square | I-4 Osceola Polk Rd
Hmm, there seems to have been an error sending your message. Please try again.
Thanks! Your message was sent.




