Your email has been sent.
Eglinton Country Park Irvine Rd 460 - 2,366 SF of Industrial Space Available in Kilwinning KA13 7QA

Highlights
- Semi-rural position on the outskirts of Kilwinning
- Eglinton Workshops are located within the semi-rural Eglinton Country Park,
- Close to main road networks
All Available Spaces(3)
Display Rental Rate as
- Space
- Size
- Term
- Rental Rate
- Space Use
- Build-Out
- Available
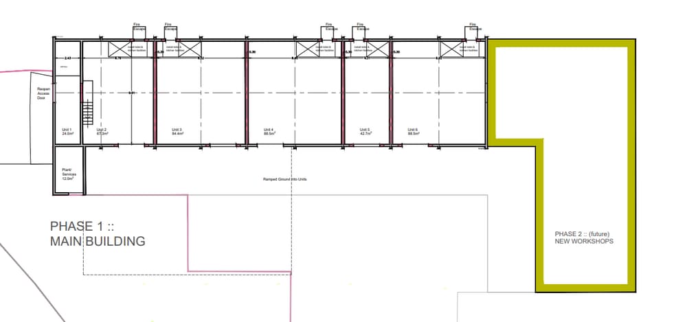
Units are available from 24 sqm to 395 sqm (258 sqft to 4252 sqft), with minimum 3m internal eaves clearance and most having vehicle entry doors. The Workshops will have a shared yard area.
- Use Class: Class 5
- Shell space
- Open plan
- Can be combined with additional space(s) for up to 2,366 SF of adjacent space
- Under refurbishment
Units are available from 24 sqm to 395 sqm (258 sqft to 4252 sqft), with minimum 3m internal eaves clearance and most having vehicle entry doors. The Workshops will have a shared yard area.
- Use Class: Class 5
- Shell space
- Open plan
- Can be combined with additional space(s) for up to 2,366 SF of adjacent space
- Under refurbishment
Units are available from 24 sqm to 395 sqm (258 sqft to 4252 sqft), with minimum 3m internal eaves clearance and most having vehicle entry doors. The Workshops will have a shared yard area.
- Use Class: Class 5
- Shell space
- Open plan
- Can be combined with additional space(s) for up to 2,366 SF of adjacent space
- Under refurbishment
| Space | Size | Term | Rental Rate | Space Use | Build-Out | Available |
| Ground - 4 | 953 SF | Negotiable | Upon Request Upon Request Upon Request Upon Request | Industrial | Shell Space | Now |
| Ground - 5 | 460 SF | Negotiable | Upon Request Upon Request Upon Request Upon Request | Industrial | Shell Space | Now |
| Ground - 6 | 953 SF | Negotiable | Upon Request Upon Request Upon Request Upon Request | Industrial | Shell Space | Now |
Ground - 4
| Size |
| 953 SF |
| Term |
| Negotiable |
| Rental Rate |
| Upon Request Upon Request Upon Request Upon Request |
| Space Use |
| Industrial |
| Build-Out |
| Shell Space |
| Available |
| Now |
Ground - 5
| Size |
| 460 SF |
| Term |
| Negotiable |
| Rental Rate |
| Upon Request Upon Request Upon Request Upon Request |
| Space Use |
| Industrial |
| Build-Out |
| Shell Space |
| Available |
| Now |
Ground - 6
| Size |
| 953 SF |
| Term |
| Negotiable |
| Rental Rate |
| Upon Request Upon Request Upon Request Upon Request |
| Space Use |
| Industrial |
| Build-Out |
| Shell Space |
| Available |
| Now |
Ground - 4
| Size | 953 SF |
| Term | Negotiable |
| Rental Rate | Upon Request |
| Space Use | Industrial |
| Build-Out | Shell Space |
| Available | Now |
Units are available from 24 sqm to 395 sqm (258 sqft to 4252 sqft), with minimum 3m internal eaves clearance and most having vehicle entry doors. The Workshops will have a shared yard area.
- Use Class: Class 5
- Can be combined with additional space(s) for up to 2,366 SF of adjacent space
- Shell space
- Under refurbishment
- Open plan
Ground - 5
| Size | 460 SF |
| Term | Negotiable |
| Rental Rate | Upon Request |
| Space Use | Industrial |
| Build-Out | Shell Space |
| Available | Now |
Units are available from 24 sqm to 395 sqm (258 sqft to 4252 sqft), with minimum 3m internal eaves clearance and most having vehicle entry doors. The Workshops will have a shared yard area.
- Use Class: Class 5
- Can be combined with additional space(s) for up to 2,366 SF of adjacent space
- Shell space
- Under refurbishment
- Open plan
Ground - 6
| Size | 953 SF |
| Term | Negotiable |
| Rental Rate | Upon Request |
| Space Use | Industrial |
| Build-Out | Shell Space |
| Available | Now |
Units are available from 24 sqm to 395 sqm (258 sqft to 4252 sqft), with minimum 3m internal eaves clearance and most having vehicle entry doors. The Workshops will have a shared yard area.
- Use Class: Class 5
- Can be combined with additional space(s) for up to 2,366 SF of adjacent space
- Shell space
- Under refurbishment
- Open plan
Property Overview
Eglinton Workshops comprise of a detached workshop property that is undergoing refurbishment into units in a variety of sizes to suits occupier requirements, with units available from Spring 2025.
Warehouse Facility Facts
Presented by
Eglinton Country Park | Irvine Rd
Hmm, there seems to have been an error sending your message. Please try again.
Thanks! Your message was sent.
