Your email has been sent.
Leaburn Dr - Plot 6 1.6 Acres of Residential Land Offered at $101,523 in Hawick TD9 9NZ



Investment Highlights
- Elevated position in Hawick
- Includes full planning permission
- Views of the surrounding countryside
Executive Summary
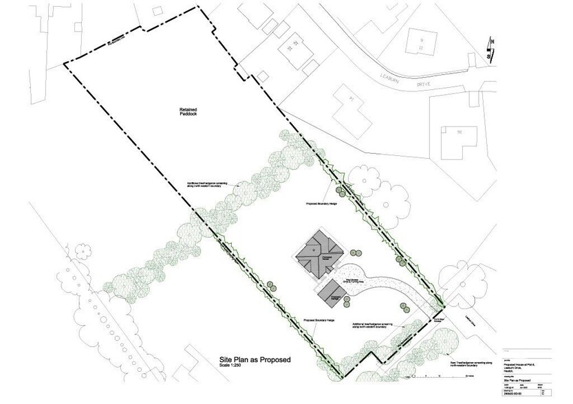
Full planning information can be found on the SBC website (https://eplanning.scotborders.gov.uk/online-applications/) Using Planning Reference Number
22/00943/FUL
Planning was approved February 2023.
Property Facts
| Price | $101,523 | Property Type | Land |
| Sale Type | Investment | Property Subtype | Residential |
| Tenure | Freehold | Proposed Use | Single Family Residence |
| No. Lots | 1 | Total Lot Size | 1.60 AC |
| Price | $101,523 |
| Sale Type | Investment |
| Tenure | Freehold |
| No. Lots | 1 |
| Property Type | Land |
| Property Subtype | Residential |
| Proposed Use | Single Family Residence |
| Total Lot Size | 1.60 AC |
1 Lot Available
Lot
| Price | $101,523 | Lot Size | 1.60 AC |
| Price Per AC | $63,451.78 |
| Price | $101,523 |
| Price Per AC | $63,451.78 |
| Lot Size | 1.60 AC |
large building plot of approximately 1.6 Acres, located in an elevated position at the top of Leaburn Drive in Hawick. The site benefits from stunning views over the town and surrounding countryside and is available for sale with planning permission
Description
this large building plot of approximately 1.6 Acres, located in an elevated position at the top of Leaburn Drive in Hawick. The site benefits from stunning views over the town and surrounding countryside. Heading out from Hawick town centre along Weensland Road (A698), take the second right on to Leaburn Drive. Carry on all the way up the hill until the road ends. The plot sits straight ahead looking back over the town and Scottish Border hills.
Presented by
Leaburn Dr - Plot 6
Hmm, there seems to have been an error sending your message. Please try again.
Thanks! Your message was sent.
