Log In/Sign Up
Your email has been sent.
Executive Summary
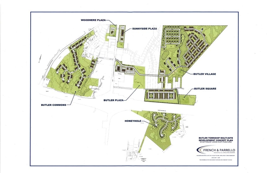
Great Opportunity to Develop this Prime 18.69 acre site in Butler Township. Concept plan available for approx. 200 Flats, Apts. Public Utilities Available.
Property Facts
1 Lot Available
Lot
| Price | $250,000 | Lot Size | 18.69 AC |
| Price Per AC | $13,376.14 |
| Price | $250,000 |
| Price Per AC | $13,376.14 |
| Lot Size | 18.69 AC |
Great opportunity to develop this prime 18.69 acre site in Butler Twp. Concept plan available for approx. 200 flats, apts. Zoned MBR.
1 1
1 of 8
Videos
Matterport 3D Exterior
Matterport 3D Tour
Photos
Street View
Street
Map
1 of 1
Presented by
Maces Rd - 26-256
Already a member? Log In
Hmm, there seems to have been an error sending your message. Please try again.
Thanks! Your message was sent.
Your message has been sent!
Activate your LoopNet account now to track properties, get real-time alerts, save time on future inquiries, and more.



