Log In/Sign Up
Your email has been sent.
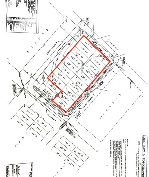
Market Street - Paddlewheel 1 Acre of Commercial Land Offered at $2,000,000 in Apalachicola, FL 32320



Executive Summary
These premier properties offer an incredible investment opportunity for retail, dining, office, event, or mixed-use development with residential units above.
Property Facts
| Price | $2,000,000 | Property Subtype | Commercial |
| Sale Type | Investment or Owner User | Proposed Use | |
| No. Lots | 1 | Total Lot Size | 1.00 AC |
| Property Type | Land | ||
| Zoning | FLUM: Commercial - Future Land Use: Commercial | ||
| Price | $2,000,000 |
| Sale Type | Investment or Owner User |
| No. Lots | 1 |
| Property Type | Land |
| Property Subtype | Commercial |
| Proposed Use | |
| Total Lot Size | 1.00 AC |
| Zoning | FLUM: Commercial - Future Land Use: Commercial |
1 Lot Available
Lot
| Price | $2,000,000 | Lot Size | 1.00 AC |
| Price Per AC | $2,000,000.00 |
| Price | $2,000,000 |
| Price Per AC | $2,000,000.00 |
| Lot Size | 1.00 AC |
Seize this rare opportunity to own 18 commercially zoned lots in the heart of historic downtown Apalachicola!
Bike Score®
Very Bikeable (72)
Property Taxes
| Parcel Number | 01-09S-08W-8330-00G2-0010 | Improvements Assessment | $0 |
| Land Assessment | $1,350,000 | Total Assessment | $1,350,000 |
Property Taxes
Parcel Number
01-09S-08W-8330-00G2-0010
Land Assessment
$1,350,000
Improvements Assessment
$0
Total Assessment
$1,350,000
1 of 5
Videos
Matterport 3D Exterior
Matterport 3D Tour
Photos
Street View
Street
Map
Presented by
Market Street - Paddlewheel
Already a member? Log In
Hmm, there seems to have been an error sending your message. Please try again.
Thanks! Your message was sent.
Your message has been sent!
Activate your LoopNet account now to track properties, get real-time alerts, save time on future inquiries, and more.

