Your email has been sent.
13002 Marseille 4,144 - 10,872 SF of Office Space Available



Some information has been automatically translated.
HIGHLIGHTS
- Euroméditerranée District
- Breeam certified building
- Varied transportation access
ALL AVAILABLE SPACES(2)
Display Rental Rate as
- SPACE
- SIZE
- TERM
-
RENTAL RATE
- SPACE USE
- CONDITION
- AVAILABLE
This ground-floor space within the Gaymard Space features a partitioned layout, ideal for private offices. It is equipped with RJ45 computer wiring, a raised technical floor, and recessed lighting for optimal comfort. Private restrooms are available, and a kitchen area can be created. Security is ensured by a security desk and an alarm system. Two indoor parking spaces are available as an option. The entire space is air-conditioned and renovated, providing a functional and pleasant environment for your teams.
- Agency Fee: 15.00% of annual rent
- Renovated partitioned offices
- 2 indoor parking spaces available
- Can be combined with additional space(s) for up to 10,872 SF of adjacent space
- Reversible air conditioning
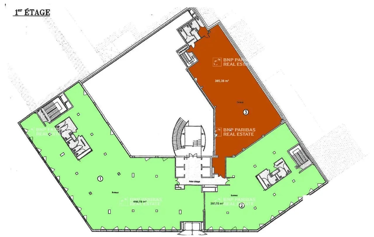
This space located on the first floor of the Espace Gaymard features a partitioned layout, ideal for private offices. It is equipped with RJ45 computer cabling, a raised technical floor, and recessed lighting for optimal comfort. The restrooms are private, and a kitchen area can be created. Security is ensured by a security desk and an alarm system. Two indoor parking spaces are available as an option. The entire space is air-conditioned and renovated, providing a functional and pleasant environment for your teams.
- Agency Fee: 15.00% of annual rent
- Open Floor Plan Layout
- Central Air Conditioning
- Fully Carpeted
- Drop Ceilings
- Bright open space
- Renovated offices
- Fully Built-Out as Standard Office
- Can be combined with additional space(s) for up to 10,872 SF of adjacent space
- Private Restrooms
- Security System
- Open-Plan
- 2 parking spaces available
| Space | Size | Term | Rental Rate | Space Use | Condition | Available |
| Ground | 6,727 SF | Negotiable | $26.02 /SF/YR HT-HC $2.17 /SF/MO HT-HC $175,019 /YR HT-HC $14,585 /MO HT-HC | Office | - | Now |
| 1st Floor | 4,144 SF | Negotiable | $26.02 /SF/YR HT-HC $2.17 /SF/MO HT-HC $107,812 /YR HT-HC $8,984 /MO HT-HC | Office | Full Build-Out | Now |
Ground
| Size |
| 6,727 SF |
| Term |
| Negotiable |
|
Rental Rate
|
| $26.02 /SF/YR HT-HC $2.17 /SF/MO HT-HC $175,019 /YR HT-HC $14,585 /MO HT-HC |
| Space Use |
| Office |
| Condition |
| - |
| Available |
| Now |
1st Floor
| Size |
| 4,144 SF |
| Term |
| Negotiable |
|
Rental Rate
|
| $26.02 /SF/YR HT-HC $2.17 /SF/MO HT-HC $107,812 /YR HT-HC $8,984 /MO HT-HC |
| Space Use |
| Office |
| Condition |
| Full Build-Out |
| Available |
| Now |
Ground
| Size | 6,727 SF |
| Term | Negotiable |
|
Rental Rate
|
$26.02 /SF/YR HT-HC |
| Space Use | Office |
| Condition | - |
| Available | Now |
This ground-floor space within the Gaymard Space features a partitioned layout, ideal for private offices. It is equipped with RJ45 computer wiring, a raised technical floor, and recessed lighting for optimal comfort. Private restrooms are available, and a kitchen area can be created. Security is ensured by a security desk and an alarm system. Two indoor parking spaces are available as an option. The entire space is air-conditioned and renovated, providing a functional and pleasant environment for your teams.
- Agency Fee: 15.00% of annual rent
- Can be combined with additional space(s) for up to 10,872 SF of adjacent space
- Renovated partitioned offices
- Reversible air conditioning
- 2 indoor parking spaces available
1st Floor
| Size | 4,144 SF |
| Term | Negotiable |
|
Rental Rate
|
$26.02 /SF/YR HT-HC |
| Space Use | Office |
| Condition | Full Build-Out |
| Available | Now |
This space located on the first floor of the Espace Gaymard features a partitioned layout, ideal for private offices. It is equipped with RJ45 computer cabling, a raised technical floor, and recessed lighting for optimal comfort. The restrooms are private, and a kitchen area can be created. Security is ensured by a security desk and an alarm system. Two indoor parking spaces are available as an option. The entire space is air-conditioned and renovated, providing a functional and pleasant environment for your teams.
- Agency Fee: 15.00% of annual rent
- Fully Built-Out as Standard Office
- Open Floor Plan Layout
- Can be combined with additional space(s) for up to 10,872 SF of adjacent space
- Central Air Conditioning
- Private Restrooms
- Fully Carpeted
- Security System
- Drop Ceilings
- Open-Plan
- Bright open space
- 2 parking spaces available
- Renovated offices
PROPERTY OVERVIEW
MARSEILLE 2nd OFFICES FOR RENT In the heart of Euromediterranee, in the business district of Joliette, we offer a ground floor of 625 m² as well as a 1st floor of 385 m². OLBUR2418957 OFFICE RENTAL — MARSEILLE 13002 — ESPACE GAYMARD We offer offices located in the 2nd arrondissement of Marseille for rent. Located in the heart of one of the oldest cities in France, these offices are in an important district of the city, Joliette and more specifically within the Euromediterranean 1 business district. The offer includes partitioned offices, the possibility of creating a kitchen space, secure access with security, two parking spaces available at €1,700/unit/year excluding VAT. Building services: Reversible air conditioning Open space offices Private sanitary facilities Common outdoor space Inner garden PC security RJ 45 computer cabling Breeam Very Good certification Indoor parking (2 spaces available) This business district offers a pleasant and dynamic working environment with restaurant services, shops, sports activities, hotels... This setting is easily accessible thanks to public transport (M2, T2, T2, T3, 35, 45...) and nearby roads (A55 and A7). With quick access possible to the SNCF train station, the Airport or even cultural places such as the Mucem and the Major Cathedral. Accessibility: A7 and A55 motorways Marseille Provence SNCF station 7 mins away Marseille Provence bus station 7 mins away Marseille Provence airport 22 mins away Metro 2 Tramway T2 and T3 Bus 35, 45, 55, 49, 82...
- Banking
- Security System
- Wheelchair Accessible
- Reception
PROPERTY FACTS
Presented by
"13002 Marseille"
Hmm, there seems to have been an error sending your message. Please try again.
Thanks! Your message was sent.


