Log In/Sign Up
Your email has been sent.
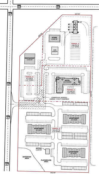
ND Highway 37 & ND Highway 23 - Parshall, ND 14.24 Acres 14.24 Acres of Commercial Land Offered at $575,000 in Parshall, ND 58770



Investment Highlights
- On the corner of 2 State Highways
Executive Summary
14.24 acres (620,294.4 SF); $575,000; prime development land; mixed uses; utilities installed on ND State Highway 37 to ND State Highway 23; great visibility
Property Facts
1 Lot Available
Lot
| Price | $575,000 | Lot Size | 14.24 AC |
| Price Per AC | $40,379.21 |
| Price | $575,000 |
| Price Per AC | $40,379.21 |
| Lot Size | 14.24 AC |
Prime Development at the Intersection of ND Highways 23 & 37
Not walkable
10/100
Exceptionally drivable
100/100
Not bikeable
10/100
Property Taxes
| Parcel Number | 44-0011400 | Improvements Assessment | $0 |
| Land Assessment | $46,350 | Total Assessment | $46,350 |
Property Taxes
Parcel Number
44-0011400
Land Assessment
$46,350
Improvements Assessment
$0
Total Assessment
$46,350
1 of 4
Videos
Matterport 3D Exterior
Matterport 3D Tour
Photos
Street View
Street
Map
Presented by
ND Highway 37 & ND Highway 23 - Parshall, ND 14.24 Acres
Already a member? Log In
Hmm, there seems to have been an error sending your message. Please try again.
Thanks! Your message was sent.

