Log In/Sign Up
Your email has been sent.
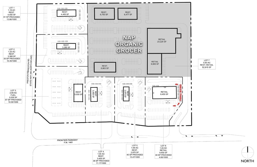
NEQ of Preston Rd - NEQ - Preston Rd. & Frontier Pkwy. (FM 1461) 1 - 2.09 Acre Commercial Land Lots in Prosper, TX 75078



Investment Highlights
- Located at the northeast corner of Preston Rd and Frontier Pkwy in Celina
- Close proximity to Prosper High School with 2,805 students and the Prosper ISD Stadium
- Surrounded by affluent neighborhoods and new developments
- Approximately 6 miles north of US-380 and approximately 2 miles east of the Dallas North Tollway
Executive Summary
Call for info and price.
Property Facts
| Sale Type | Investment | Proposed Use | |
| No. Lots | 6 | Total Lot Size | 7.85 AC |
| Property Type | Land | Cross Streets | Frontier Pkwy |
| Property Subtype | Commercial | ||
| Zoning | AG - Agricultural | ||
| Sale Type | Investment |
| No. Lots | 6 |
| Property Type | Land |
| Property Subtype | Commercial |
| Proposed Use | |
| Total Lot Size | 7.85 AC |
| Cross Streets | Frontier Pkwy |
| Zoning | AG - Agricultural |
6 Lots Available
Lot 1
| Lot Size | 1.18 AC |
| Lot Size | 1.18 AC |
Lot 2
| Lot Size | 1.25 AC |
| Lot Size | 1.25 AC |
Lot 3
| Lot Size | 2.09 AC |
| Lot Size | 2.09 AC |
Lot 4
| Lot Size | 1.00 AC |
| Lot Size | 1.00 AC |
Lot 5
| Lot Size | 1.09 AC |
| Lot Size | 1.09 AC |
Lot 6
| Lot Size | 1.24 AC |
| Lot Size | 1.24 AC |
Somewhat walkable
20/100
Exceptionally drivable
100/100
Property Taxes
| Parcel Number | R-7030-001-0310-1 | Improvements Assessment | $0 |
| Land Assessment | $8,592,036 | Total Assessment | $8,592,036 |
Property Taxes
Parcel Number
R-7030-001-0310-1
Land Assessment
$8,592,036
Improvements Assessment
$0
Total Assessment
$8,592,036
1 of 4
Videos
Matterport 3D Exterior
Matterport 3D Tour
Photos
Street View
Street
Map
Presented by
NEQ of Preston Rd - NEQ - Preston Rd. & Frontier Pkwy. (FM 1461)
Already a member? Log In
Hmm, there seems to have been an error sending your message. Please try again.
Thanks! Your message was sent.

