Your email has been sent.
PARK FACTS
| Total Space Available | 197,633 SF | Features | Mezzanine |
| Park Type | Industrial Park |
| Total Space Available | 197,633 SF |
| Park Type | Industrial Park |
| Features | Mezzanine |
FEATURES AND AMENITIES
- Mezzanine
ALL AVAILABLE SPACES(3)
Display Rental Rate as
- SPACE
- SIZE
- TERM
- RENTAL RATE
- SPACE USE
- CONDITION
- AVAILABLE
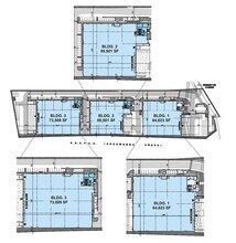
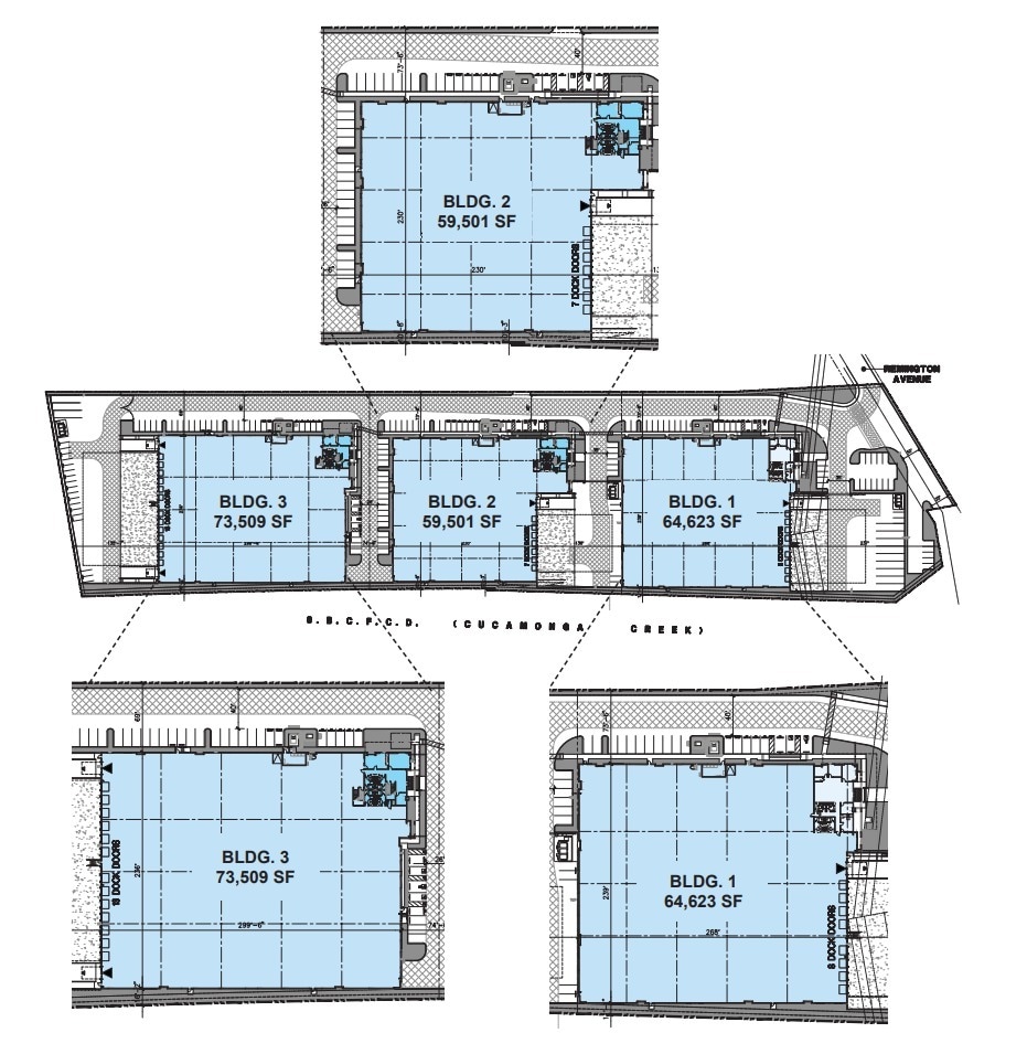
Building 1- 64,623SF, 2,691SF office, 32’ clear height, 8 dock high doors, 1 GL, ESFR Sprinklers, 1,200 AMP expandable to 2,000 AMPS, Private gated truck court. Walls are tilted and Roof is going up.
- Includes 2,691 SF of dedicated office space
- 8 Loading Docks
- 1 Drive Bay
| Space | Size | Term | Rental Rate | Space Use | Condition | Available |
| 1st Floor - Bldg 1 | 64,623 SF | Negotiable | Upon Request Upon Request Upon Request Upon Request | Industrial | - | April 01, 2026 |
NW of S Archibald Ave and Remington Ave - 1st Floor - Bldg 1
- SPACE
- SIZE
- TERM
- RENTAL RATE
- SPACE USE
- CONDITION
- AVAILABLE
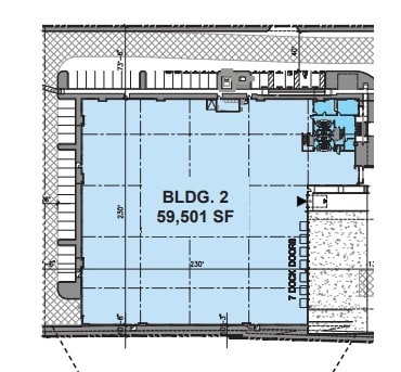
Building 2- 59,501SF, 4,562 SF office, 32’ clear height, 7 dock high doors, 1 GL, ESFR Sprinklers, 1,200 AMP expandable to 2,000 AMPS, Private gated truck court. Walls are tilted and Roof is going up.
- Includes 4,562 SF of dedicated office space
- 7 Loading Docks
- 1 Drive Bay
| Space | Size | Term | Rental Rate | Space Use | Condition | Available |
| 1st Floor - Bldg 2 | 59,501 SF | Negotiable | Upon Request Upon Request Upon Request Upon Request | Industrial | - | April 01, 2026 |
NW of S Archibald Ave and Remington Ave - 1st Floor - Bldg 2
- SPACE
- SIZE
- TERM
- RENTAL RATE
- SPACE USE
- CONDITION
- AVAILABLE
Building 3- 73,509SF, 4,558 SF office, 36’ clear height, 13 dock high doors, 2 GL, ESFR Sprinklers, 1,200 AMP expandable to 2,000 AMPS, Private gated truck court. Walls are tilted and Roof is going up.
- Includes 4,558 SF of dedicated office space
- 13 Loading Docks
- 2 Drive Ins
| Space | Size | Term | Rental Rate | Space Use | Condition | Available |
| 1st Floor - Bldg 3 | 73,509 SF | Negotiable | Upon Request Upon Request Upon Request Upon Request | Industrial | - | April 01, 2026 |
NW of S Archibald Ave and Remington Ave - 1st Floor - Bldg 3
NW of S Archibald Ave and Remington Ave - 1st Floor - Bldg 1
| Size | 64,623 SF |
| Term | Negotiable |
| Rental Rate | Upon Request |
| Space Use | Industrial |
| Condition | - |
| Available | April 01, 2026 |
Building 1- 64,623SF, 2,691SF office, 32’ clear height, 8 dock high doors, 1 GL, ESFR Sprinklers, 1,200 AMP expandable to 2,000 AMPS, Private gated truck court. Walls are tilted and Roof is going up.
- Includes 2,691 SF of dedicated office space
- 1 Drive Bay
- 8 Loading Docks
NW of S Archibald Ave and Remington Ave - 1st Floor - Bldg 2
| Size | 59,501 SF |
| Term | Negotiable |
| Rental Rate | Upon Request |
| Space Use | Industrial |
| Condition | - |
| Available | April 01, 2026 |
Building 2- 59,501SF, 4,562 SF office, 32’ clear height, 7 dock high doors, 1 GL, ESFR Sprinklers, 1,200 AMP expandable to 2,000 AMPS, Private gated truck court. Walls are tilted and Roof is going up.
- Includes 4,562 SF of dedicated office space
- 1 Drive Bay
- 7 Loading Docks
NW of S Archibald Ave and Remington Ave - 1st Floor - Bldg 3
| Size | 73,509 SF |
| Term | Negotiable |
| Rental Rate | Upon Request |
| Space Use | Industrial |
| Condition | - |
| Available | April 01, 2026 |
Building 3- 73,509SF, 4,558 SF office, 36’ clear height, 13 dock high doors, 2 GL, ESFR Sprinklers, 1,200 AMP expandable to 2,000 AMPS, Private gated truck court. Walls are tilted and Roof is going up.
- Includes 4,558 SF of dedicated office space
- 2 Drive Ins
- 13 Loading Docks
Presented by
Remington Industrial Center | Ontario, CA 91762
Hmm, there seems to have been an error sending your message. Please try again.
Thanks! Your message was sent.










