Log In/Sign Up
Your email has been sent.
Old Baltimore Pike
Newark, DE 19702
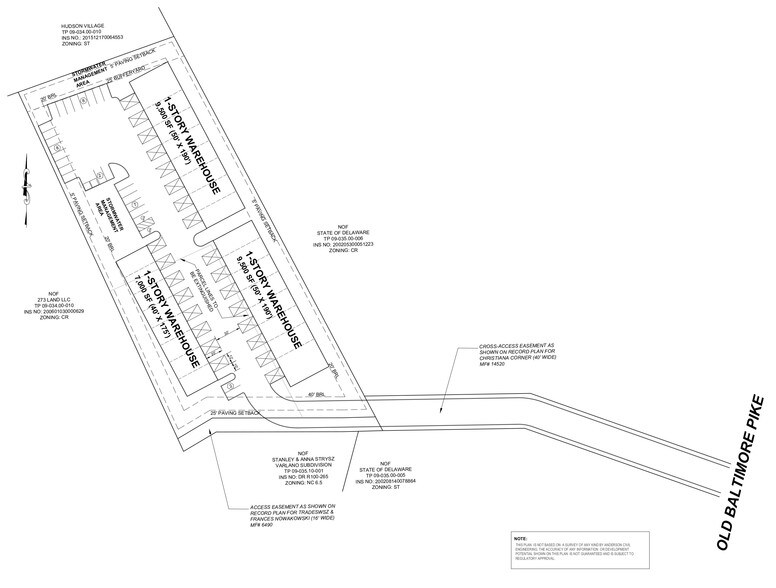
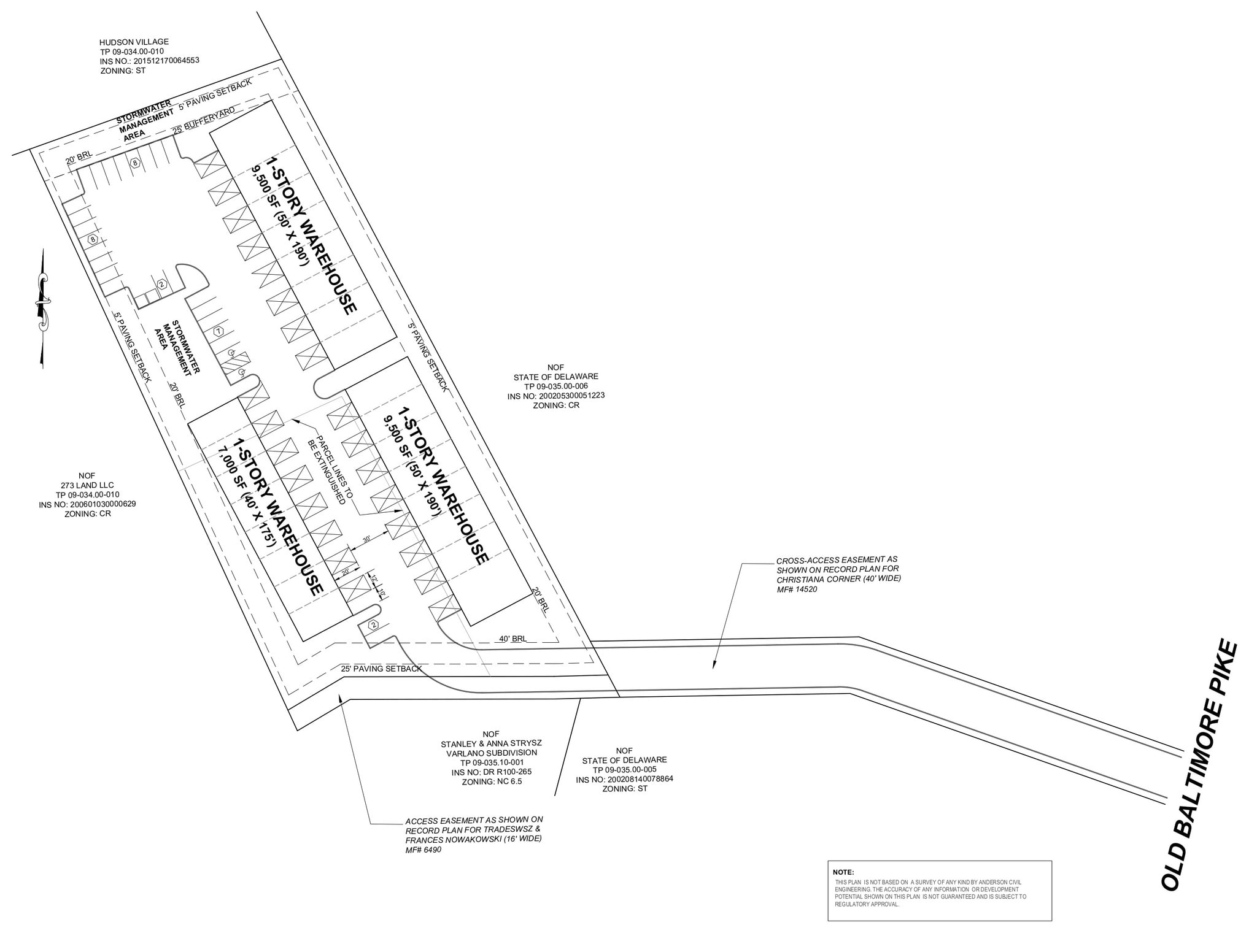
273 & Old Baltimore Pike · Land For Sale
·
2.20 AC


INVESTMENT HIGHLIGHTS
- Property is located in proximity to current developments making city utilities available.
- Ideal for contractor interested in building warehouse space or space for retail usage.
- Parcel can be developed to have access to Old Baltimore Pike and Route 273.
EXECUTIVE SUMMARY
Commercial development opportunity in Newark, DE. Conveniently situated near the intersection of Route 273 and Old Baltimore Pike, this property is ideal for a contractor, retail user or warehouse uses. The property is currently raw ground with some engineering completed by the owner and is easily accessed from Old Baltimore Pike. City utilities available.
PROPERTY FACTS
1 LOT AVAILABLE
Lot
| Lot Size | 2.20 AC |
| Lot Size | 2.20 AC |
Raw ground with some engineering completed.
DESCRIPTION
Commercial development opportunity in Newark, DE. Conveniently situated near the intersection of Route 273 and Old Baltimore Pike, this property is ideal for a contractor, retail user or warehouse uses. The property is currently raw ground with some engineering completed by the owner and is easily accessed from Old Baltimore Pike.
PROPERTY TAXES
| Parcel Numbers | Improvements Assessment | $0 | |
| Land Assessment | $87,600 | Total Assessment | $87,600 |
PROPERTY TAXES
Parcel Numbers
Land Assessment
$87,600
Improvements Assessment
$0
Total Assessment
$87,600
1 of 4
VIDEOS
MATTERPORT 3D EXTERIOR
MATTERPORT 3D TOUR
PHOTOS
STREET VIEW
STREET
MAP
