Your email has been sent.
Park Street - Park & Beaufort Development Opportunity 1.33 Acres of Residential Land Offered at $549,000 in Columbia, SC 29201



Investment Highlights
- Development Opportunity
- Adjacent to planned greenway
- Prime Downtown Location
Executive Summary
Property Facts
1 Lot Available
Lot
| Price | $549,000 | Lot Size | 1.33 AC |
| Price Per AC | $412,781.95 |
| Price | $549,000 |
| Price Per AC | $412,781.95 |
| Lot Size | 1.33 AC |
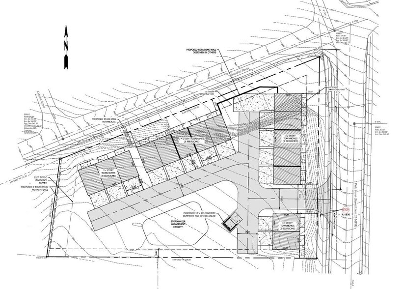
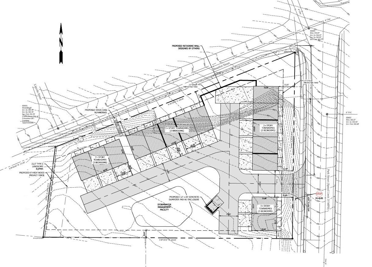
This parcel is located the intersection of Park Street and Beaufort Street in the desirable Earlewood area of downtown Columbia.
Description
Prime development opportunity in downtown Columbia. This corner parcel is in close proximity to the Central Business District, Bull Street mixed-use development, the Vista entertainment district, State House and the University of South Carolina. The site is zoned RM-2, which allows for single-family homes, duplexes, townhouses and apartments. There is no maximum density for townhomes and the site would allow up to 22 units for multi-family. Existing concept plans show a 15 unit townhome development or a 17 unit townhome development. Some preliminary approvals have been secured. Water and sewer service are available from the City of Columbia. No re-zoning required for development. See attached sales package and contact agent for more information.
Property Taxes
| Parcel Number | 09109-20-13 | Improvements Assessment | $500 |
| Land Assessment | $65,400 | Total Assessment | $65,900 |
Property Taxes
Presented by
Park Street - Park & Beaufort Development Opportunity
Hmm, there seems to have been an error sending your message. Please try again.
Thanks! Your message was sent.
