Your email has been sent.
Sooner Rose III- Lot 4 SE 15th St & S Sooner Rd 0.47 Acres of Commercial Land for Lease in Oklahoma City, OK 73110


HIGHLIGHTS
- Site is graded
- All utilities are installed
- All access is built
- Underground stormwater detention is completed
LOT AVAILABLE
Display Rental Rate as
| Rental Rate |
|
Lot Size | 0.47 AC |
| Lease Term | Negotiable |
| Rental Rate | |
| Lease Term | Negotiable |
| Lot Size | 0.47 AC |
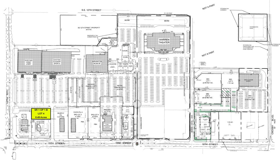
0.47 acres located at the high traffic intersection of SE 15th Street and Sooner Road in Midwest City, offering outstanding visibility and accessibility. The available parcel is situated next to Andy’s Altitude, making this a perfect opportunity for retailers looking to benefit from proximity to a popular entertainment venue. The site is also surrounded by top national retailers, including Hobby Lobby, Academy Sports + Outdoors, Burlington, and Chick-fil-A, ensuring a steady flow of customers. With a daytime population exceeding 158,000 within a 5-mile radius and over 23,000 vehicles passing daily on 15th Street, this location is ideal for businesses looking to thrive.
PROPERTY OVERVIEW
Located at the high traffic intersection of SE 15th Street and Sooner Road in Midwest City, offering outstanding visibility and accessibility. The available parcel is situated next to Andy’s Altitude, making this a perfect opportunity for retailers looking to benefit from proximity to a popular entertainment venue. The site is also surrounded by top national retailers, including Hobby Lobby, Academy Sports + Outdoors, Burlington, and Chick-fil-A, ensuring a steady flow of customers. With a daytime population exceeding 158,000 within a 5-mile radius and over 23,000 vehicles passing daily on 15th Street, this location is ideal for businesses looking to thrive.
PROPERTY FACTS
Presented by
Sooner Rose III- Lot 4 | SE 15th St & S Sooner Rd
Hmm, there seems to have been an error sending your message. Please try again.
Thanks! Your message was sent.

