Your email has been sent.
AllianceCalifornia Northgate San Bernardino, CA 92408 62,772 - 492,490 SF of Industrial Space Available


PARK HIGHLIGHTS
- LEED Certified Trade and Logistics Center
PARK FACTS
| Total Space Available | 492,490 SF | Park Type | Industrial Park |
| Total Space Available | 492,490 SF |
| Park Type | Industrial Park |
ALL AVAILABLE SPACES(4)
Display Rental Rate as
- SPACE
- SIZE
- TERM
- RENTAL RATE
- SPACE USE
- CONDITION
- AVAILABLE
±3,000 SF spec office. 30 FC LED speed bay lighting; 1 FC LED warehouse lighting. 2,000 amp service; (277/480-volt, 3-phase, 4-wire).
- Includes 3,000 SF of dedicated office space
- 17 Loading Docks
- 36’ clear height
- 56’ x 60’ column spacing; 60’ at staging bays
- Building slab: 7” thick; 4,000 psi
- 1 Drive Bay
- Partitioned Offices
- 135’ truck court
- 17 - dock doors; 8 dock levelers
- ESFR sprinkler system
| Space | Size | Term | Rental Rate | Space Use | Condition | Available |
| 1st Floor | 99,376 SF | Negotiable | Upon Request Upon Request Upon Request Upon Request | Industrial | - | January 01, 2026 |
SEC 3rd St and Tippecanoe Ave - 1st Floor
- SPACE
- SIZE
- TERM
- RENTAL RATE
- SPACE USE
- CONDITION
- AVAILABLE
±3,266 SF spec office. 30 FC LED speed bay lighting; 1 FC LED warehouse lighting. 1,200 amp service; (277/480-volt, 3-phase, 4-wire).
- Includes 3,266 SF of dedicated office space
- 27 Loading Docks
- 36’ clear height
- 56’ x 60’ column spacing; 60’ at staging bays
- Building slab: 7” thick; 4,000 psi
- 2 Drive Ins
- Partitioned Offices
- 135’ truck court
- 27 - dock doors
- ESFR sprinkler system
| Space | Size | Term | Rental Rate | Space Use | Condition | Available |
| 1st Floor | 146,772 SF | Negotiable | Upon Request Upon Request Upon Request Upon Request | Industrial | - | January 01, 2026 |
1301 E 3rd St - 1st Floor
- SPACE
- SIZE
- TERM
- RENTAL RATE
- SPACE USE
- CONDITION
- AVAILABLE
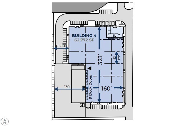
±3,266 SF spec office. 30 FC LED speed bay lighting; 1 FC LED warehouse lighting. 800 amp service; (277/480-volt, 3-phase, 4-wire).
- Includes 3,266 SF of dedicated office space
- 9 Loading Docks
- 32’ clear height
- 52’ x 60’ column spacing; 60’ at staging bays
- Building slab: 6” thick; 4,000 psi
- 2 Drive Ins
- Partitioned Offices
- 130’ truck court
- 9 - dock doors
- ESFR sprinkler system
| Space | Size | Term | Rental Rate | Space Use | Condition | Available |
| 1st Floor | 62,772 SF | Negotiable | Upon Request Upon Request Upon Request Upon Request | Industrial | - | January 01, 2026 |
1480 E Art Townsend Dr - 1st Floor
- SPACE
- SIZE
- TERM
- RENTAL RATE
- SPACE USE
- CONDITION
- AVAILABLE
±3,248 SF spec office. 30 FC LED speed bay lighting; 1 FC LED warehouse lighting. 1,200 amp service; (277/480-volt, 3-phase, 4-wire).
- Includes 3,248 SF of dedicated office space
- 26 Loading Docks
- 36’ clear height
- 56’ x 60’ column spacing; 60’ at staging bays
- Building slab: 7” thick; 4,000 psi
- 2 Drive Ins
- Partitioned Offices
- 135’ truck court
- 26 - dock doors
- ESFR sprinkler system
| Space | Size | Term | Rental Rate | Space Use | Condition | Available |
| 1st Floor | 183,570 SF | Negotiable | Upon Request Upon Request Upon Request Upon Request | Industrial | - | January 01, 2026 |
108 N Del Rosa Dr - 1st Floor
SEC 3rd St and Tippecanoe Ave - 1st Floor
| Size | 99,376 SF |
| Term | Negotiable |
| Rental Rate | Upon Request |
| Space Use | Industrial |
| Condition | - |
| Available | January 01, 2026 |
±3,000 SF spec office. 30 FC LED speed bay lighting; 1 FC LED warehouse lighting. 2,000 amp service; (277/480-volt, 3-phase, 4-wire).
- Includes 3,000 SF of dedicated office space
- 1 Drive Bay
- 17 Loading Docks
- Partitioned Offices
- 36’ clear height
- 135’ truck court
- 56’ x 60’ column spacing; 60’ at staging bays
- 17 - dock doors; 8 dock levelers
- Building slab: 7” thick; 4,000 psi
- ESFR sprinkler system
1301 E 3rd St - 1st Floor
| Size | 146,772 SF |
| Term | Negotiable |
| Rental Rate | Upon Request |
| Space Use | Industrial |
| Condition | - |
| Available | January 01, 2026 |
±3,266 SF spec office. 30 FC LED speed bay lighting; 1 FC LED warehouse lighting. 1,200 amp service; (277/480-volt, 3-phase, 4-wire).
- Includes 3,266 SF of dedicated office space
- 2 Drive Ins
- 27 Loading Docks
- Partitioned Offices
- 36’ clear height
- 135’ truck court
- 56’ x 60’ column spacing; 60’ at staging bays
- 27 - dock doors
- Building slab: 7” thick; 4,000 psi
- ESFR sprinkler system
1480 E Art Townsend Dr - 1st Floor
| Size | 62,772 SF |
| Term | Negotiable |
| Rental Rate | Upon Request |
| Space Use | Industrial |
| Condition | - |
| Available | January 01, 2026 |
±3,266 SF spec office. 30 FC LED speed bay lighting; 1 FC LED warehouse lighting. 800 amp service; (277/480-volt, 3-phase, 4-wire).
- Includes 3,266 SF of dedicated office space
- 2 Drive Ins
- 9 Loading Docks
- Partitioned Offices
- 32’ clear height
- 130’ truck court
- 52’ x 60’ column spacing; 60’ at staging bays
- 9 - dock doors
- Building slab: 6” thick; 4,000 psi
- ESFR sprinkler system
108 N Del Rosa Dr - 1st Floor
| Size | 183,570 SF |
| Term | Negotiable |
| Rental Rate | Upon Request |
| Space Use | Industrial |
| Condition | - |
| Available | January 01, 2026 |
±3,248 SF spec office. 30 FC LED speed bay lighting; 1 FC LED warehouse lighting. 1,200 amp service; (277/480-volt, 3-phase, 4-wire).
- Includes 3,248 SF of dedicated office space
- 2 Drive Ins
- 26 Loading Docks
- Partitioned Offices
- 36’ clear height
- 135’ truck court
- 56’ x 60’ column spacing; 60’ at staging bays
- 26 - dock doors
- Building slab: 7” thick; 4,000 psi
- ESFR sprinkler system
SITE PLAN
PARK OVERVIEW
AllianceCalifornia is the ultimate trade and logistics center in the heart of Southern California, which offers companies the most competitive space serving the Inland Empire. With unparalleled access to air, rail, and interstate transportation, it is the perfect destination for businesses looking to enhance operations. The intersection of I-10, I-215, and I-210 provides a robust transportation network, making transporting goods easy for potential users. The Northgate facilities at AllianceCalifornia are positioned near the San Bernardino International Airport, providing quick access to restaurants, retail outlets, and premier amenities for tenants. The Inland Empire economy is ranked one of the nation’s leading economies. The Riverside-San Bernardino MSA is California’s 3rd and the nation’s 13th most populous region, home to more than 4.6 million residents and many successful businesses. Surrounded by leading corporate tenants and a sizable population, Northgate is well positioned to benefit from the regions continued growth.
Presented by
AllianceCalifornia Northgate | San Bernardino, CA 92408
Hmm, there seems to have been an error sending your message. Please try again.
Thanks! Your message was sent.












