Your email has been sent.
Investment Highlights
- Great visibility with frontage on FM 3433 just off Hwy 287
- ETJ Zoning
- Surrounded by high growth residential developments including Rolling V Ranch, Ellis Homestead, Alpha Ranch and Sendera Ranch
Executive Summary
• Surrounded by high growth residential - At the entrance to the new Rolling V Ranch residential development with 10,000 homes planned, Ellis Homestead, Alpha
Ranch(2,623 lots), Sendera Ranch (9,208 lots)
• Across the street from new planned 27 acre HEB grocery store development
• Future Northwest ISD Highschool site nearby
• Area retail including Wells Fargo, Shell, Dairy Queen and more
Property Facts
| Sale Type | Investment | Proposed Use | |
| No. Lots | 2 | Total Lot Size | 8.00 AC |
| Property Type | Land | Cross Streets | US Hwy 287 |
| Property Subtype | Commercial | ||
| Zoning | ETJ - Extra Territorial Jursidiction | ||
| Sale Type | Investment |
| No. Lots | 2 |
| Property Type | Land |
| Property Subtype | Commercial |
| Proposed Use | |
| Total Lot Size | 8.00 AC |
| Cross Streets | US Hwy 287 |
| Zoning | ETJ - Extra Territorial Jursidiction |
2 Lots Available
Lot 1
| Lot Size | 4.00 AC |
| Lot Size | 4.00 AC |
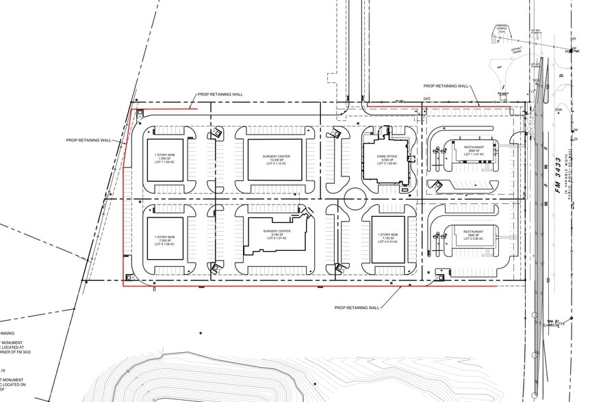
***divisible from 1-4 Acres*** - Approximately 8.0 acres of land (348,480 SF) -Planned to be replated into multiple lots as a medical/professional office campus -Utilities available – water & sewer, off-site drainage
Lot 2
| Lot Size | 4.00 AC |
| Lot Size | 4.00 AC |
***divisible from 1-4 Acres*** - Approximately 8.0 acres of land (348,480 SF) -Planned to be replated into multiple lots as a mixed use retail/office development -Build-to-suit lease -Utilities available – water & sewer, off-site drainage
Description
The property is a 8 acre tract of land which is part of a larger tract that is located in the Extra-Territorial Jurisdiction (ETJ) of the city of Rhome, Wise County, Texas. It is more specifically located at the SW Quadrant of FM 3433 & US Hwy 287 on FM 3433. The property is currently outside of the city of Rhome and as such is not subject to the typical zoning, platting and permitting requirements and fees. Traffic, water and sewer impact fees are significantly mitigated being outside of the city. Permitting and construction timelines are reduced through the simplicity of the ETJ process. The property shall still go through the preliminary and final platting process with the intention to divide the site into approximately 5-6 lots. Complete site/civil plans will be required by the city of Rhome including a site plan package. The site plan submittal and platting process requires approval from P&Z, & City Council.
Property Taxes
| Parcel Number | A0743003415 | Improvements Assessment | $0 |
| Land Assessment | $1,330,866 | Total Assessment | $1,330,866 |
Property Taxes
Presented by
SWQ of FM 3433
Hmm, there seems to have been an error sending your message. Please try again.
Thanks! Your message was sent.




