Your email has been sent.
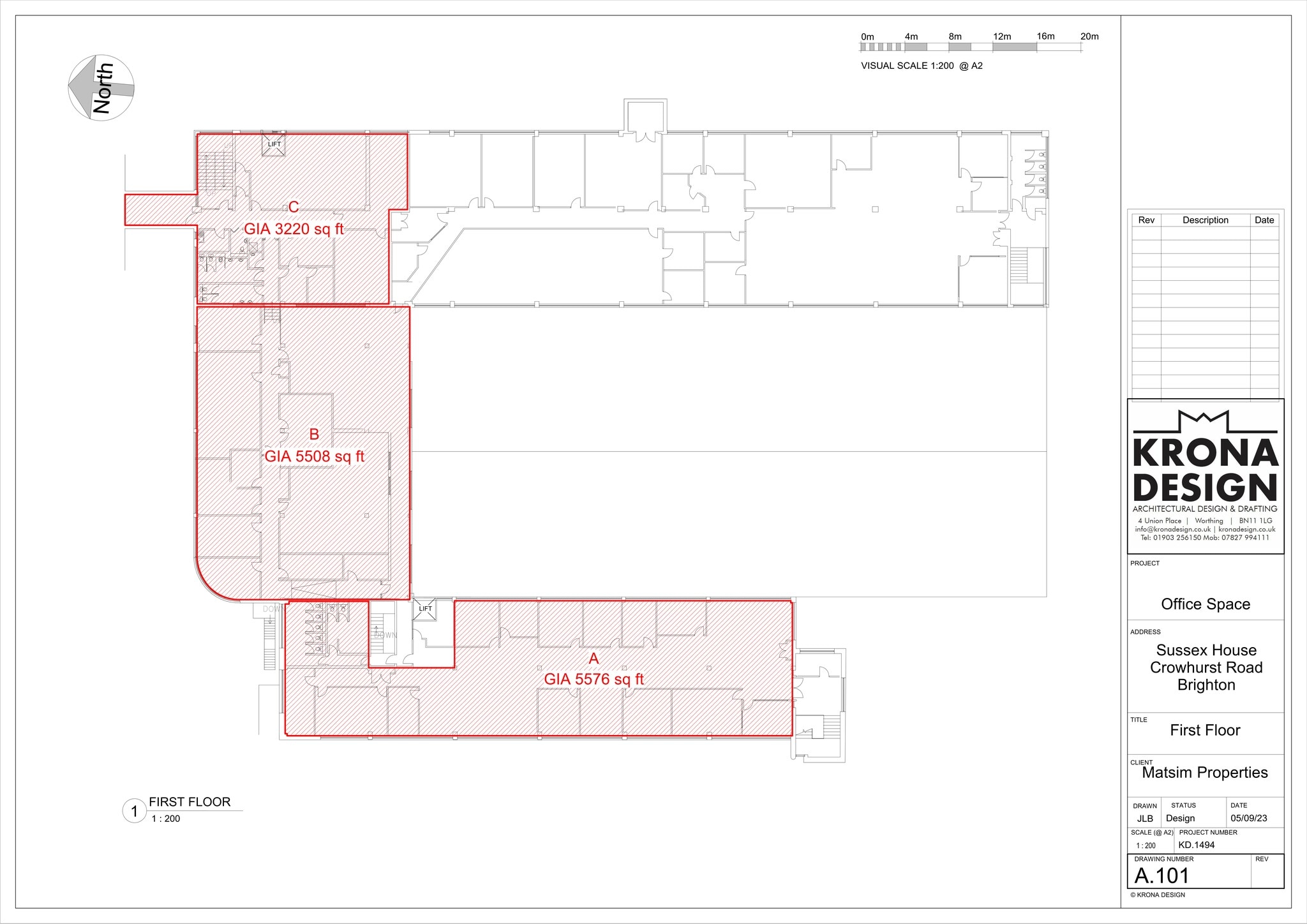
Sussex House Sussex House, Crowhurst Rd 3,220 - 14,304 SF of Office Space Available in Brighton BN1 8AF



Highlights
- Providing mainly open plan and versatile accommodation located on the front of the building
- Part air-conditioned
- DDA complaint access
- Currently fitted throughout as offices with dedicated reception area and various meeting & board room facilities
- Newly installed / dedicated platform lift between floors
- Secure internal and external car parking
All Available Spaces(3)
Display Rental Rate as
- Space
- Size
- Term
- Rental Rate
- Space Use
- Build-Out
- Available
The premises are available to let either as a whole or in part, and by way of a new full repairing and insuring lease or leases for a term to be agreed and at a guide rent of £15 psf exclusive. A new Use Classes Order (UCO) came into effect on 1st September 2020. Under the new UCO a new Use Class E was introduced to cover commercial, business and service uses. Use Class E encompasses A1, A2, A3, B1 and some D1 and D2 uses under the former UCO. We therefore understand that the premises benefit from Class E 'Commercial Business and Service' use within the Use Classes Order 2020. Interested parties should make their own planning enquiries and satisfy themselves in this regard.
- Use Class: E
- Conference Rooms
- Central Air and Heating
- Fully Carpeted
- Secure Storage
- Bicycle Storage
- Common Parts WC Facilities
- Providing mainly open plan and versatile accommoda
- Part air-conditioned
- Secure internal and external car parking
- Fully Built-Out as Standard Office
- Can be combined with additional space(s) for up to 14,304 SF of adjacent space
- Elevator Access
- Security System
- Natural Light
- Energy Performance Rating - B
- DDA Compliant
- Arranged over ground and first floors
- Newly installed / dedicated platform lift between
- Cycle parking facilities
The premises are available to let either as a whole or in part, and by way of a new full repairing and insuring lease or leases for a term to be agreed and at a guide rent of £15 psf exclusive. A new Use Classes Order (UCO) came into effect on 1st September 2020. Under the new UCO a new Use Class E was introduced to cover commercial, business and service uses. Use Class E encompasses A1, A2, A3, B1 and some D1 and D2 uses under the former UCO. We therefore understand that the premises benefit from Class E 'Commercial Business and Service' use within the Use Classes Order 2020. Interested parties should make their own planning enquiries and satisfy themselves in this regard.
- Use Class: E
- Conference Rooms
- Central Air and Heating
- Fully Carpeted
- Secure Storage
- Bicycle Storage
- Common Parts WC Facilities
- Providing mainly open plan and versatile accommoda
- Part air-conditioned
- Secure internal and external car parking
- Fully Built-Out as Standard Office
- Can be combined with additional space(s) for up to 14,304 SF of adjacent space
- Elevator Access
- Security System
- Natural Light
- Energy Performance Rating - B
- DDA Compliant
- Arranged over ground and first floors
- Newly installed / dedicated platform lift between
- Cycle parking facilities
The premises are available to let either as a whole or in part, and by way of a new full repairing and insuring lease or leases for a term to be agreed and at a guide rent of £15 psf exclusive. A new Use Classes Order (UCO) came into effect on 1st September 2020. Under the new UCO a new Use Class E was introduced to cover commercial, business and service uses. Use Class E encompasses A1, A2, A3, B1 and some D1 and D2 uses under the former UCO. We therefore understand that the premises benefit from Class E 'Commercial Business and Service' use within the Use Classes Order 2020. Interested parties should make their own planning enquiries and satisfy themselves in this regard.
- Use Class: E
- Conference Rooms
- Central Air and Heating
- Fully Carpeted
- Secure Storage
- Bicycle Storage
- Common Parts WC Facilities
- Providing mainly open plan and versatile accommoda
- Part air-conditioned
- Secure internal and external car parking
- Fully Built-Out as Standard Office
- Can be combined with additional space(s) for up to 14,304 SF of adjacent space
- Elevator Access
- Security System
- Natural Light
- Energy Performance Rating - B
- DDA Compliant
- Arranged over ground and first floors
- Newly installed / dedicated platform lift between
- Cycle parking facilities
| Space | Size | Term | Rental Rate | Space Use | Build-Out | Available |
| 1st Floor, Ste A | 5,576 SF | Negotiable | $20.35 /SF/YR $1.70 /SF/MO $113,487 /YR $9,457 /MO | Office | Full Build-Out | 30 Days |
| 1st Floor, Ste B | 5,508 SF | Negotiable | $20.35 /SF/YR $1.70 /SF/MO $112,103 /YR $9,342 /MO | Office | Full Build-Out | 30 Days |
| 1st Floor, Ste C | 3,220 SF | Negotiable | $20.35 /SF/YR $1.70 /SF/MO $65,536 /YR $5,461 /MO | Office | Full Build-Out | 30 Days |
1st Floor, Ste A
| Size |
| 5,576 SF |
| Term |
| Negotiable |
| Rental Rate |
| $20.35 /SF/YR $1.70 /SF/MO $113,487 /YR $9,457 /MO |
| Space Use |
| Office |
| Build-Out |
| Full Build-Out |
| Available |
| 30 Days |
1st Floor, Ste B
| Size |
| 5,508 SF |
| Term |
| Negotiable |
| Rental Rate |
| $20.35 /SF/YR $1.70 /SF/MO $112,103 /YR $9,342 /MO |
| Space Use |
| Office |
| Build-Out |
| Full Build-Out |
| Available |
| 30 Days |
1st Floor, Ste C
| Size |
| 3,220 SF |
| Term |
| Negotiable |
| Rental Rate |
| $20.35 /SF/YR $1.70 /SF/MO $65,536 /YR $5,461 /MO |
| Space Use |
| Office |
| Build-Out |
| Full Build-Out |
| Available |
| 30 Days |
1st Floor, Ste A
| Size | 5,576 SF |
| Term | Negotiable |
| Rental Rate | $20.35 /SF/YR |
| Space Use | Office |
| Build-Out | Full Build-Out |
| Available | 30 Days |
The premises are available to let either as a whole or in part, and by way of a new full repairing and insuring lease or leases for a term to be agreed and at a guide rent of £15 psf exclusive. A new Use Classes Order (UCO) came into effect on 1st September 2020. Under the new UCO a new Use Class E was introduced to cover commercial, business and service uses. Use Class E encompasses A1, A2, A3, B1 and some D1 and D2 uses under the former UCO. We therefore understand that the premises benefit from Class E 'Commercial Business and Service' use within the Use Classes Order 2020. Interested parties should make their own planning enquiries and satisfy themselves in this regard.
- Use Class: E
- Fully Built-Out as Standard Office
- Conference Rooms
- Can be combined with additional space(s) for up to 14,304 SF of adjacent space
- Central Air and Heating
- Elevator Access
- Fully Carpeted
- Security System
- Secure Storage
- Natural Light
- Bicycle Storage
- Energy Performance Rating - B
- Common Parts WC Facilities
- DDA Compliant
- Providing mainly open plan and versatile accommoda
- Arranged over ground and first floors
- Part air-conditioned
- Newly installed / dedicated platform lift between
- Secure internal and external car parking
- Cycle parking facilities
1st Floor, Ste B
| Size | 5,508 SF |
| Term | Negotiable |
| Rental Rate | $20.35 /SF/YR |
| Space Use | Office |
| Build-Out | Full Build-Out |
| Available | 30 Days |
The premises are available to let either as a whole or in part, and by way of a new full repairing and insuring lease or leases for a term to be agreed and at a guide rent of £15 psf exclusive. A new Use Classes Order (UCO) came into effect on 1st September 2020. Under the new UCO a new Use Class E was introduced to cover commercial, business and service uses. Use Class E encompasses A1, A2, A3, B1 and some D1 and D2 uses under the former UCO. We therefore understand that the premises benefit from Class E 'Commercial Business and Service' use within the Use Classes Order 2020. Interested parties should make their own planning enquiries and satisfy themselves in this regard.
- Use Class: E
- Fully Built-Out as Standard Office
- Conference Rooms
- Can be combined with additional space(s) for up to 14,304 SF of adjacent space
- Central Air and Heating
- Elevator Access
- Fully Carpeted
- Security System
- Secure Storage
- Natural Light
- Bicycle Storage
- Energy Performance Rating - B
- Common Parts WC Facilities
- DDA Compliant
- Providing mainly open plan and versatile accommoda
- Arranged over ground and first floors
- Part air-conditioned
- Newly installed / dedicated platform lift between
- Secure internal and external car parking
- Cycle parking facilities
1st Floor, Ste C
| Size | 3,220 SF |
| Term | Negotiable |
| Rental Rate | $20.35 /SF/YR |
| Space Use | Office |
| Build-Out | Full Build-Out |
| Available | 30 Days |
The premises are available to let either as a whole or in part, and by way of a new full repairing and insuring lease or leases for a term to be agreed and at a guide rent of £15 psf exclusive. A new Use Classes Order (UCO) came into effect on 1st September 2020. Under the new UCO a new Use Class E was introduced to cover commercial, business and service uses. Use Class E encompasses A1, A2, A3, B1 and some D1 and D2 uses under the former UCO. We therefore understand that the premises benefit from Class E 'Commercial Business and Service' use within the Use Classes Order 2020. Interested parties should make their own planning enquiries and satisfy themselves in this regard.
- Use Class: E
- Fully Built-Out as Standard Office
- Conference Rooms
- Can be combined with additional space(s) for up to 14,304 SF of adjacent space
- Central Air and Heating
- Elevator Access
- Fully Carpeted
- Security System
- Secure Storage
- Natural Light
- Bicycle Storage
- Energy Performance Rating - B
- Common Parts WC Facilities
- DDA Compliant
- Providing mainly open plan and versatile accommoda
- Arranged over ground and first floors
- Part air-conditioned
- Newly installed / dedicated platform lift between
- Secure internal and external car parking
- Cycle parking facilities
Property Overview
The office is located on Crowhurst Road is situated to the north of Brighton in the Hollingbury area, and which comprises a mix of retail, industrial and office occupiers, and provides immediate access to the A27/A23 to the north, and Brighton and surrounding conurbations to the south, east and west.
- Controlled Access
- Conferencing Facility
- Security System
- Reception
- Storage Space
- Air Conditioning
Property Facts
Presented by
Sussex House | Sussex House, Crowhurst Rd
Hmm, there seems to have been an error sending your message. Please try again.
Thanks! Your message was sent.



