Your email has been sent.
Titusville - Approved 136 Lot Subdivision - Daley Farm 149 Acres of Residential Land Offered at $6,000,000 in Poughkeepsie, NY 12603



Investment Highlights
- Fulfills dramatically underserved demand for new single-family homes and town-homes.
Executive Summary
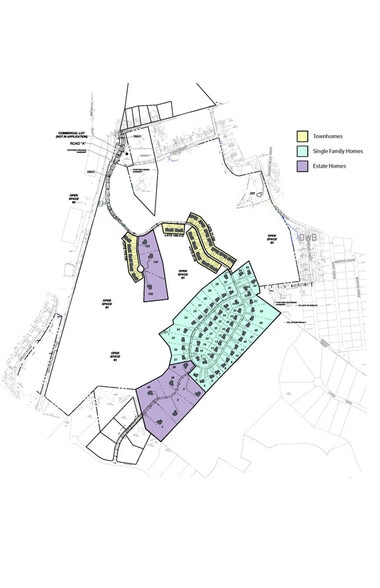
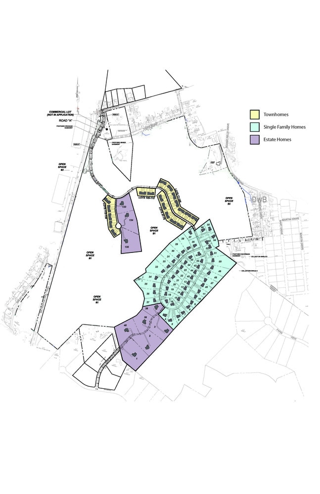
The final map is in the process of being filed and infrastructure improvements could begin Winter 2026, and construction by Fall 2026. The current site plan calls for 136 lots: 51 single-family (0.5-1 acres), 9 estate (1.5-8 acres), and 76 town-homes. Each property will be tied into municipal water and sewer.
Property Facts
| Price | $6,000,000 | Property Subtype | Residential |
| Sale Type | Investment | Proposed Use | |
| No. Lots | 1 | Total Lot Size | 149.00 AC |
| Property Type | Land | ||
| Zoning | R40 - Residential | ||
| Price | $6,000,000 |
| Sale Type | Investment |
| No. Lots | 1 |
| Property Type | Land |
| Property Subtype | Residential |
| Proposed Use | |
| Total Lot Size | 149.00 AC |
| Zoning | R40 - Residential |
1 Lot Available
Lot 1-136
| Price | $6,000,000 | Lot Size | 149.00 AC |
| Price Per AC | $40,268.46 |
| Price | $6,000,000 |
| Price Per AC | $40,268.46 |
| Lot Size | 149.00 AC |
149 acres for 136 lot subdivision
Description
This is a fully approved 136 lot subdivision in the Hudson River Valley. Located on Titusville Road between Noxon Road and Daley Road, this is one of the area's most sought after locations. The Taconic State Parkway, Metro North train and Amtrak are all within a few miles of this former farm, making it an ideal location for commuters as well as the local workforce supporting area employers like IBM, Nuvance Medical Center, Marist College, Vassar College, Culinary Institute of America, and more. The property also borders the Dutchess Rail Trail, a section of the Empire Trail bike system trail system that includes the Walkway Over the Hudson, the world's second-longest pedestrian footbridge.
Property Taxes
| Parcel Numbers | Improvements Assessment | $0 | |
| Land Assessment | $574,800 | Total Assessment | $574,800 |
Property Taxes
Presented by
Titusville - Approved 136 Lot Subdivision - Daley Farm
Hmm, there seems to have been an error sending your message. Please try again.
Thanks! Your message was sent.

