Log In/Sign Up
Your email has been sent.
44119 Treillières 3,358 SF Office Building $1,000,351 ($297.87/SF)



Some information has been automatically translated.
SALE NOTES
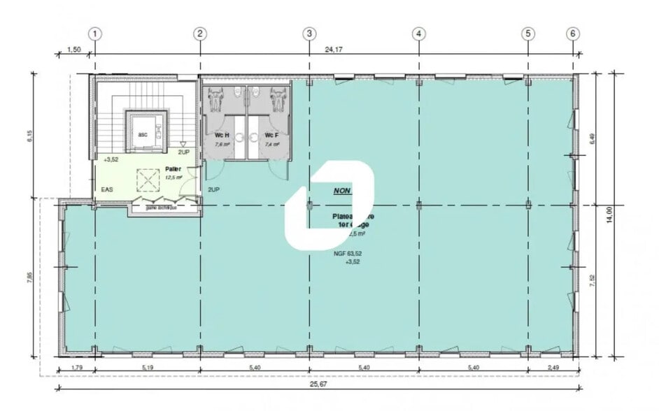
TREILLIERES - IMMPROVE offers a divisible office space on the first floor of a new building. You will benefit from quick access to the Rennes road and the northern ring road. Rental is available.
.New building
.Facade: metal cladding
.PMR elevator (accessible for persons with reduced mobility)
.PVC flooring
.Suspended ceiling
.LED lighting
.Restrooms
.Reversible air conditioning
Independent building
Location/Transportation:
Bus ALEOP 322-300 (access to Cardo - City Center and Nantes Train Station)
Carrez Law and legal designation currently being determined.
.New building
.Facade: metal cladding
.PMR elevator (accessible for persons with reduced mobility)
.PVC flooring
.Suspended ceiling
.LED lighting
.Restrooms
.Reversible air conditioning
Independent building
Location/Transportation:
Bus ALEOP 322-300 (access to Cardo - City Center and Nantes Train Station)
Carrez Law and legal designation currently being determined.
PROPERTY FACTS
Sale Type
Owner User
Property Type
Office
Building Size
3,358 SF
Price
$1,000,351
Price Per SF
$297.87
1 1
1 of 7
VIDEOS
MATTERPORT 3D EXTERIOR
MATTERPORT 3D TOUR
PHOTOS
STREET VIEW
STREET
MAP
1 of 1
Presented by
"44119 Treillières"
Already a member? Log In
Hmm, there seems to have been an error sending your message. Please try again.
Thanks! Your message was sent.
