Your email has been sent.
Investment Highlights
- Excellent communication links to A259 and A27.
- Incredibly rare opportunity to purchase Sussex employment site.
- Outline planning consent for 60,000 sq ft of Class B1 accommodation.
- Freehold.
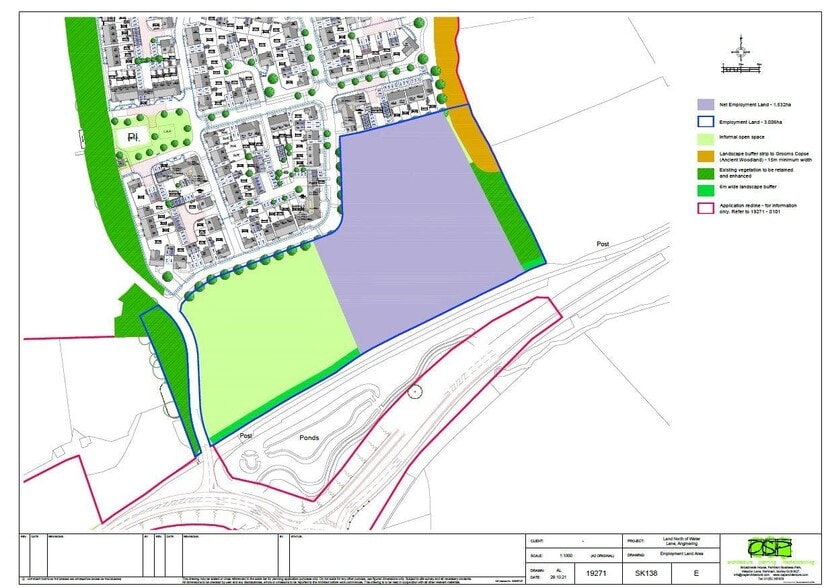
- 3.78 acres / 1.532 Hectares.
- Offers in excess of £2,000,000.
Executive Summary
Commercial Development Land for Sale, Consent for Class B1 Use (Other Uses Considered STPC) Excellent communication links to A259 and A27 Freehold Incredibly rare opportunity to purchase Sussex employment site 3.78 acres / 1.532 Hectares Outline planning consent for 60,000 sq ft of Class B1 accommodation Offers in excess of £2,000,000 Cala Homes & Bellway Homes will be responsible for delivering the employment land services.
The employment area to be sold comprises 3.78 acres / 1.532 Hectares. The outline consent allows for 6,000 square metres (64,500 sq ft). This reflects a healthy potential site density equivalent to approximately 40% The property is to be sold freehold with vacant possession.
Cala Homes & Bellway Homes propose to deliver the employment zone road to base course, within seven months of start on site which is currently due for the beginning of Q3 2022. This provides an approximate timeframe for servicing the employment land at the end of Q2 2023.
Property Facts
1 Lot Available
Lot
| Price | $4,085,858 | Lot Size | 3.78 AC |
| Price Per AC | $1,080,914.69 |
| Price | $4,085,858 |
| Price Per AC | $1,080,914.69 |
| Lot Size | 3.78 AC |
The employment area to be sold comprises 3.78 acres / 1.532 Hectares. The outline consent allows for 6,000 square metres (64,500 sq ft). This reflects a healthy potential site density equivalent to approximately 40%
Description
The land in question is level cover 3.78 acres / 1.532 hectares The property is located to South-East of the New Cala Homes Water Lane residential development. Water Lane is situated off the Angmering by pass road and provides almost immediate access to the A259. The A27 is located less than two miles which provides communications between Chichester (17 miles), Worthing (6 miles) and Brighton (18 Miles). The site will have a single point of access from within the new residential development. THE DEVELOPMENTA joint development by Cala Homes and Bellway Homes. Set around a central green and featuring a children’s play area, ponds and open spaces. More than £7 million has been invested in outdoor fitness and leisure, education and infrastructure through Section 106 contributions as part of the planning process.
Presented by
Water Ln
Hmm, there seems to have been an error sending your message. Please try again.
Thanks! Your message was sent.



