Your email has been sent.
Executive Summary
Property Facts
| Price | $799,900 | Property Subtype | Commercial |
| Sale Type | Investment | Proposed Use | |
| No. Lots | 1 | Total Lot Size | 3.73 AC |
| Property Type | Land | ||
| Zoning | C-1 - Commercial | ||
| Price | $799,900 |
| Sale Type | Investment |
| No. Lots | 1 |
| Property Type | Land |
| Property Subtype | Commercial |
| Proposed Use | |
| Total Lot Size | 3.73 AC |
| Zoning | C-1 - Commercial |
1 Lot Available
Lot
| Price | $799,900 | Lot Size | 3.73 AC |
| Price Per AC | $214,450.40 |
| Price | $799,900 |
| Price Per AC | $214,450.40 |
| Lot Size | 3.73 AC |
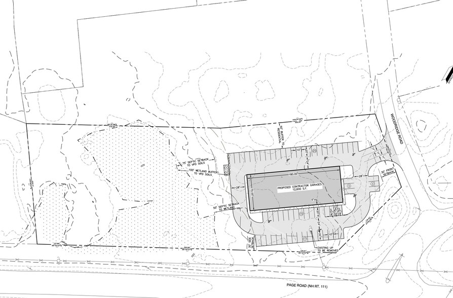
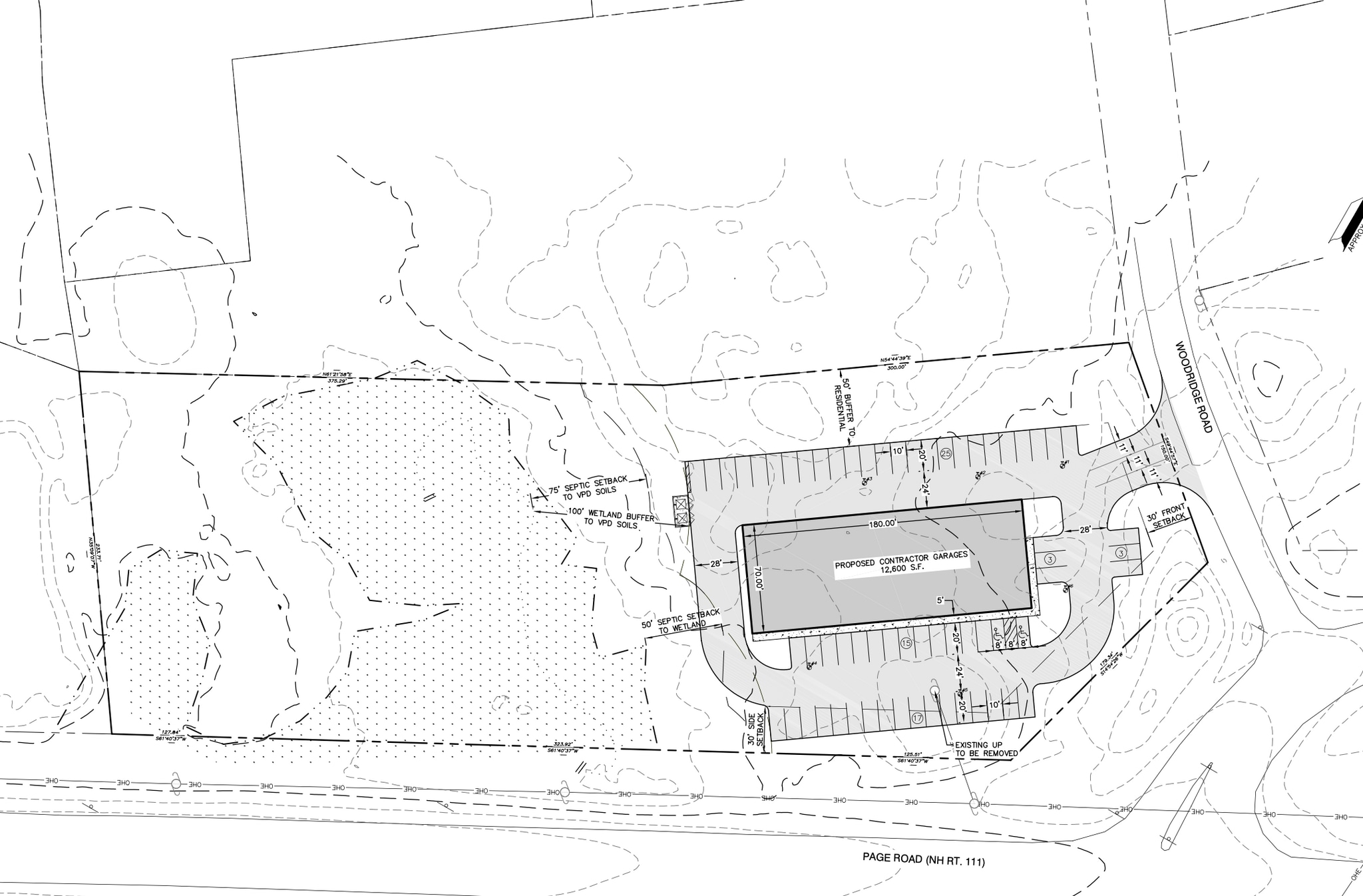
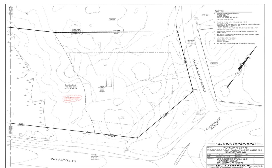
One of the last viable commercial lots in Hampstead with over 600 feet of frontage on Route 111. 3.73 acre C-1 Commercial/Residential lot.
Description
LOT IS CLEARED AND READY FOR YOUR VISION! One of the last viable commercial lots in Hampstead with over 600 feet of frontage on Route 111. 3.73 acre C-1 Commercial/Residential lot. Possible hook up to city water across the street. Permitted Uses Include: A. Any retail business such as: book, stationery, or news store, drug store, dry goods or variety store, jewelry store, florist or gift shop, grocery store, hardware store, meat market, or wearing apparel store, limited to indoor sales. B. Any service establishments such as: barber shops, beauty shops, custom tailors, shoe repair, self-service, laundry, banks, restaurants, business and professional offices, limited to indoor sales and service. C. Automotive filling and service stations. D. Schools, day care and nursery centers and adult care centers. E. Cargo Storage Containers. Agent interest.
Presented by
Woodridge Rd
Hmm, there seems to have been an error sending your message. Please try again.
Thanks! Your message was sent.



